22 Mahony Avenue, Hamilton, Ontario L8H 3C4

Listed for:
$449,900
3 beds
2 baths
Listed 14 days ago
House for rent: 22 Mahony Avenue, Hamilton, Ontario L8H 3C4

View all 35 photos

Learn more about this property
Listing provided by:
SUTTON GROUP INNOVATIVE REALTY INC.
MLS® number:
X12512874
Agent:
Laura Doucette
*Indicates required field
Name is required
Email is required
Please enter a valid phone number (e.g., 416-111-1111).

About

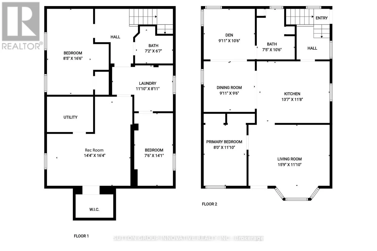
Cross Streets: Parkdale N/Barton/Guelph. ** Directions: Barton St. E.., North on Parkdale Ave. N., West on Mahoney. Corner of Mahony and Guelph. Welcome to this charming 962 sq ft bungalow on a spacious corner lot - an ideal opportunity for first-time buyers or seniors looking to downsize. The main level features 1 bedroom, living room, dining room, den, kitchen, and a 4-piece bathroom. A separate entrance leads to the partially finished basement, offering 2 additional bedrooms, a rec room, a 4-piece bathroom, and laundry - great potential for extended family use. Outside, enjoy a fully fenced yard, a shed with a deck, and a concrete driveway accommodating up to 3 cars. A backflow valve has been installed for added peace of mind. Conveniently located close to the QEW (Toronto/Niagara), Red Hill Parkway, parks, shopping, and other key amenities. (id:27476)

Property Highlights

MLS® Number
X12512874
Type
Single Family
Community Name
Jerome
Ownership Type
Freehold
Land Size
40 x 85 Acre|under 1/2 acre
Parking Space Total
3

Building

Building Type
House
Storeys
1.00
Square Footage
700 - 1100 sqft
Bathrooms Total
2
Bedrooms Above Ground
1
Bedrooms Total
3
Amenities
Public Transit
Exterior Finish
Stucco
Fireplace Present
No
Basement Type
Full
Basement Features
Separate entrance
Building Heating Type
Forced air
Heating Fuel
Natural gas
Building Cooling Type
Central air conditioning

Utilities

Water
Municipal water
Utility Sewer
Sanitary sewer

Room Layout

Laundry room
Basement
Measurements not available
Utility room
Basement
Measurements not available
Bedroom 2
Basement
2.57 m x 5.03 m
Bedroom 3
Basement
2.29 m x 4.29 m
Bathroom
Basement
Measurements not available
Recreational, Games room
Basement
4.37 m x 4.98 m
Living room
Main level
4.57 m x 2.74 m
Bedroom
Main level
2.44 m x 3.61 m
Kitchen
Main level
4.14 m x 3.56 m
Dining room
Main level
3.02 m x 2.9 m
Den
Main level
3.02 m x 3.2 m
Bathroom
Main level
Measurements not available

Location