122 Burton Street Unit# 1, Hamilton, Ontario L8L 3R5

Listed for:
$2,600
0 beds
0 baths
Listed 6 days ago
122 Burton Street Unit# 1, Hamilton, Ontario L8L 3R5

View all 17 photos

Learn more about this property
Listing provided by:
RE/MAX Escarpment Realty Inc.
MLS® number:
40787115
Agent:
Rachel Martin
*Indicates required field
Name is required
Email is required
Please enter a valid phone number (e.g., 416-111-1111).

About

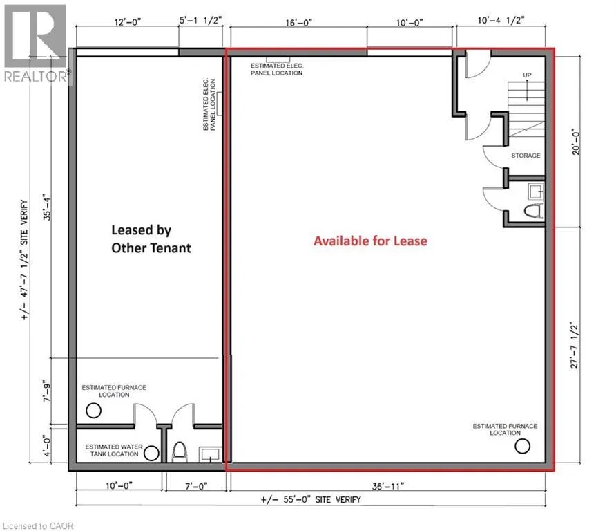
Wentworth St N to Burton St Looking for a place to store your vehicles this winter, work materials, or just want an industrial style office for your business? Look no further than this heated garage/office/storage/warehouse space. A small storage room and two-piece washroom are also in the unit. The garage door enables you easy access into the space for loading and unloading, or just for some fresh air. Flexible lease term, but looking for minimum 1 year commitment. 2nd floor office and other garage bay are occupied. NO CAR DETAILING USE. Flat monthly rent which includes the electric heating, water, and use of 1 parking spot. Inquire today! (id:27476)

Property Highlights

MLS® Number
40787115
Type
Other
Ownership Type
Freehold
Land Size
under 1/2 acre
Parking Space Total
1

Building

Storeys
2.00
Square Footage
2000 sqft
Amenities
Hospital, Marina, Public Transit
Exterior Finish
Concrete
Fireplace Present
No
Basement Type
None
Basement Features
Building Heating Type
Heating Fuel
Building Cooling Type

Utilities

Water
Municipal water
Utility Sewer
Municipal sewage system

Location