185 Market Street, Hamilton, Ontario L8R 1P1

Listed for:
$549,900
3 beds
4 baths
Listed 135 days ago
House for rent: 185 Market Street, Hamilton, Ontario L8R 1P1

View all 50 photos

About

King or Main Street West to Hess to Market Street Bring your ideas and some TLC to enhance this HUGE single family home, great for a large or extended family, featuring 3 kitchens, 3 full bathrooms, plus a 2 piece. There is a large concrete addition at the rear of main level which has been stripped down to the concrete. Convenient to planned LRT and transit, shopping, Art Gallery, popular restaurants, and the new entertainment venues. Easy highway access. Walkability score 94. This home is sold as is, requires updating and is priced accordingly. Mantel is decorative only. (id:27476)

Property Highlights

MLS® Number
40788420
Type
Single Family
Ownership Type
Freehold
Land Size
under 1/2 acre
Parking Space Total
2

Building

Building Type
House
Storeys
2.50
Square Footage
2345 sqft
Bathrooms Total
4
Bedrooms Above Ground
3
Bedrooms Total
3
Amenities
Hospital, Park, Place of Worship, Public Transit, Schools, Shopping
Exterior Finish
Aluminum siding, Brick, Concrete, Stone, Shingles
Fireplace Present
No
Basement Type
Full (Partially finished)
Basement Features
Building Heating Type
Forced air
Heating Fuel
Natural gas
Building Cooling Type
Window air conditioner

Utilities

Water
Municipal water
Utility Sewer
Municipal sewage system

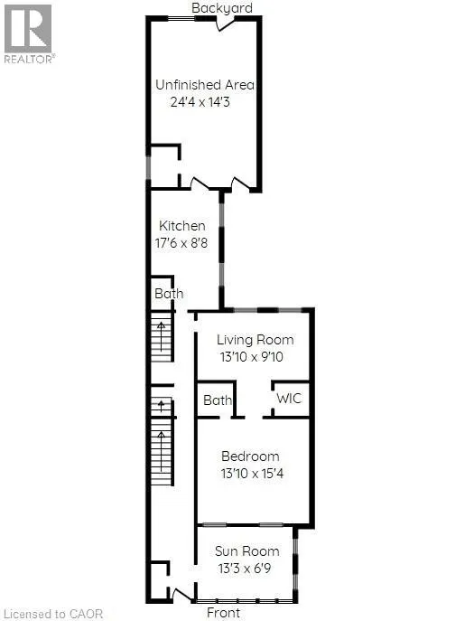
Room Layout

Kitchen
Second level
7'8'' x 7'8''
Living room/Dining room
Second level
18'0'' x 12'6''
Kitchen
Second level
8'4'' x 8'4''
4pc Bathroom
Second level
8'4'' x 8'4''
Bedroom
Second level
15'6'' x 12'10''
4pc Bathroom
Third level
Measurements not available
Bedroom
Third level
15'9'' x 11'9''
Laundry room
Basement
Measurements not available
Storage
Basement
Measurements not available
Storage
Basement
Measurements not available
Workshop
Basement
Measurements not available
Other
Basement
Measurements not available
Other
Main level
24'0'' x 14'6''
2pc Bathroom
Main level
Measurements not available
Full bathroom
Main level
Measurements not available
Kitchen
Main level
18'0'' x 8'8''
Living room
Main level
13'9'' x 9'8''
Primary Bedroom
Main level
15'2'' x 13'9''
Porch
Main level
13'6'' x 8'9''

Location

Learn more about this property
Listing provided by:
Coldwell Banker Community Professionals
MLS® number:
40788420
Agent:
Val Dalgetty-righton
*Indicates required field
Name is required
Email is required
Please enter a valid phone number (e.g., 416-111-1111).