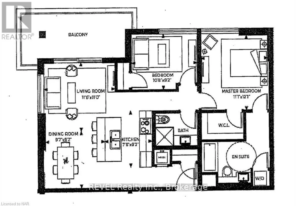
407 - 479 Charlton Avenue E, Hamilton, Ontario L8N 0B4

Listed for:
$2,350
2 beds
2 baths
Listed 28 days ago
Apartment for rent: 407 - 479 Charlton Avenue E, Hamilton, Ontario L8N 0B4

View all 15 photos

Learn more about this property
Listing provided by:
REVEL Realty Inc., Brokerage
MLS® number:
X12594414
Agent:
Prey Patel
*Indicates required field
Name is required
Email is required
Please enter a valid phone number (e.g., 416-111-1111).

About

Cross Streets: Charlton and Wentworth. ** Directions: 479 Charlton Ave E. Welcome to 479 Charlton Ave E, Unit 407. This bright, modern condominium features a spacious open-concept kitchen and living area, perfect for relaxing or entertaining. Enjoy stunning escarpment views from your private balcony and experience the best of Hamilton at your doorstep.Ideal for health care professionals, this condo is just minutes from Hamilton's major hospitals, as well as nearby restaurants, shopping, and the downtown core. The primary bedroom includes a 4-piece ensuite, and the unit offers approximately 937 sq. ft. of living space.One parking space and one locker are included in the rental rate.Call today to book your showing! (id:27476)

Property Highlights

MLS® Number
X12594414
Type
Single Family
Community Name
Stinson
Ownership Type
Condominium/Strata
Parking Space Total
1

Building

Building Type
Apartment
Square Footage
900 - 999 sqft
Bathrooms Total
2
Bedrooms Above Ground
2
Bedrooms Total
2
Amenities
Storage - Locker
Exterior Finish
Brick
Fireplace Present
Yes
Basement Type
None
Basement Features
Building Heating Type
Forced air
Heating Fuel
Electric
Building Cooling Type
Central air conditioning

Location

Street Spotlight - For rent