416 Concession Street, Hamilton, Ontario L9A 1B9

Listed for:
$18
0 beds
0 baths
Listed 28 days ago
416 Concession Street, Hamilton, Ontario L9A 1B9

View all 7 photos

Learn more about this property
Listing provided by:
Realty Network
MLS® number:
40791558
Agent:
Craig L. Knapman
*Indicates required field
Name is required
Email is required
Please enter a valid phone number (e.g., 416-111-1111).

About

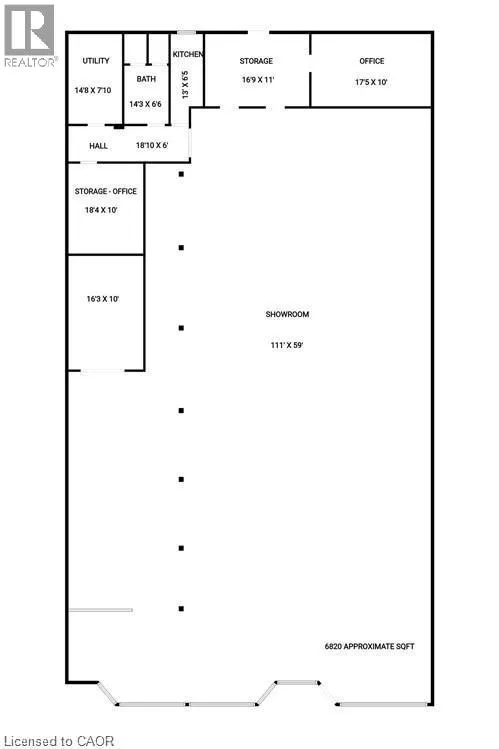
Between East 16th St & East 17th St Approx 6820 sq ft building on one floor, mostly open space with parking rear parking off side street for approx 25 cars. Possible uses include daycare, medical, retail, restaurant, education, Church & office. Great exposure in vibrant Concession Street shopping district on Hamilton Mountain. Near Shoppers, Tim Hortons, Juravinski Hospital, restaurants & boutique stores. Current use is furniture store so ideal for retail as well as day care, medical, office, restaurant & micro brewery. Rear door off parking lot for deliveries. Zoning is C5a for the building & U3 for the parking lot. Permitted uses attached. Current tenant willing to sell inventory. Easy to view! (id:27476)

Property Highlights

MLS® Number
40791558
Type
Retail
Ownership Type
Freehold
Land Size
under 1/2 acre

Building

Storeys
1.00
Square Footage
6820 sqft
Amenities
Hospital, Public Transit
Exterior Finish
Concrete
Fireplace Present
No
Basement Type
None
Basement Features
Building Heating Type
Heating Fuel
Building Cooling Type

Utilities

Water
Municipal water
Utility Sewer
Municipal sewage system

Location