8 Leeds Street, Hamilton, Ontario L8L 6W8

Listed for:
$409,990
4 beds
1 baths
Listed 25 days ago
House for rent: 8 Leeds Street, Hamilton, Ontario L8L 6W8

View all 37 photos

Learn more about this property
Listing provided by:
RE/MAX ESCARPMENT REALTY INC.
MLS® number:
X12607288
Agent:
Conrad Guy Zurini
*Indicates required field
Name is required
Email is required
Please enter a valid phone number (e.g., 416-111-1111).

About

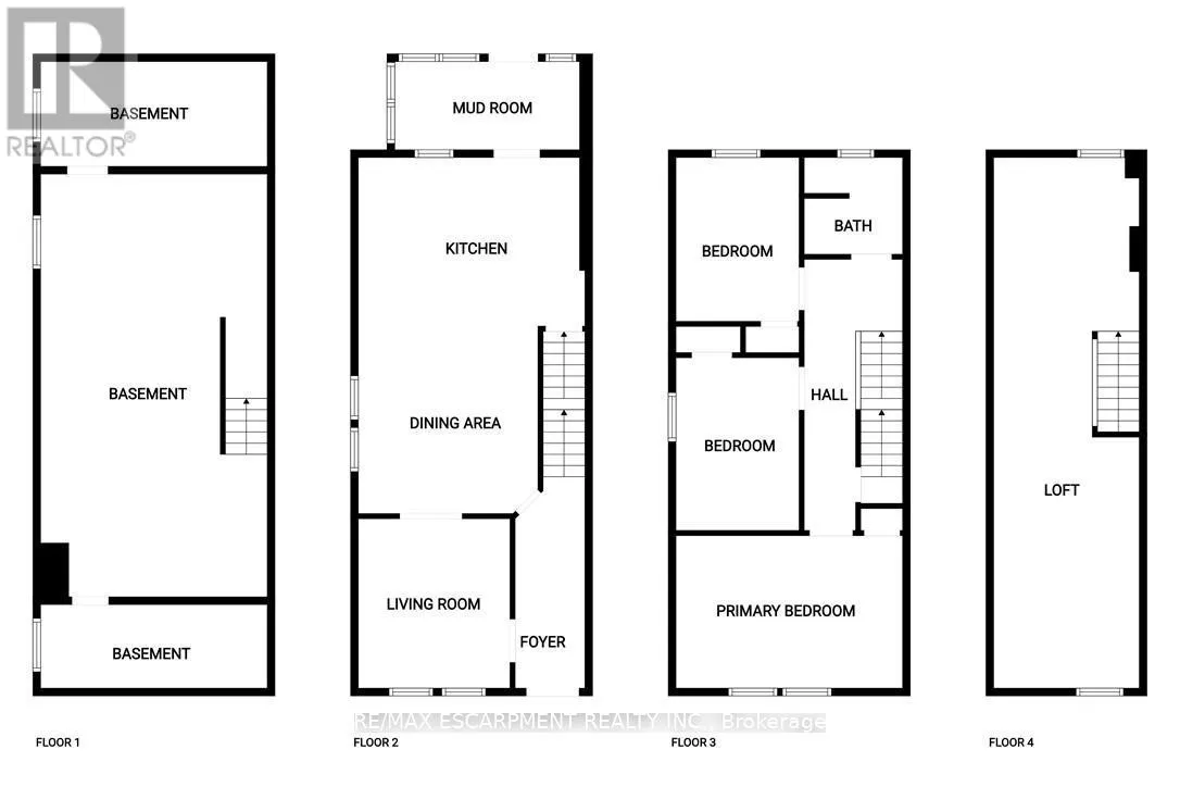
Cross Streets: Burlington St. ** Directions: Off Burlington St Between Gage & Ottawa St. Newly Renovated and Perfect for first-time Home buyers , downsizers or investors & move-in-ready. This 2.5-storey brick semi blends modern updates with timeless character. The main floor features open space living and dining areas, a stunning brand-new kitchen with sleek finishes, new Stainless Steel appliances and space for family meals, plus a bright sunroom overlooking the backyard. Second floor offers 3 bedrooms and a stylish 3-piece bath, while the top floor includes a versatile loft and 4th bedroom, ideal for a home office, guest suite or extra living space. Outside, enjoy a private 1-car driveway, a fenced private backyard with no houses behind and a quiet cul-de-sac location, close to the QEW, schools and parks. (id:27476)

Property Highlights

MLS® Number
X12607288
Type
Single Family
Community Name
Industrial Sector
Ownership Type
Freehold
Land Size
21.1 x 100 FT
Parking Space Total
1

Building

Building Type
House
Storeys
2.50
Square Footage
1100 - 1500 sqft
Bathrooms Total
1
Bedrooms Above Ground
4
Bedrooms Total
4
Amenities
Hospital, Park, Public Transit, Schools
Exterior Finish
Brick, Brick Veneer
Fireplace Present
No
Basement Type
Full (Unfinished)
Basement Features
Building Heating Type
Forced air
Heating Fuel
Natural gas
Building Cooling Type
Central air conditioning

Utilities

Water
Municipal water
Utility Sewer
Sanitary sewer

Room Layout

Primary Bedroom
Second level
4.52 m x 2.74 m
Bedroom
Second level
3.25 m x 2.57 m
Bedroom
Second level
3.35 m x 2.57 m
Bedroom
Third level
10.82 m x 297 m
Living room
Main level
3.35 m x 3 m
Dining room
Main level
3.68 m x 3.58 m
Kitchen
Main level
4.44 m x 3.25 m

Location