95-97 Fairholt Road S, Hamilton, Ontario L8M 2T6

Listed for:
$899,000
7 beds
5 baths
Listed 112 days ago
House for rent: 95-97 Fairholt Road S, Hamilton, Ontario L8M 2T6

View all 35 photos

About

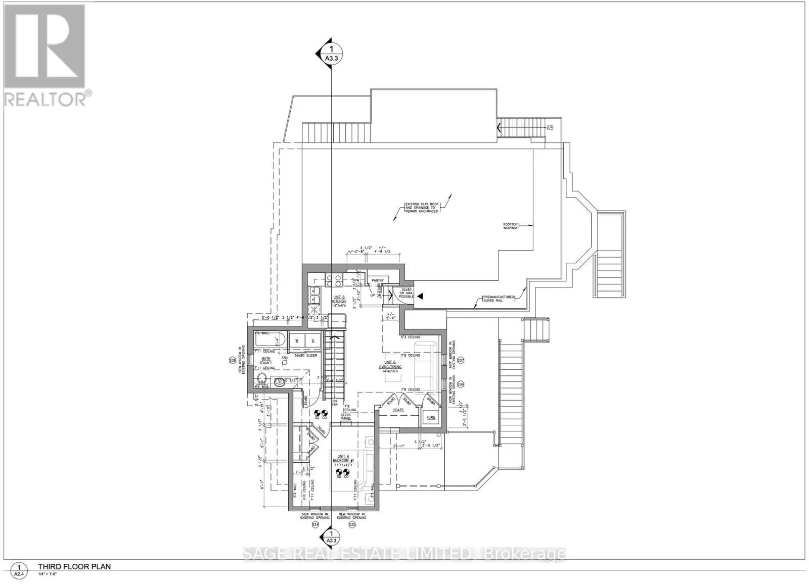
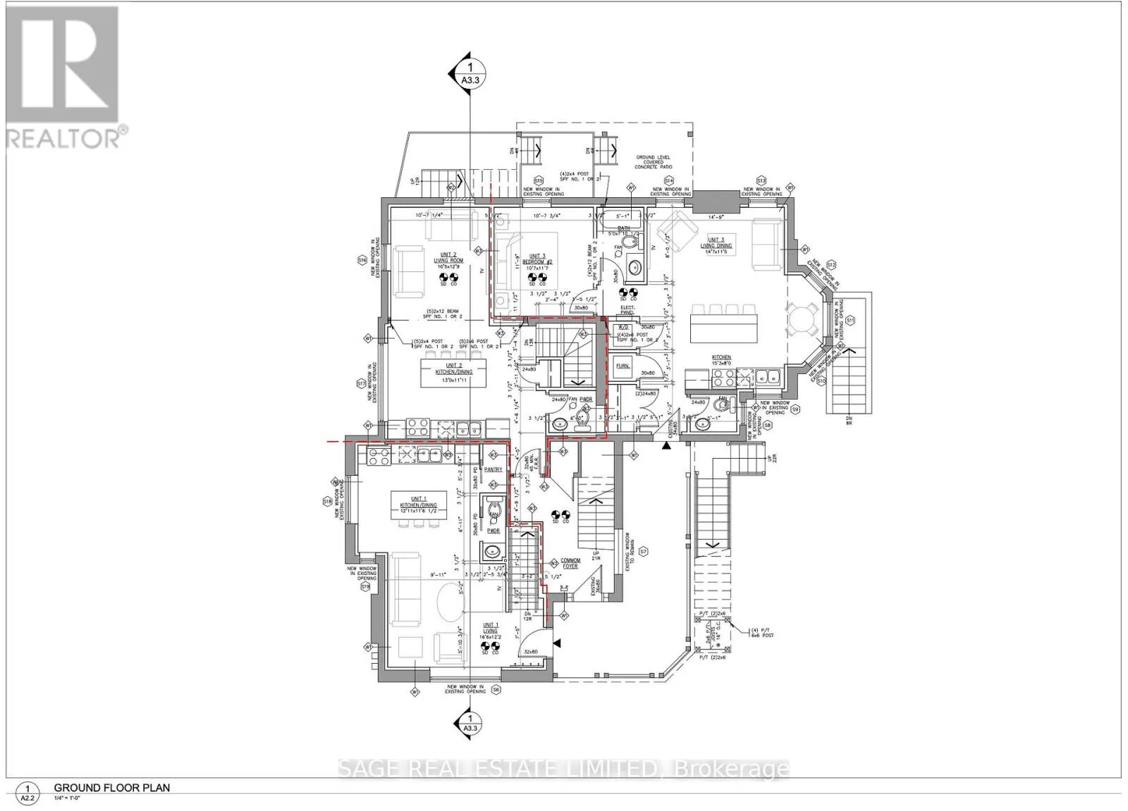
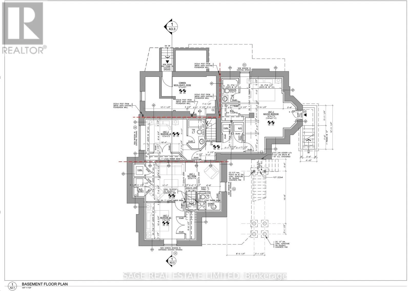
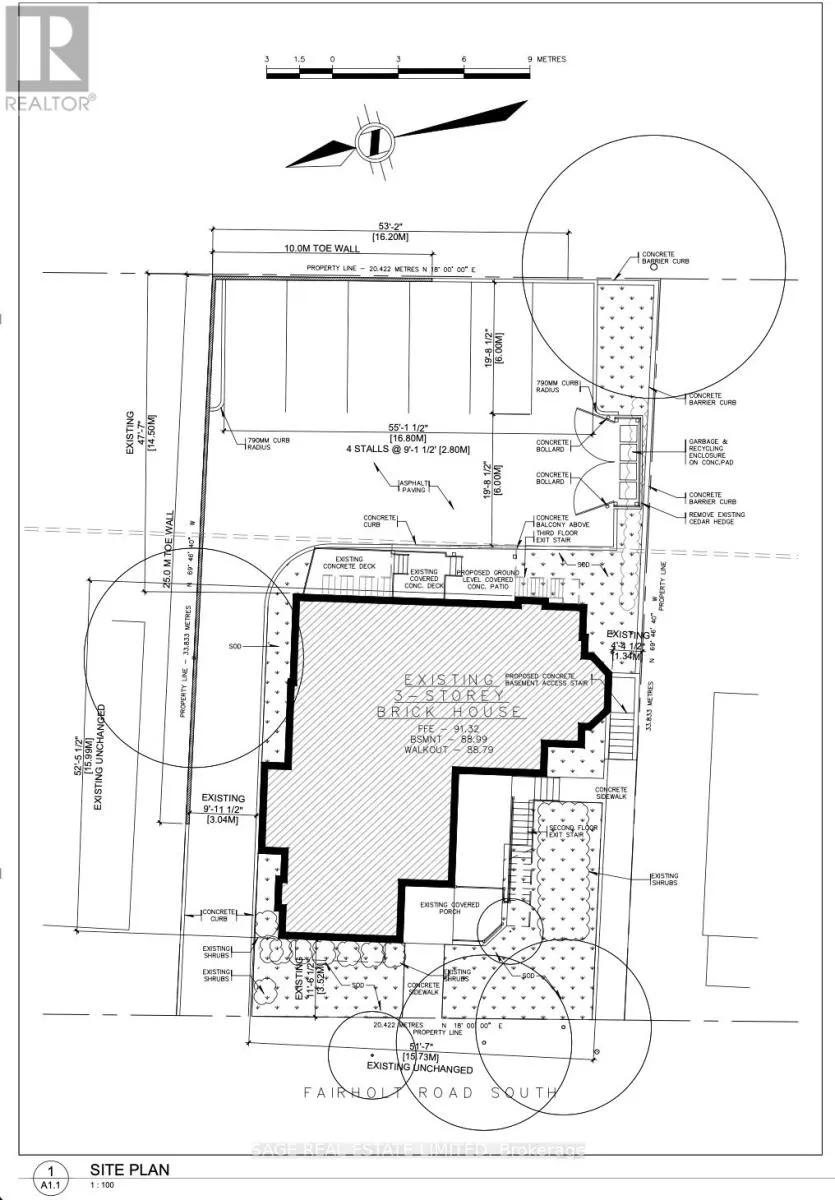
Cross Streets: MAIN ST AND FAIRHOLT RD S. ** Directions: MAIN ST THEN LEFT ON FAIRHOLT RD S. An exceptional opportunity for renovators and investors seeking a character-rich multi-residential project. Situated on a generous 67 x 111 ft double lot and offering over 4,100 sq ft of interior living space, the property combines timeless architectural charm with significant development upside. All architectural, electrical, and mechanical plans are complete and included with sale. Plans call for 4x1 bedroom and 2x2 bedroom apartments with separate utilities and 4 parking at rear. Located in a community-rich neighbourhood, 95 Fairholt Rd South presents a rare chance to revitalize a landmark property while capitalizing on long-term growth and rental potential. The groundwork has been laid, bring your vision and unlock the full potential of this one-of-a-kind property. Renovations and upgrades completed on existing units to prepare them for new tenant occupancy. The home currently contains 4x studio apartments and 1x1 bedroom apartment. (id:27476)

Property Highlights

MLS® Number
X12617108
Type
Single Family
Community Name
Stipley
Ownership Type
Freehold
Land Size
67.1 x 111 FT
Parking Space Total
6

Building

Building Type
House
Storeys
2.50
Square Footage
3500 - 5000 sqft
Bathrooms Total
5
Bedrooms Above Ground
7
Bedrooms Total
7
Exterior Finish
Brick
Fireplace Present
Yes
Basement Type
N/A, N/A (Unfinished)
Basement Features
Walk out
Building Heating Type
Radiant heat
Heating Fuel
Natural gas
Building Cooling Type
None

Utilities

Water
Municipal water
Utility Sewer
Sanitary sewer

Room Layout

Kitchen
Second level
2.1 m x 3.3 m
Bedroom
Second level
5.1 m x 5.1 m
Kitchen
Second level
3.6 m x 3.6 m
Bedroom
Second level
7 m x 3.6 m
Kitchen
Main level
2.7 m x 4.8 m
Bedroom
Main level
3.6 m x 5.1 m
Kitchen
Main level
3.3 m x 3.9 m
Bedroom
Main level
3.3 m x 2.7 m
Living room
Main level
5.5 m x 5.1 m

Location

Learn more about this property
Listing provided by:
SAGE REAL ESTATE LIMITED
MLS® number:
X12617108
Agent:
Alexander Taras Verbitsky
*Indicates required field
Name is required
Email is required
Please enter a valid phone number (e.g., 416-111-1111).

Community Spotlight: Homes For sale in Your Neighborhood