30 - 6 Atessa Drive, Hamilton, Ontario L9B 0C6

Listed for:
$699,900
3 beds
4 baths
Listed 2 days ago
Row / Townhouse for rent: 30 - 6 Atessa Drive, Hamilton, Ontario L9B 0C6

View all 33 photos

Learn more about this property
Listing provided by:
RE/MAX TWIN CITY REALTY INC.
MLS® number:
X12651324
Agent:
Jessica Halliday
*Indicates required field
Name is required
Email is required
Please enter a valid phone number (e.g., 416-111-1111).

About

Cross Streets: Rymal E. ** Directions: Rymal E to Atessa Drive. Welcome to this beautifully maintained townhouse nestled in the highly desirable Hamilton Mountain neighbourhood. Offering the perfect blend of comfort, style, and functionality, this home is ideal for families, professionals, or anyone seeking low-maintenance living without compromise. The main living area has been thoughtfully designed to give you the best entertaining space for your friends and family. The heart of the home has been elevated with a recently stunning kitchen (2023), showcasing modern finishes, new appliances, quartz countertops and ample storage. Retreat to the serene primary bedroom, complete with a newly updated primary bathroom (2023) that adds a touch of luxury to your routine. Enjoy a movie or a good book beside the fireplace! Two other bedrooms and another full bathroom finish off the second level with tons of natural light beaming into all bedrooms. The finished basement provides valuable additional living space, ideal for a family room, home office, or guest area. Lovingly cared for by its owners, this home reflects pride of ownership throughout, with updates that enhance both style and peace of mind. This home has been taken from typical builder grade to a family home that is move in ready just for you! Located close to parks, schools, shopping, and transit, this townhome offers exceptional value in a sought-after location. (id:27476)

Property Highlights

MLS® Number
X12651324
Type
Single Family
Community Name
Ryckmans
Ownership Type
Freehold
Land Size
20 x 60 FT
Parking Space Total
2

Building

Building Type
Row / Townhouse
Storeys
2.00
Square Footage
1100 - 1500 sqft
Bathrooms Total
4
Bedrooms Above Ground
3
Bedrooms Total
3
Amenities
Fireplace(s)
Exterior Finish
Brick, Vinyl siding
Fireplace Present
Yes
Basement Type
Full (Finished)
Basement Features
Building Heating Type
Forced air
Heating Fuel
Natural gas
Building Cooling Type
Central air conditioning

Utilities

Water
Municipal water
Utility Sewer
Sanitary sewer

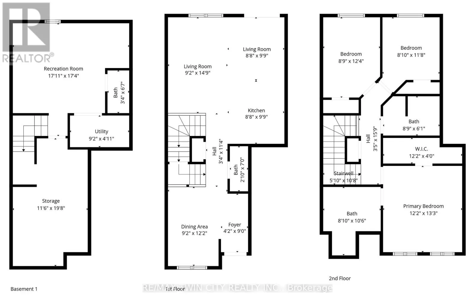
Room Layout

Bedroom
Second level
2.67 m x 3.76 m
Bedroom 2
Second level
2.69 m x 3.56 m
Primary Bedroom
Second level
3.71 m x 4.04 m
Bathroom
Second level
2.67 m x 1.85 m
Bathroom
Second level
2.69 m x 3.2 m
Bathroom
Basement
1.02 m x 2.01 m
Recreational, Games room
Basement
5.28 m x 5.46 m
Foyer
Main level
1.27 m x 2.74 m
Living room
Main level
4.5 m x 5.51 m
Kitchen
Main level
2.64 m x 2.97 m
Dining room
Main level
2.79 m x 3.71 m

Location