93 Haddon Avenue S, Hamilton, Ontario L8S 1X7

Listed for:
$789,000
6 beds
2 baths
Listed 8 days ago
House for rent: 93 Haddon Avenue S, Hamilton, Ontario L8S 1X7

View all 15 photos

Learn more about this property
Listing provided by:
Chase Realty Inc.
MLS® number:
40795405
Agent:
Karen Shaver
*Indicates required field
Name is required
Email is required
Please enter a valid phone number (e.g., 416-111-1111).

About

Main St. West Looking for a great investment property? Look no further. This property is a legally licensed rental property compliant under the City of Hamilton Rental Program. Licensed since August 2023, which requires inspection of the electrical system by an authorized Electricity Safety Authority (ESA) company, and inspection by Fire Department and City of Hamilton building bylaw inspector, ensuring all codes are met. This well maintained Bungalow with 6 generous bedrooms and 2 -4 piece bathrooms also has a cozy livingroom and full kitchen complete with fridge, stove and B-I dishwasher. The driveway will accommodate 4 cars in tandem. Updates include: Furnace (2024), Stainless Steel Fridge in basement ( 2025), Roof (2014), dishwasher (2008) Wiring & 100 Amp Panel (2006), Windows (2006). It is located on a quiet street and close to all amenities including McMaster University and Children's Hospital, Westdale Village, highway access, public transportation, scenic trails, excellent schools, shopping & restaurants. (id:27476)

Property Highlights

MLS® Number
40795405
Type
Single Family
Ownership Type
Freehold
Land Size
under 1/2 acre
Parking Space Total
4

Building

Building Type
House
Storeys
1.00
Square Footage
1633 sqft
Bathrooms Total
2
Bedrooms Above Ground
3
Bedrooms Total
6
Amenities
Hospital, Place of Worship, Public Transit, Schools, Shopping
Exterior Finish
Brick
Fireplace Present
No
Basement Type
Full (Finished)
Basement Features
Building Heating Type
Forced air
Heating Fuel
Natural gas
Building Cooling Type
Central air conditioning

Utilities

Water
Municipal water
Utility Sewer
Municipal sewage system

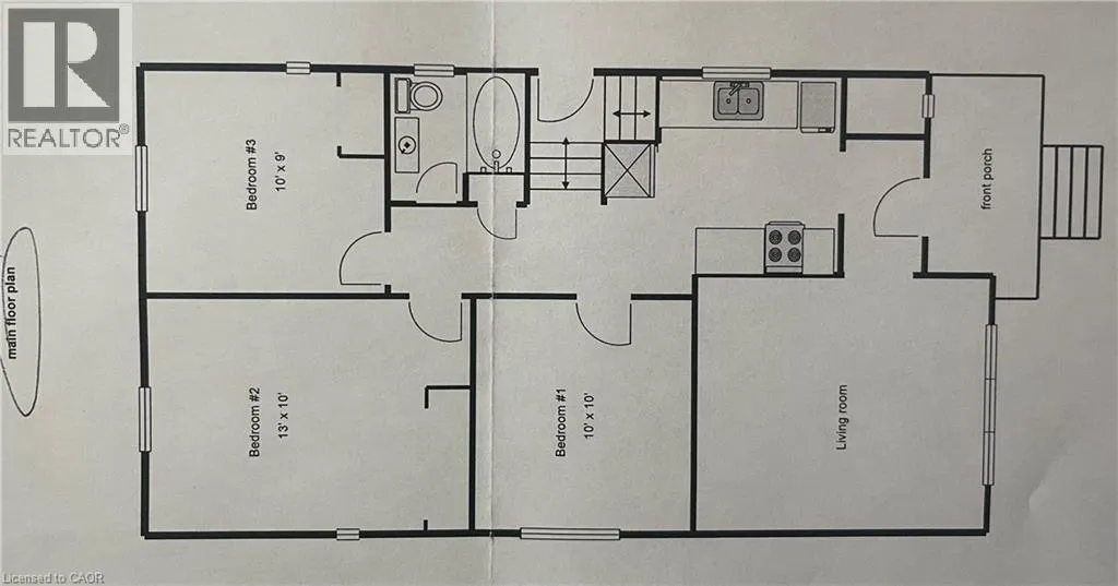
Room Layout

Utility room
Basement
Measurements not available
Laundry room
Basement
Measurements not available
4pc Bathroom
Basement
Measurements not available
Bedroom
Basement
13'0'' x 10'0''
Bedroom
Basement
17'0'' x 10'0''
Bedroom
Basement
19'0'' x 8'0''
4pc Bathroom
Main level
Measurements not available
Bedroom
Main level
10'0'' x 9'0''
Bedroom
Main level
10'0'' x 10'0''
Primary Bedroom
Main level
13'0'' x 10'0''
Kitchen
Main level
10'5'' x 7'9''
Living room
Main level
12'0'' x 11'0''

Location