232 Wellington Street N, Hamilton, Ontario L8L 5A8

Listed for:
$617,777
3 beds
3 baths
Listed 2 days ago
Row / Townhouse for rent: 232 Wellington Street N, Hamilton, Ontario L8L 5A8

View all 50 photos

Learn more about this property
Listing provided by:
REAL BROKER ONTARIO LTD.
MLS® number:
X12665622
Agent:
George Palios
*Indicates required field
Name is required
Email is required
Please enter a valid phone number (e.g., 416-111-1111).

About

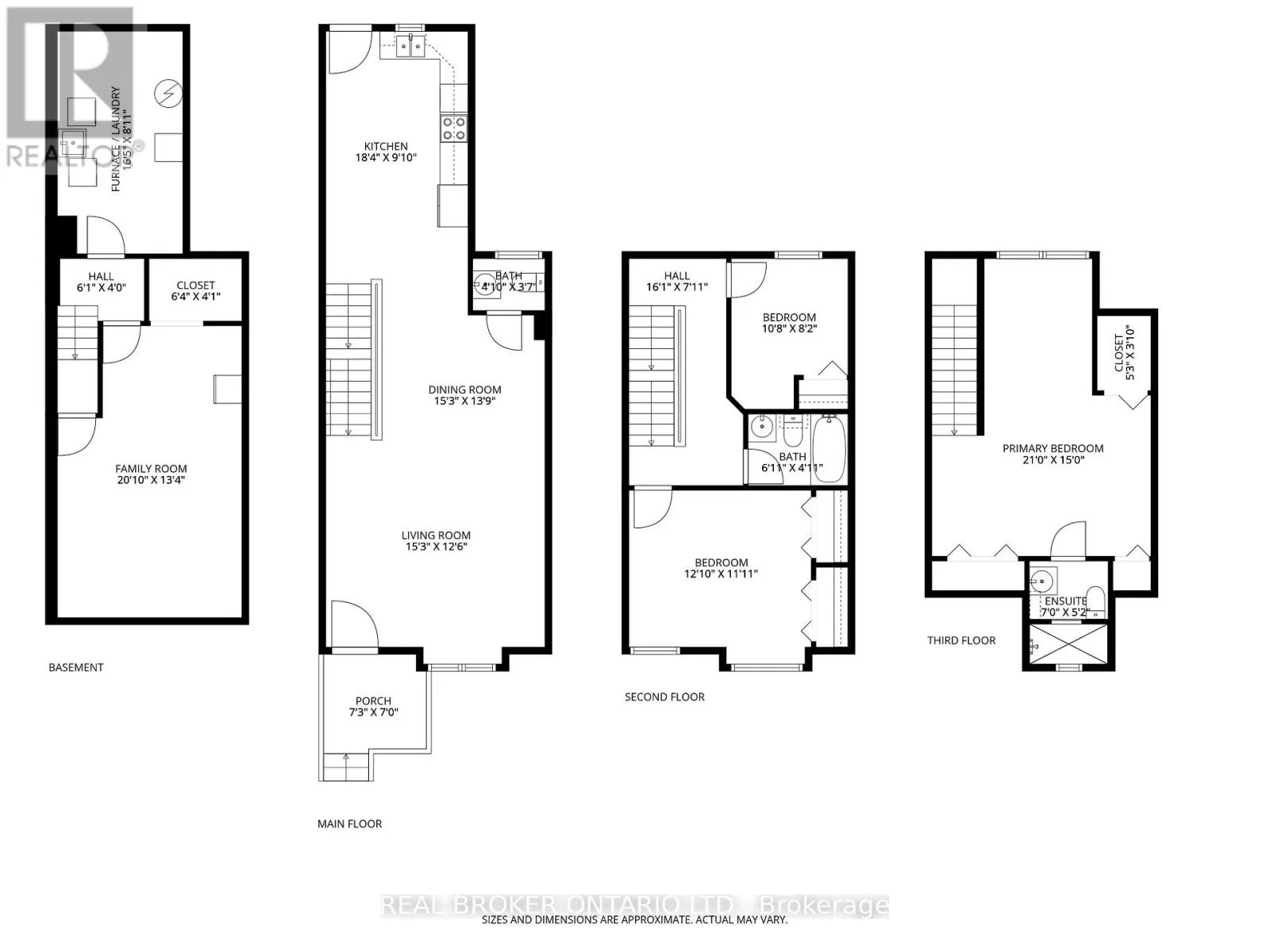
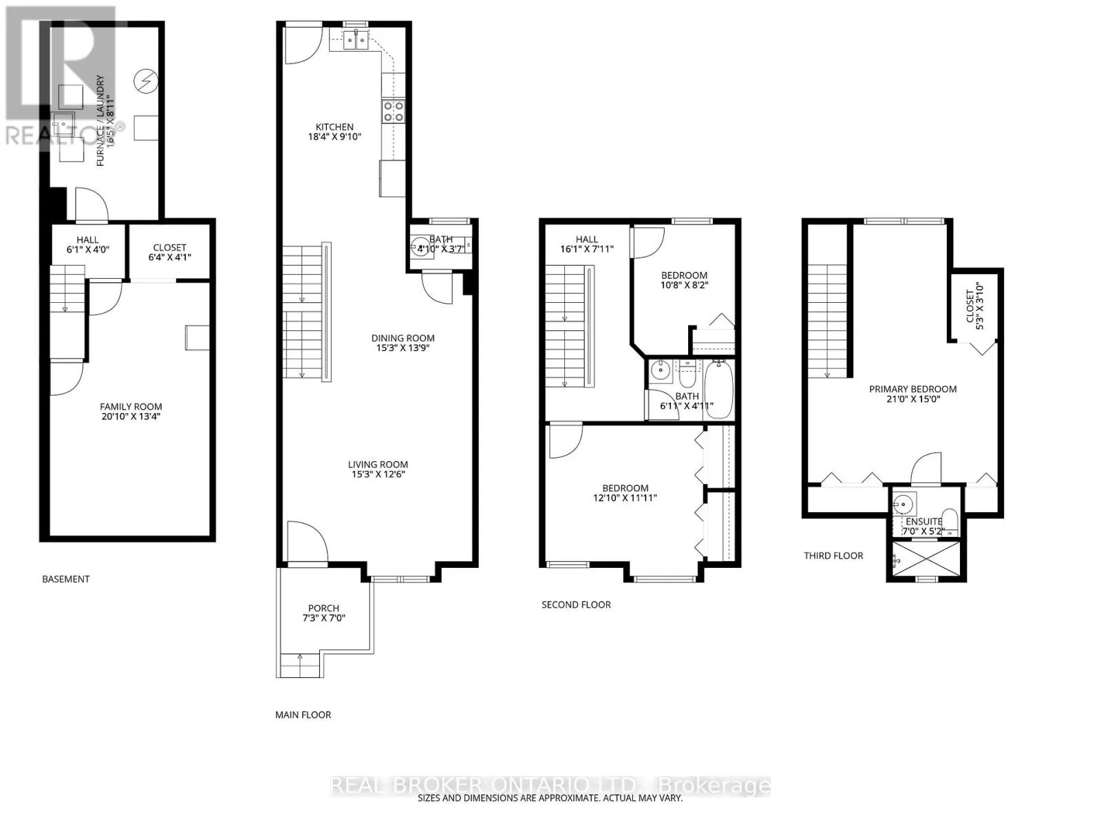
Barton & Wellington N Completely rebuilt in 2017, this move-in-ready home delivers modern comfort with unbeatable convenience. Step inside to an airy open-concept main floor with real hardwood, soaring ceilings, a giant living room, separate dining room, rare main-floor 2-piece bath, and a spacious eat-in kitchen featuring quartz counters, stainless appliances, custom millwork, and abundant storage. Walk out to a private yard and 4-car rear parking (VERY rare for the area!) with alley access from both Barton and Robert St. Upstairs offers two bright bedrooms with continued hardwood and a full 4-piece bath. The top level is your private primary retreat - large enough for a bed plus office or sitting area - complete with ensuite and built-in closets. The finished lower level adds a generous flex space (currently a bedroom) with two walk-in closets, plus an immaculate utility/laundry room showcasing full waterproofing, proper insulation, and excellent storage. Perfect for families or investors, 232Wellington St N sits steps to transit, close to Barton Village, Bayfront, and a world-class cardiac hospital. Turnkey living in a prime location! (id:27476)

Property Highlights

MLS® Number
X12665622
Type
Single Family
Community Name
Beasley
Ownership Type
Freehold
Land Size
16.7 x 137 FT|under 1/2 acre
Parking Space Total
4

Building

Building Type
Row / Townhouse
Storeys
2.50
Square Footage
1500 - 2000 sqft
Bathrooms Total
3
Bedrooms Above Ground
3
Bedrooms Total
3
Exterior Finish
Brick
Fireplace Present
No
Basement Type
Full (Partially finished)
Basement Features
Building Heating Type
Forced air
Heating Fuel
Natural gas
Building Cooling Type
Central air conditioning

Utilities

Water
Municipal water
Utility Sewer
Sanitary sewer

Room Layout

Bedroom
Second level
3.9 m x 3.2 m
Bedroom
Second level
3.2 m x 3.4 m
Bathroom
Third level
2.1 m x 1.5 m
Bedroom
Third level
6.1 m x 3.5 m
Kitchen
Ground level
5.57 m x 2.8 m
Dining room
Ground level
3.1 m x 3.3 m
Living room
Ground level
4.6 m x 3.9 m

Location

Street Spotlight - For sale