25 Orchard Hill, Hamilton, Ontario L8P 2V6

Listed for:
$1,149,000
3 beds
3 baths
Listed 65 days ago
House for rent: 25 Orchard Hill, Hamilton, Ontario L8P 2V6

View all 50 photos

About

Cross Streets: Mountain Ave. ** Directions: Aberdeen Ave to Dundurn St. South to Orchard HillRemarks. Public Remarks: South Kirkendall welcomes you to 25 Orchard Hill! This extensively renovated home, originally built in 1912 with a significant 1,000 sf addition in 2017, seamlessly blends classic charm with modern luxury. Step inside and be impressed by the large open-concept main floor, featuring rich dark hardwood floors throughout. The gorgeous coffered ceilings in the dining area add an elegant touch. The stunning kitchen is a chef's dream, boasting sleek granite countertops, high-end stainless steel appliances, including a stylish range hood, and an abundance of grey cabinetry for storage. A spacious kitchen island with seating provides a perfect spot for casual meals and entertaining. The addition includes a highly functional and beautifully designed laundry/mudroom, complete with a stacked washer and dryer, built-in storage solutions, a convenient sink, and a practical bench with hooks and drawers. Upstairs, you'll find large, bright bedrooms, all featuring hardwood floors and ample natural light. The beautifully updated washrooms showcase modern fixtures and finishes. The Master Bedroom offers a true sanctuary with its own en-suite featuring a luxurious soaker tub situated under a skylight, perfect for unwinding. Outside, the property boasts a good-sized backyard with a well-maintained lawn, a wooden deck ideal for outdoor relaxation, and mature trees offering shade and privacy. Beyond the beautiful interiors, the location at 25 Orchard Hill is exceptional. Nestled in the MOST desirable neighbourhood in Hamilton, you'll enjoy easy access to fantastic parks and trails, including the popular Chedoke Park, nearby Victoria Park, and the scenic Bruce Trail. You'll also appreciate being within walking distance to Aberdeen & Locke Street's vibrant shops and restaurants, amazing schools, and public transit. Don't miss your chance to own this "super cool hipster" home in a prime location! Come and take a look before it's gone. (id:27476)

Property Highlights

MLS® Number
X12670704
Type
Single Family
Community Name
Kirkendall
Ownership Type
Freehold
Land Size
35.5 x 105 FT
Parking Space Total
2

Building

Building Type
House
Storeys
2.00
Square Footage
1500 - 2000 sqft
Bathrooms Total
3
Bedrooms Above Ground
3
Bedrooms Total
3
Exterior Finish
Stone, Vinyl siding
Fireplace Present
No
Basement Type
N/A (Unfinished)
Basement Features
Building Heating Type
Forced air
Heating Fuel
Natural gas
Building Cooling Type
Central air conditioning

Utilities

Water
Municipal water
Utility Sewer
Sanitary sewer

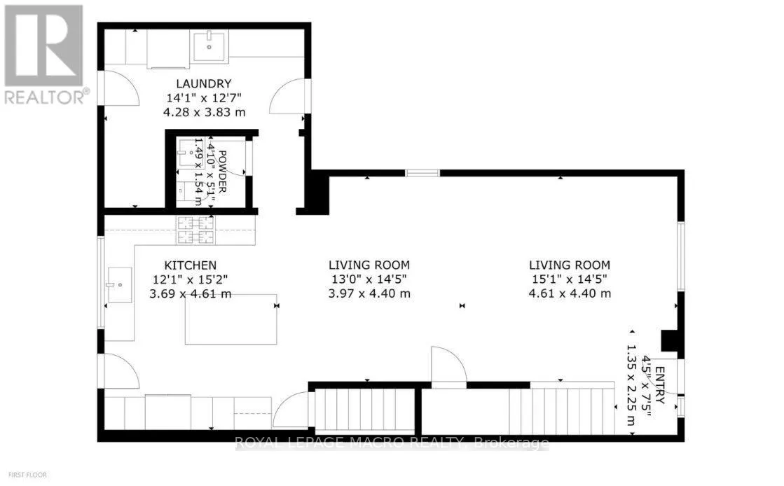
Room Layout

Den
Second level
3.06 m x 2.88 m
Primary Bedroom
Second level
4.43 m x 4.37 m
Bathroom
Second level
4.06 m x 2.55 m
Bedroom 2
Second level
3.13 m x 3.17 m
Bedroom 3
Second level
4.25 m x 3.72 m
Bathroom
Second level
3.13 m x 2.18 m
Living room
Main level
4.61 m x 4.4 m
Dining room
Main level
3.97 m x 4.4 m
Kitchen
Main level
3.69 m x 4.61 m
Laundry room
Main level
4.28 m x 3.83 m

Location

Learn more about this property
Listing provided by:
ROYAL LEPAGE MACRO REALTY
MLS® number:
X12670704
Agent:
Nadia Hirmiz
*Indicates required field
Name is required
Email is required
Please enter a valid phone number (e.g., 416-111-1111).