237 James Street N, Hamilton, Ontario L8R 2L2

Listed for:
$2,875,000
0 beds
0 baths
Listed 118 days ago
237 James Street N, Hamilton, Ontario L8R 2L2

View all 50 photos

About

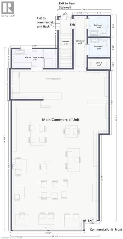
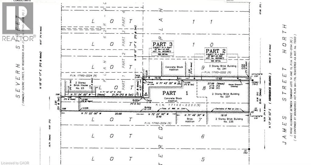
Located on the west side of James Street North between Mulberry and Colbourne Streets. Strategically positioned on a through lot with exposure and access from both James Street North and Severn Street, offering two ground-floor commercial units and four residential units above.This diversified income profile may be suitable as a holding strategy for purchasers interested in properties within growing urban corridors. An abutting parcel located at 29 Severn Street is also available for purchase under separate ownership and representation (MLS#40797994). The availability of two side-by-side properties presents a rare opportunity. Acquiring adjacent parcels may increase total land area and frontage, consolidate lot lines, and provide optionality for improved access, servicing, circulation, parking, site layout, and massing. Paired with applicable zoning permissions, an assembly of this nature may unlock a unique potential development pathway that is independent of — and incremental to — the existing income-producing investment property. 29 Severn Street is a vacant parcel that previously had conceptual drawings prepared for a mixed-use building consisting of 1 commercial unit at grade and 6 residential units above under Permit No. BP-125643; the permit has since expired. The Seller of 29 Severn Street may have drawings or related materials available for purchaser's assistance. James Street North is a vibrant cultural and commercial district known for independent shops, restaurants, galleries, and Art Crawl events that draw strong local and regional foot traffic. The corridor has also benefited from sustained institutional and private investment, including the redevelopment of the TD Colosseum, which has emerged as a major economic contributor to Hamilton’s downtown by attracting international touring acts, large-scale events, and hundreds of thousands of new visitors and potential customers annually. Recent features include wiring upgrades, a Laars FT Series boiler/tankless system (2005). (id:27476)

Property Highlights

MLS® Number
40796237
Type
Other
Ownership Type
Freehold
Land Size
0.08 ac|under 1/2 acre

Building

Storeys
3.00
Square Footage
6898 sqft
Amenities
Hospital, Public Transit
Fireplace Present
No
Basement Type
Full
Basement Features
Building Heating Type
Heating Fuel
Building Cooling Type

Utilities

Water
Municipal water
Utility Sewer
Municipal sewage system

Location

Learn more about this property
Listing provided by:
eXp Realty
MLS® number:
40796237
Agent:
Bernard Tompkins
*Indicates required field
Name is required
Email is required
Please enter a valid phone number (e.g., 416-111-1111).

Street Spotlight - For sale