151 Lynden Road, Hamilton, Ontario L0R 1T0

Listed for:
$799,000
3 beds
3 baths
Listed 25 days ago
House for rent: 151 Lynden Road, Hamilton, Ontario L0R 1T0

View all 24 photos

About

Cross Streets: Conc 2 Rd W & Lynden Rd. ** Directions: 151 Lynden Rd. Welcome home to this lovely rural 3 bedroom home in the quaint village of Lynden. This two story century home is set on a large fenced lot. The open concept main floor is filled with natural light, eat in kitchen, has a cozy fireplace, main floor laundry and views of the expansive yard which backs onto farmland. 3 nice sized bedrooms and a spacious bathroom with a soaker tub. Perfect for those who lovely rural life but conveniently located with walking distance to the community amentities. Loads of updates and a fabulous garage for hobbyists. EV charger, Greenhouse and shed along with a dog house complete this great property. (id:27476)

Property Highlights

MLS® Number
X12717554
Type
Single Family
Community Name
Lynden
Ownership Type
Freehold
Land Size
70 x 241 FT
Parking Space Total
8

Building

Building Type
House
Storeys
2.00
Square Footage
1500 - 2000 sqft
Bathrooms Total
3
Bedrooms Above Ground
3
Bedrooms Total
3
Amenities
Fireplace(s)
Exterior Finish
Vinyl siding
Fireplace Present
Yes
Basement Type
N/A (Unfinished)
Basement Features
Building Heating Type
Forced air
Heating Fuel
Natural gas
Building Cooling Type
Central air conditioning

Utilities

Utility Sewer
Septic System

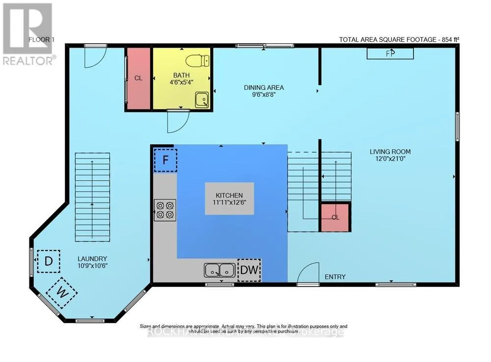
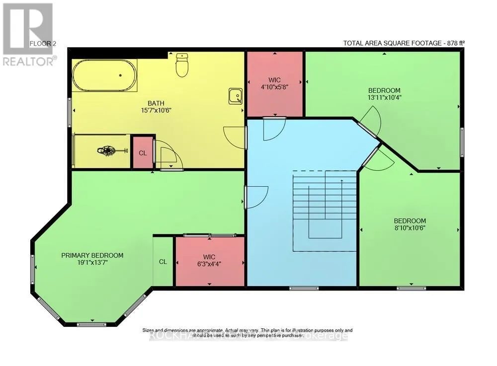
Room Layout

Primary Bedroom
Second level
5.82 m x 4.34 m
Kitchen
Ground level
3.63 m x 3.81 m
Dining room
Ground level
2.9 m x 2.64 m
Living room
Ground level
6.4 m x 3.66 m
Laundry room
Ground level
3.28 m x 3.2 m
Bedroom
Ground level
3.2 m x 2.69 m
Bedroom
Ground level
4.24 m x 4.06 m

Location

Learn more about this property
Listing provided by:
ROCKHAVEN REALTY INC.
MLS® number:
X12717554
Agent:
Phil Calvano
*Indicates required field
Name is required
Email is required
Please enter a valid phone number (e.g., 416-111-1111).