184 Dundas Street E, Hamilton, Ontario L8N 2Z7

Listed for:
$1,875,000
5 beds
6 baths
Listed 63 days ago
House for rent: 184 Dundas Street E, Hamilton, Ontario L8N 2Z7

View all 39 photos

About

Dundas St. East & Riley Discover luxury and lifestyle in this beautifully crafted custom bungalow, situated on an impressive 0.45-acre lot just minutes from downtown Waterdown. This home offers nearly 5,000sq. ft. of living space, featuring 5 bedrooms (3 on the main floor / 2 on lower level) and 6 bathrooms (3 + 3). The spacious design provides a flexible floor plan, ideal for a multi generational family or in-law suite. As you approach the property, you'll be greeted by oversized trees and thoughtfully designed landscaping, complemented by ample parking. The main entrance features custom doors and a covered front entry. The main foyer overlooks the sunken great room, which has French doors opening to the flagstone patio with an awning. The main floor also includes a private office, perfect for remote work, and a separate formal dining room. The open-concept kitchen and family room create an entertainer's delight, equipped with large glass sliders that lead to a bright sunroom. The family room features a stunning granite wall and a gas fireplace. The modern lower level is finished to perfection, featuring 2 spacious bedrooms, each with walk-in closets and personal 3-piece en-suites. The open-concept kitchen and family room flow seamlessly to a walkout patio, providing an excellent setting for relaxation. With a separate entrance and privacy, this lower level also has lots of room for additional family or as an in-law suite. Step outside to your own backyard oasis, complete with a cozy fire pit area and multi-level patios made of flagstone and interlock, all enclosed by a fully fenced yard for your private enjoyment. The professionally landscaped exterior features natural rockery and mature gardens, enhancing the home's impressive curb appeal. Agent related to the owner. Additional highlights include: - 2 kitchens and 2 laundry rooms- 2.5 car garage- Irrigation system- Backyard shed- A full-house generator. (id:27476)

Property Highlights

MLS® Number
X12735150
Type
Single Family
Community Name
Waterdown
Ownership Type
Freehold
Land Size
105.4 x 184.8 FT
Parking Space Total
15

Building

Building Type
House
Storeys
1.00
Square Footage
2000 - 2500 sqft
Bathrooms Total
6
Bedrooms Above Ground
3
Bedrooms Total
5
Amenities
Fireplace(s) Park, Place of Worship, Public Transit
Exterior Finish
Brick
Fireplace Present
Yes
Basement Type
Full, N/A, N/A (Finished), N/A, N/A
Basement Features
Apartment in basement, Walk out, Separate entrance, Walk-up
Building Heating Type
Forced air
Heating Fuel
Natural gas
Building Cooling Type
Central air conditioning

Utilities

Water
Municipal water
Power
Generator
Utility Sewer
Sanitary sewer

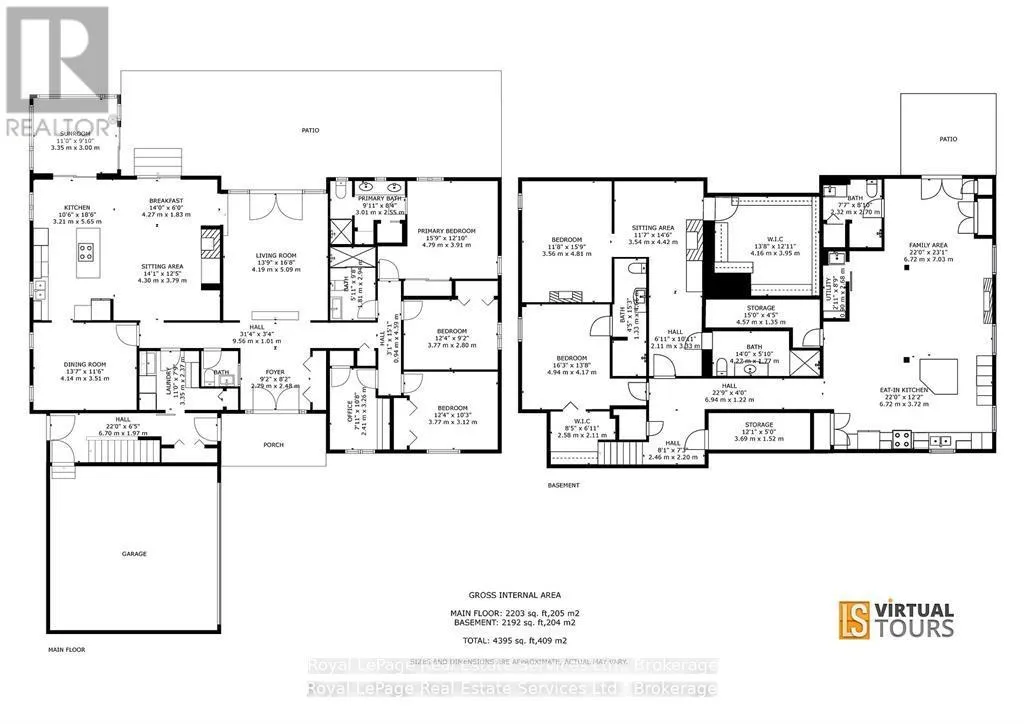
Room Layout

Kitchen
Lower level
6.72 m x 3.72 m
Family room
Lower level
6.72 m x 7.03 m
Primary Bedroom
Lower level
3.56 m x 7.1 m
Bedroom 2
Lower level
4.94 m x 4.17 m
Laundry room
Main level
3.35 m x 2.4 m
Great room
Ground level
4.19 m x 5.09 m
Kitchen
Ground level
2.21 m x 5.65 m
Family room
Ground level
8.57 m x 5.62 m
Sunroom
Ground level
3.35 m x 3 m
Dining room
Ground level
4.24 m x 3.51 m
Office
Ground level
2.16 m x 3.29 m
Primary Bedroom
Ground level
4.79 m x 3.91 m
Bedroom 2
Ground level
3.77 m x 2.8 m
Bedroom 3
Ground level
3.77 m x 3.12 m

Location

Learn more about this property
Listing provided by:
Royal LePage Real Estate Services Ltd., Brokerage
MLS® number:
X12735150
Agent:
Kim Wright
*Indicates required field
Name is required
Email is required
Please enter a valid phone number (e.g., 416-111-1111).

Street Spotlight - For sale