75 Olivia Place, Hamilton, Ontario L9K 1R4

Listed for:
$799,000
4 beds
3 baths
Listed 27 days ago
Row / Townhouse for rent: 75 Olivia Place, Hamilton, Ontario L9K 1R4

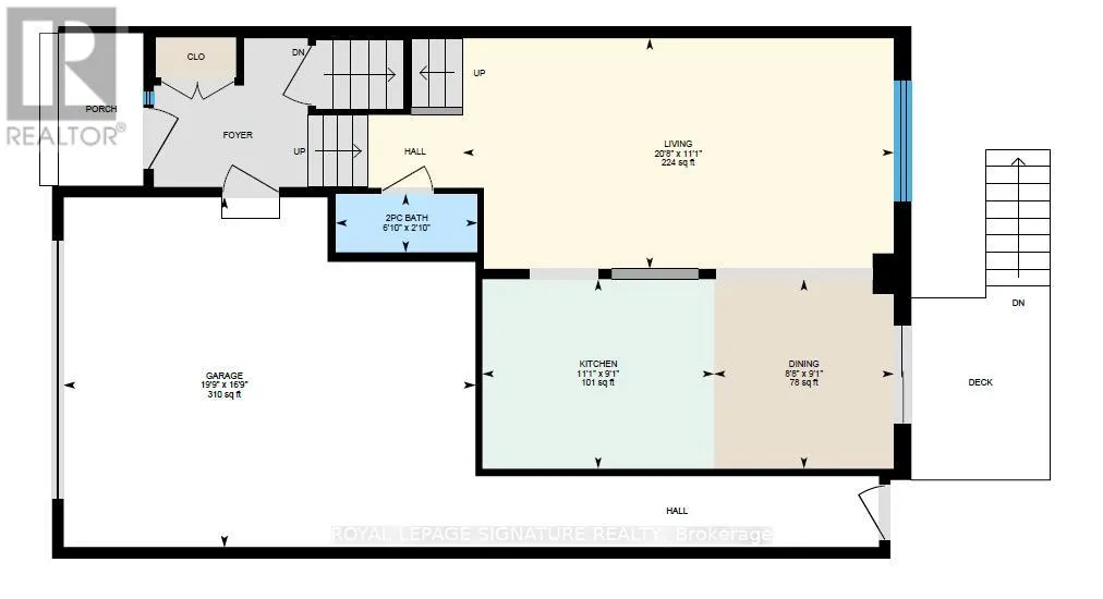
View all 49 photos

About

Stonehenge Dr/Meadowlands Blvd *3D Virtual Tour Attached* 1499 + 400 SF (As Per MPAC) Welcome to this beautifully renovated home situated on an extra-wide lot on a quiet, family-friendly cul-de-sac in Ancaster's highly sought-after Meadowlands community. Enjoy unbeatable convenience with quick access to The LINC and Hwy 403, making commuting throughout Hamilton and the GTA effortless. This move-in-ready residence features a bright, open-concept main level with a chef-inspired kitchen seamlessly flowing into the living area-ideal for everyday living and entertaining. Offering 3+1 bedrooms and 2.5 bathrooms, the home is thoughtfully designed with high-end finishes throughout and freshly painted from top to bottom. The second floor boasts all-new, frameless windows, providing unobstructed views and an abundance of natural light. Additional highlights include an attached 1.5-car garage and generous living spaces throughout. Walking distance to top-rated schools, including Ancaster Meadow Elementary and Holy Name of Mary Catholic Elementary, as well as expansive parks, trails, shopping, and dining. A rare opportunity to own a turnkey home in one of Ancaster's most desirable neighbourhoods. (id:27476)

Property Highlights

MLS® Number
X12738392
Type
Single Family
Community Name
Meadowlands
Ownership Type
Freehold
Land Size
25.3 x 85.3 FT
Parking Space Total
3

Building

Building Type
Row / Townhouse
Storeys
2.00
Square Footage
1100 - 1500 sqft
Bathrooms Total
3
Bedrooms Above Ground
3
Bedrooms Total
4
Exterior Finish
Brick, Stone
Fireplace Present
Yes
Basement Type
Full (Finished)
Basement Features
Building Heating Type
Forced air
Heating Fuel
Natural gas
Building Cooling Type
Central air conditioning, Ventilation system

Utilities

Water
Municipal water
Utility Sewer
Sanitary sewer

Room Layout

Primary Bedroom
Second level
4.09 m x 4.01 m
Bedroom
Second level
3.73 m x 3.48 m
Bedroom
Second level
3.28 m x 2.82 m
Living room
Main level
5.99 m x 3.35 m
Kitchen
Main level
5.74 m x 3 m

Location

Learn more about this property
Listing provided by:
ROYAL LEPAGE SIGNATURE REALTY
MLS® number:
X12738392
Agent:
Sumit Taggar
*Indicates required field
Name is required
Email is required
Please enter a valid phone number (e.g., 416-111-1111).

Community Spotlight: Homes For sale in Your Neighborhood