263 Houghton Avenue S, Hamilton, Ontario L8K 2N4

Listed for:
$680,000
3 beds
2 baths
Listed 15 days ago
House for rent: 263 Houghton Avenue S, Hamilton, Ontario L8K 2N4

View all 36 photos

About

Cross Streets: King St E & Kenilworth. ** Directions: South of King St. E. Attention First Time Home Buyers and Young Families! Renovated detached home with a private driveway and detached garage. Fantastic opportunity to own this 3 bedroom, 2 bath home nestled in the highly desirable Delta neighbourhood. This warm & inviting gem is full of character and charm. The open concept main floor features an open concept living & dining room with large windows and plenty of natural light. The renovated kitchen flows seamlessly into the dining room and features a beautiful custom wood breakfast bar along with stainless steel appliances. An additional sunroom provides extra living space and can also be used as an office. Relax in the primary bedroom featuring a large closet and 3 pc. ensuite, rare for this neighbourhood. Two additional bedrooms and a second full bathroom upstairs are ideal for the growing family. The finished lower level offers additional living space that can serve as a recreation room, home gym, or media area. Enjoy warm summer nights in the private backyard that is perfect for summer BBQ's. Short drive to Hamilton's downtown, featuring a variety of shops, cafes and restaurants. Easy access to major highways and public transit, make commuting a breeze. Furnace'20, CAC'19, Shingles'16. (id:27476)

Property Highlights

MLS® Number
X12743056
Type
Single Family
Community Name
Delta
Ownership Type
Freehold
Land Size
45.5 x 102.5 FT|under 1/2 acre
Parking Space Total
3

Building

Building Type
House
Storeys
2.00
Square Footage
1100 - 1500 sqft
Bathrooms Total
2
Bedrooms Above Ground
3
Bedrooms Total
3
Exterior Finish
Brick Facing, Steel
Fireplace Present
No
Basement Type
N/A (Finished)
Basement Features
Building Heating Type
Forced air
Heating Fuel
Natural gas
Building Cooling Type
Central air conditioning

Utilities

Water
Municipal water
Utility Sewer
Sanitary sewer

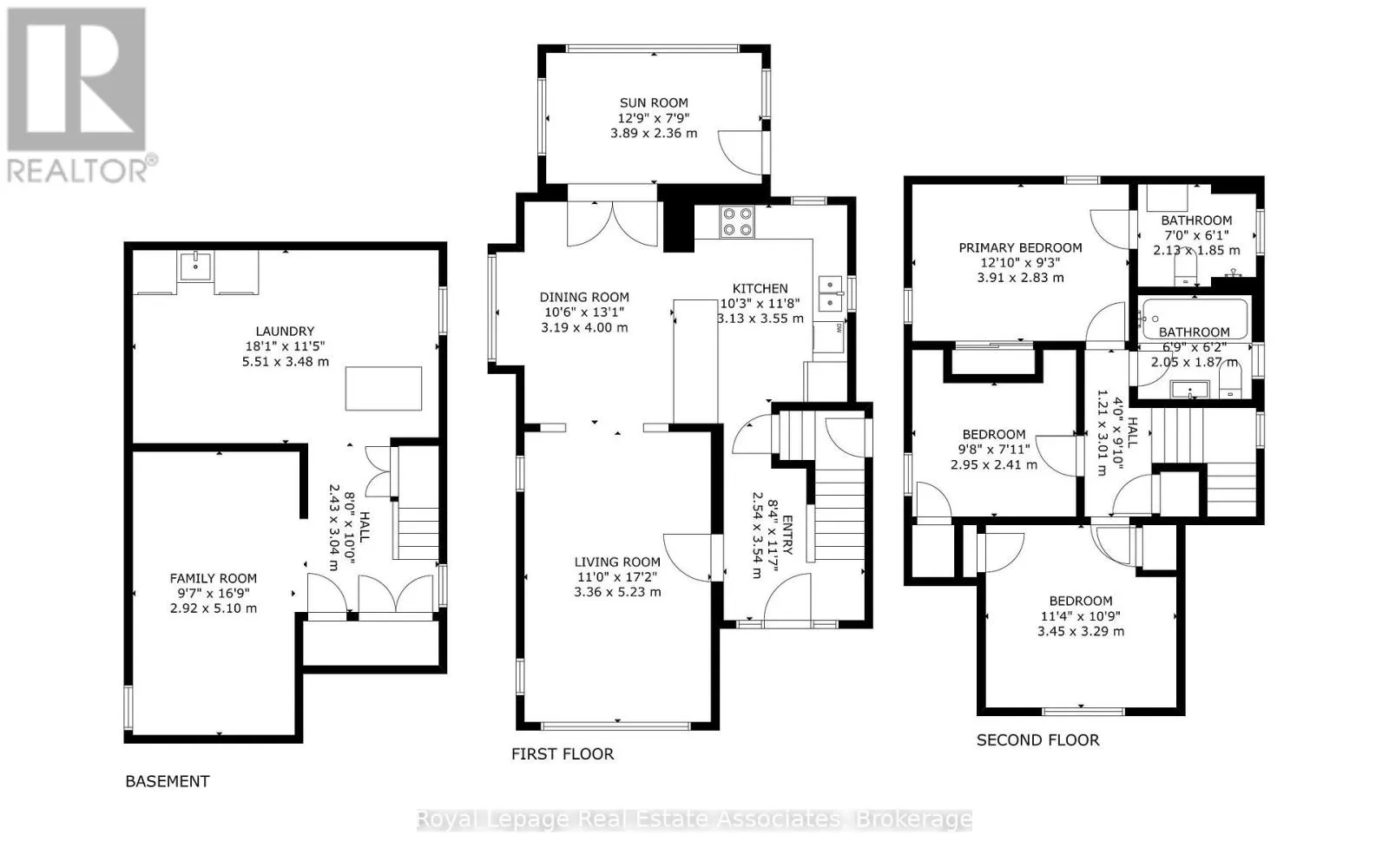
Room Layout

Primary Bedroom
Second level
3.91 m x 2.83 m
Bedroom 2
Second level
3.45 m x 3.29 m
Bedroom 3
Second level
2.95 m x 2.41 m
Recreational, Games room
Basement
5.1 m x 2.92 m
Kitchen
Main level
3.55 m x 3.13 m
Living room
Main level
5.23 m x 3.36 m
Dining room
Main level
4 m x 3.19 m
Sunroom
Main level
3.89 m x 2.36 m

Location

Learn more about this property
Listing provided by:
Royal Lepage Real Estate Associates
MLS® number:
X12743056
Agent:
Sean Hanlon
*Indicates required field
Name is required
Email is required
Please enter a valid phone number (e.g., 416-111-1111).