36 - 40 Zinfandel Drive, Hamilton, Ontario L8E 0L1

Listed for:
$2,695
3 beds
3 baths
Listed 14 days ago
Row / Townhouse for rent: 36 - 40 Zinfandel Drive, Hamilton, Ontario L8E 0L1

View all 23 photos

About

Cross Streets: Barton/Foothills/Zinfandel Dr. ** Directions: Fifty Rd/Barton/Foothills/Zinfandel Drive. Beautiful End unit Townhouse in the sought after Foothills of Winona. 3 bed, 2.5 washrooms.Attached Garage with a driveway. Lots of natural Light. Loaded features and upgrades, 9'ceiling, bright open concept living/dining room, modern kitchen upgraded cabinets, a large island, Pot lights & equipped with new S/S appliances. Spacious primary bedroom, with closet and an ensuite. One additional bedroom and a full bathroom complete the bedroom level. 3 minutes for QEW access and walking distance to shopping center, restaurants, Costco, Metro,conservation park, schools and the future GO Station, Fifty Point Marina and Wine country.Rental HWT+HRV. No Pets, No Smokers. (id:27476)

Property Highlights

MLS® Number
X12746292
Type
Single Family
Community Name
Winona
Ownership Type
Freehold
Land Size
under 1/2 acre
Parking Space Total
2

Building

Building Type
Row / Townhouse
Storeys
3.00
Square Footage
1100 - 1500 sqft
Bathrooms Total
3
Bedrooms Above Ground
3
Bedrooms Total
3
Exterior Finish
Brick, Stone
Fireplace Present
No
Basement Type
None
Basement Features
Building Heating Type
Forced air
Heating Fuel
Electric
Building Cooling Type
Central air conditioning

Utilities

Water
Municipal water
Utility Sewer
Sanitary sewer

Room Layout

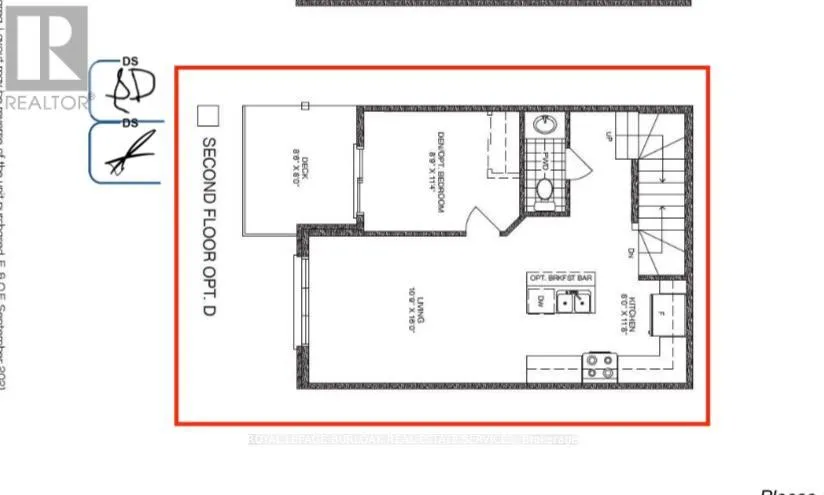
Kitchen
Second level
2.4 m x 3.5 m
Living room
Second level
3.3 m x 4.8 m
Bedroom
Second level
0.7 m x 3.4 m
Bathroom
Second level
2.4 m x 1.21 m
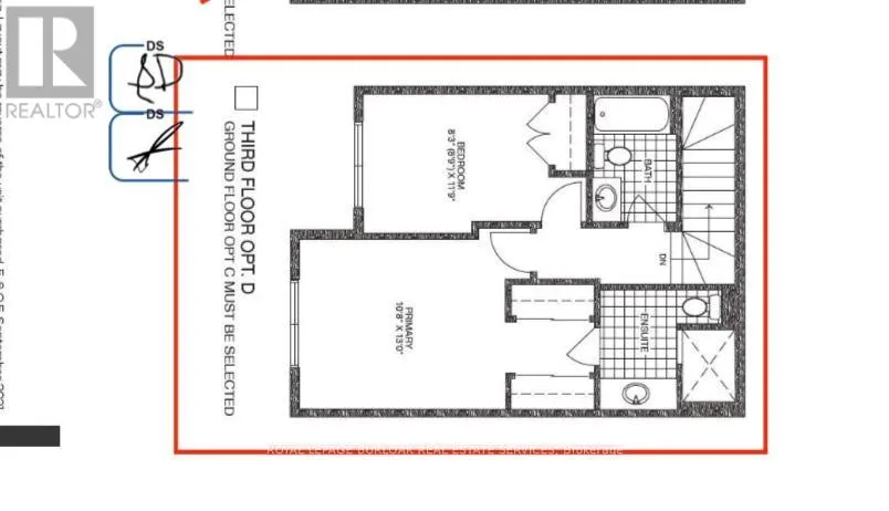
Primary Bedroom
Third level
3.29 m x 3.96 m
Bedroom
Third level
2.71 m x 3.6 m
Bathroom
Third level
2.46 m x 2.71 m
Bathroom
Third level
2.42 m x 1.88 m
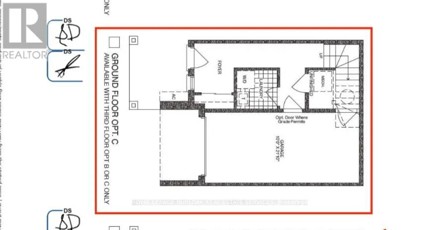
Laundry room
Main level
1.41 m x 1.21 m

Location

Learn more about this property
Listing provided by:
ROYAL LEPAGE BURLOAK REAL ESTATE SERVICES
MLS® number:
X12746292
Agent:
Sharmila Dave
*Indicates required field
Name is required
Email is required
Please enter a valid phone number (e.g., 416-111-1111).