461 Green Road Unit# 705, Hamilton, Ontario L8E 5B4

Listed for:
$2,000
2 beds
1 baths
Listed 11 days ago
Apartment for rent: 461 Green Road Unit# 705, Hamilton, Ontario L8E 5B4

View all 27 photos

About

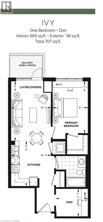
NORTH SERVICE RD TO GREEN RD. Modern Condo Living with Lake Views – Muse Condominiums, Stoney Creek Welcome to Muse Lakeview Condominiums in vibrant Stoney Creek! This stunning “Ivy” model on the 7th floor features contemporary design, smart-home features, and an unbeatable location just steps from Lake Ontario and the upcoming Confederation GO Station. This 1 bedroom + den, 1 bath suite features 669 sq. ft. of stylish interior living space, plus a 38 sq. ft. private balcony. Enjoy 9’ ceilings, luxury vinyl plank flooring, and quartz countertops in both the kitchen and bathroom. The kitchen is complete with upgraded appliance package, backsplash and cabinets. The spacious primary bedroom includes a walk-in closet, and there’s convenient in-suite laundry. Smart technology enhances daily living with app-based climate control, digital building access, energy monitoring, and enhanced security. 1 underground parking space and 1 storage locker are included. Exceptional building amenities include a 6th-floor BBQ terrace, chef’s kitchen lounge, art studio, media/business room, pet spa, and more. Minutes to Confederation Park, Van Wagners Beach, scenic trails, shopping, dining, major highways, and future transit – this is your chance to lease a premium suite in one of Stoney Creek’s most exciting new communities. Move-in Incentive available. Enjoy discounted rent during final building construction period. (id:27476)

Property Highlights

MLS® Number
40802938
Type
Single Family
Maintenance Fee
1.00
Ownership Type
Condominium
Land Size
under 1/2 acre
Parking Space Total
1

Building

Building Type
Apartment
Storeys
1.00
Square Footage
669 sqft
Bathrooms Total
1
Bedrooms Above Ground
1
Bedrooms Total
2
Amenities
Exercise Centre, Party Room Hospital, Park, Place of Worship, Playground, Public Transit, Schools, Shopping
Exterior Finish
Brick, Other, Stucco
Fireplace Present
No
Basement Type
None
Basement Features
Building Heating Type
Heat Pump
Heating Fuel
Electric
Building Cooling Type
Central air conditioning

Utilities

Water
Municipal water
Utility Sewer
Municipal sewage system

Room Layout

Laundry room
Main level
Measurements not available
Den
Main level
7'1'' x 8'2''
4pc Bathroom
Main level
Measurements not available
Primary Bedroom
Main level
13'3'' x 9'1''
Living room/Dining room
Main level
15'2'' x 10'2''
Eat in kitchen
Main level
9'11'' x 10'2''

Location

Learn more about this property
Listing provided by:
RE/MAX Escarpment Realty Inc.
MLS® number:
40802938
Agent:
Jeff Robson
*Indicates required field
Name is required
Email is required
Please enter a valid phone number (e.g., 416-111-1111).

Street Spotlight - For rent