67 Caroline Street S Unit# 20b, Hamilton, Ontario L8P 3K6

Listed for:
$2,600
2 beds
2 baths
Listed 10 days ago
Apartment for rent: 67 Caroline Street S Unit# 20b, Hamilton, Ontario L8P 3K6

View all 22 photos

About

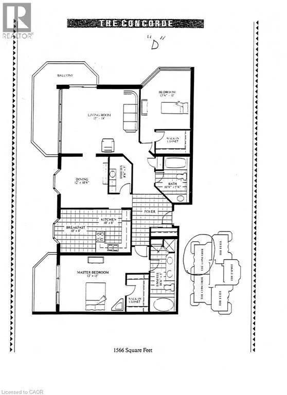
corner of Jackson St. and Caroline St. South The Bentley, sought after condo in the heart of Hamilton Durand neighbourhood. This unit offers many desirable features; 9 ft. ceilings, 2 baths, 2 bedrooms, each with a walk-in-closet, master bedroom has ensuite bath with separate jetted tub and shower, in-suite laundry and underground parking for two mid-size cars. Enjoy city views from ceiling to floor windows or the 2 balconies. Brand new windows were installed in 2025. The building is well maintained and provides a fitness facility & party room with kitchen. It is walking distance to shopping, dining, theatre, transit, Go Station and all downtown amenities. (id:27476)

Property Highlights

MLS® Number
40803187
Type
Single Family
Maintenance Fee
0.00
Ownership Type
Condominium
Land Size
Unknown
Parking Space Total
2

Building

Building Type
Apartment
Storeys
1.00
Square Footage
1566 sqft
Bathrooms Total
2
Bedrooms Above Ground
2
Bedrooms Total
2
Amenities
Exercise Centre, Party Room Hospital, Marina, Park, Place of Worship, Public Transit, Schools
Exterior Finish
Concrete
Fireplace Present
No
Basement Type
None
Basement Features
Building Heating Type
Heating Fuel
Electric
Building Cooling Type
Central air conditioning

Utilities

Water
Municipal water
Utility Sewer
Municipal sewage system

Room Layout

4pc Bathroom
Main level
Measurements not available
Laundry room
Main level
5'0'' x 4'0''
Bedroom
Main level
13'6'' x 11'0''
4pc Bathroom
Main level
8'0'' x 4'0''
Primary Bedroom
Main level
15'0'' x 12'0''
Eat in kitchen
Main level
20'0'' x 8'0''
Dining room
Main level
11'0'' x 10'0''
Living room
Main level
18'0'' x 15'0''
Foyer
Main level
8'0'' x 6'0''

Location

Learn more about this property
Listing provided by:
Chase Realty Inc.
MLS® number:
40803187
Agent:
Karen Shaver
*Indicates required field
Name is required
Email is required
Please enter a valid phone number (e.g., 416-111-1111).