508 - 495 Highway 8, Hamilton, Ontario L8G 5E1

Listed for:
$1,750
1 beds
1 baths
Listed 6 days ago
Apartment for rent: 508 - 495 Highway 8, Hamilton, Ontario L8G 5E1

View all 32 photos

About

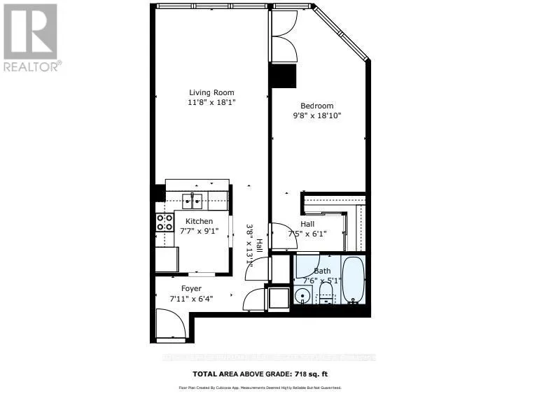
Dewitt Road Welcome to this charming condo in the sought-after Renaissance building, an excellent opportunity for first-time buyers, downsizers, or anyone looking to enjoy comfortable, low-maintenance living in a highly convenient Stoney Creek location only 20 mins from Downtown Burlington. Just minutes from the lake and surrounded by everyday essentials including shopping, dining, transit, and services, this well-situated home also offers quick and easy highway access-perfect for commuters and those with an active lifestyle. Step inside to discover a bright, functional layout designed for effortless living. The kitchen is both practical and inviting, featuring a classic tile backsplash, ample cabinetry for storage, stainless steel appliances, and a convenient breakfast bar-ideal for casual meals, entertaining, or your morning coffee routine. Laminate flooring flows seamlessly throughout the unit. The spacious living room is filled with natural light from a large window, creating a warm and welcoming space to relax, unwind, or host friends and family. The generously sized bedroom also enjoys large windows and abundant natural light, providing a peaceful and comfortable retreat. A well-maintained 4-piece bathroom completes the interior, offering both functionality and comfort. Residents of this well-managed building enjoy access to an impressive selection of amenities designed to enhance everyday living, including a squash court, exercise centre, games room, library, sauna, and ample visitor parking for guests. Whether you're entering the market, simplifying your lifestyle, or searching for a comfortable home in a fantastic location close to the lake and all conveniences, this bright and inviting condo offers exceptional value and easy living. (id:27476)

Property Highlights

MLS® Number
X12772588
Type
Single Family
Community Name
Stoney Creek
Ownership Type
Condominium/Strata
Parking Space Total
1

Building

Building Type
Apartment
Square Footage
700 - 799 sqft
Bathrooms Total
1
Bedrooms Above Ground
1
Bedrooms Total
1
Amenities
Storage - Locker Park, Place of Worship
Exterior Finish
Stucco
Fireplace Present
No
Basement Type
None
Basement Features
Building Heating Type
Baseboard heaters
Heating Fuel
Electric
Building Cooling Type
Central air conditioning

Location

Learn more about this property
Listing provided by:
ROYAL LEPAGE BURLOAK REAL ESTATE SERVICES
MLS® number:
X12772588
Agent:
Cathy Rocca
*Indicates required field
Name is required
Email is required
Please enter a valid phone number (e.g., 416-111-1111).

Street Spotlight - For rent