42 East 31st Street, Hamilton, Ontario L8V 3N7

Listed for:
$689,000
4 beds
3 baths
Listed 34 days ago
House for rent: 42 East 31st Street, Hamilton, Ontario L8V 3N7

View all 50 photos

About

Take Mohawk Rd East to Upper Sherman Ave. Drive North Turn Right on Concession St. First Right is East 31St Street- Home is on the right side. Freshly updated & move-in ready! This 4-bedroom, 3 bath home has two kitchens, recreation room, 2 laundry areas and a separate entrance, offering a versatile layout to accommodate your large family, extended family, or the possibility to generate rental income. The double-wide driveway fits 2 vehicles and leads to a front deck and large enclosed porch. Inside, the foyer opens into a bright open concept living/dining space featuring new ¾” hardwood flooring and high ceilings throughout the main level. The main floor includes 3 bedrooms, all with hardwood, plus a new 4-piece bathroom with porcelain flooring, a soaker tub, and tile surround. The new eat-in kitchen features quartz countertops, ample cabinetry, hardwood flooring, and a quartz breakfast bar. It also provides access to a common area with a separate side entrance, leading to the backyard and upper portion of the home. The separate entrance off the kitchen has stairs that lead to a landing and a cozy upper deck with glass railing overlooking the yard. A few steps up is another landing that works perfectly as a mudroom, before entering the upper unit. The upper level has been updated and includes a newer kitchen with luxury vinyl flooring and granite countertops, plus an updated 4-piece bathroom with luxury vinyl flooring and a glass-entry shower with ceramic tile surround. The original hardwood has been refinished and runs through the spacious bedroom and combined living/dining area, which features vaulted ceilings and recessed lighting. The newly constructed lower level offers a recreation room with recessed lighting and broadloom, a 2-piece bath, and a large laundry/mechanical/storage area. Ideally located near Juravinski Hospital, this property is perfect for investors, extended families, or anyone looking for a flexible layout with income potential to help pay for expenses. (id:27476)

Property Highlights

MLS® Number
40790514
Type
Single Family
Ownership Type
Freehold
Land Size
0.07 ac|under 1/2 acre
Parking Space Total
2

Building

Building Type
House
Storeys
1.50
Square Footage
2142 sqft
Bathrooms Total
3
Bedrooms Above Ground
4
Bedrooms Total
4
Amenities
Hospital, Public Transit, Shopping
Exterior Finish
Brick Veneer, Other, Vinyl siding
Fireplace Present
No
Basement Type
Full (Finished)
Basement Features
Building Heating Type
Forced air
Heating Fuel
Natural gas
Building Cooling Type
None

Utilities

Water
Municipal water
Utility Sewer
Municipal sewage system

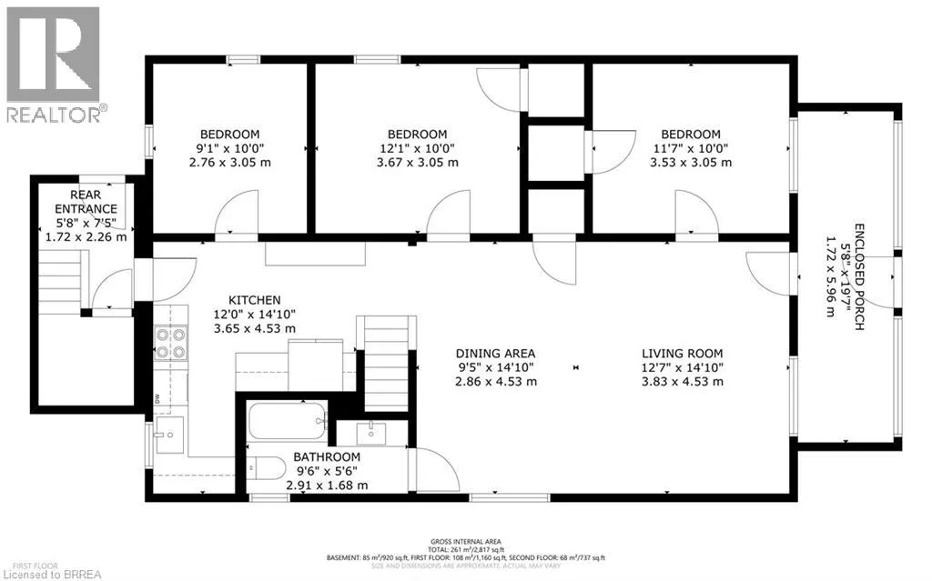
Room Layout

Bedroom
Second level
12'5'' x 9'3''
4pc Bathroom
Second level
8'8'' x 5'0''
Living room/Dining room
Second level
18'0'' x 15'7''
Kitchen
Second level
15'7'' x 7'3''
Storage
Basement
24'8'' x 14'10''
Laundry room
Basement
22'5'' x 13'8''
2pc Bathroom
Basement
6'2'' x 3'3''
Recreation room
Basement
21'11'' x 10'7''
Bedroom
Main level
10'0'' x 9'1''
Bedroom
Main level
11'7'' x 10'0''
Bedroom
Main level
12'1'' x 10'0''
4pc Bathroom
Main level
9'6'' x 5'6''
Eat in kitchen
Main level
14'10'' x 12'0''
Dining room
Main level
14'10'' x 9'5''
Living room
Main level
14'10'' x 12'7''
Porch
Main level
19'7'' x 5'8''

Location

Learn more about this property
Listing provided by:
Royal LePage Action Realty
MLS® number:
40790514
Agent:
Tony Pucci
*Indicates required field
Name is required
Email is required
Please enter a valid phone number (e.g., 416-111-1111).