100 Graham Avenue S, Hamilton, Ontario L8K 2M3

Listed for:
$624,900
2 beds
2 baths
Listed 2 days ago
House for rent: 100 Graham Avenue S, Hamilton, Ontario L8K 2M3

View all 40 photos

About

Cross Streets: Monterey. ** Directions: East on Main South on Graham Ave S. Welcome to 100 Graham Avenue S in prime Delta East. This charming all brick 2 bedroom, 2 bathroom home perfectly blends timeless character with thoughtful modern updates. From the moment you arrive, you'll appreciate the warmth and curb appeal of this lovely home. Inside, the original hardwood flooring offers character and authenticity, while the open concept living and dining areas create an inviting space ideal for both everyday living and entertaining. Enjoy cosy evenings in front of the fireplace or host a meal with friends. The updated kitchen is bright and modern, featuring stylish backsplash, stone countertops and tasteful cabinets. The kitchen also features built-in bench seating with storage and a convenient built-in coffee station. An updated 3 piece bath with glass shower and a practical (and rare!) mudroom with walk out to the backyard and driveway contribute to the functionality of the main level. Upstairs you'll find the oversized primary bedroom and a second bedroom, both with original hardwood floors and large windows. The finished basement provides valuable usable additional living space, perfect for a family room, home office or guest space complete with a second full bathroom with tub. 2 car parking in the driveway plus the detached garage complete the package. All of this is set in an amazing neighbourhood known for its community feel and close proximity to amenities. Do not miss your chance to own this home filled with character, comfort and charm in a truly exceptional location. (id:27476)

Property Highlights

MLS® Number
X12798986
Type
Single Family
Community Name
Delta
Ownership Type
Freehold
Land Size
30 x 100 FT|1/2 - 1.99 acres
Parking Space Total
3

Building

Building Type
House
Storeys
1.50
Square Footage
1100 - 1500 sqft
Bathrooms Total
2
Bedrooms Above Ground
2
Bedrooms Total
2
Amenities
Fireplace(s)
Exterior Finish
Brick
Fireplace Present
Yes
Basement Type
Full (Partially finished)
Basement Features
Building Heating Type
Forced air
Heating Fuel
Natural gas
Building Cooling Type
Central air conditioning

Utilities

Water
Municipal water
Utility Sewer
Sanitary sewer

Room Layout

Primary Bedroom
Second level
3.6 m x 6 m
Bedroom 2
Second level
3.6 m x 3.1 m
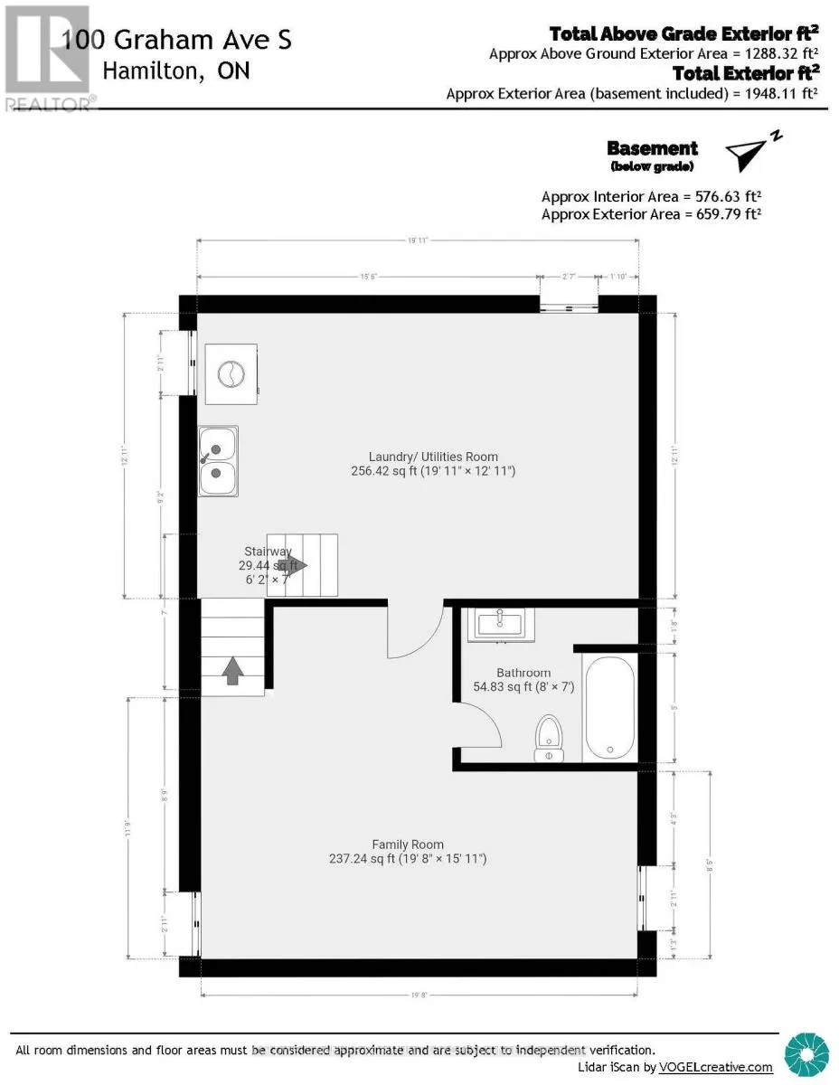
Family room
Basement
6 m x 4.9 m
Bathroom
Basement
2.4 m x 2.1 m
Living room
Main level
3.1 m x 3.9 m
Dining room
Main level
2.9 m x 3.9 m
Bathroom
Main level
1.7 m x 1.9 m
Kitchen
Main level
6.1 m x 3 m
Mud room
Main level
2.7 m x 2.4 m

Location

Learn more about this property
Listing provided by:
COLDWELL BANKER COMMUNITY PROFESSIONALS
MLS® number:
X12798986
Agent:
Lisa Jackson Blunt
*Indicates required field
Name is required
Email is required
Please enter a valid phone number (e.g., 416-111-1111).