940-946 Beach Boulevard, Hamilton, Ontario L8H 6Z4

Listed for:
$1,345,000
0 beds
0 baths
Listed Today
940-946 Beach Boulevard, Hamilton, Ontario L8H 6Z4

View all 6 photos

About

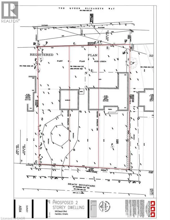
Eastport Dr to Beach Blvd Investors & Builders, 3 detached home building lots 40' X 166' on Beach Blvd. (id:27476)

Property Highlights

MLS® Number
40806636
Type
Vacant Land
Ownership Type
Freehold
Land Size
0.466 ac|under 1/2 acre

Building

Amenities
Beach, Public Transit
Fireplace Present
No
Basement Type
None
Basement Features
Building Heating Type
Heating Fuel
Building Cooling Type

Utilities

Water
Municipal water
Utility Sewer
Municipal sewage system

Location

Learn more about this property
Listing provided by:
RE/MAX Escarpment Realty Inc.
MLS® number:
40806636
Agent:
Chris Maynard
*Indicates required field
Name is required
Email is required
Please enter a valid phone number (e.g., 416-111-1111).

Street Spotlight - For sale