66 King Street W, Hamilton, Ontario L9H 1T8

Listed for:
$9,000
0 beds
3 baths
Listed 26 days ago
66 King Street W, Hamilton, Ontario L9H 1T8

View all 41 photos

About

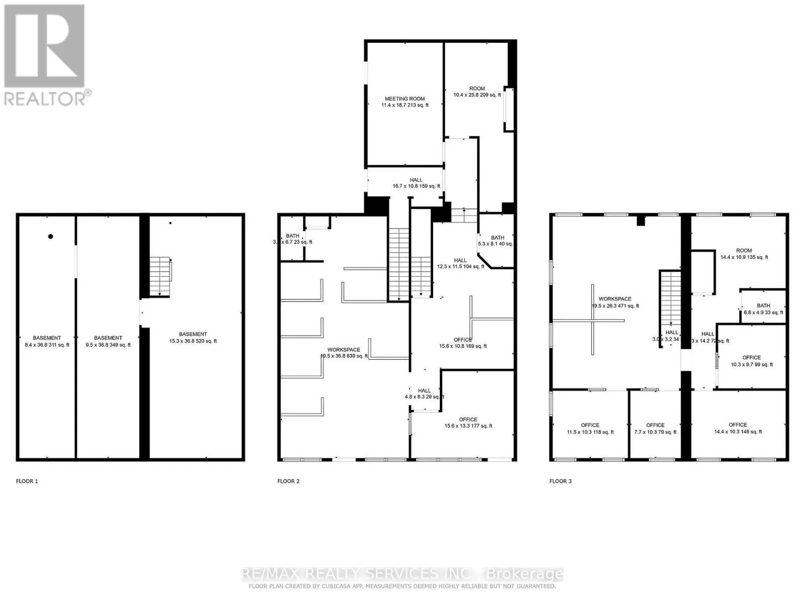
King St W & Sydenham St Incredible opportunity to lease a versatile and highly visible commercial space in the heart of downtown Dundas at 66 King St W. This well-maintained building features two storefront entrances and a functional layout ideal for a variety of business & retail uses. The left side has an open layout with a washroom at the rear. The right side offers a large street-facing office, access to the basement, washroom, full kitchen, boardroom, and access to the upstairs and rear exits. Upstairs features four private offices and an additional washroom. Building can be divided into up to 3 separate units. Located in a high-traffic area surrounded by shops, restaurants, and amenities, with nearby parking and public transit access. TMI included in the monthly rent. (id:27476)

Property Highlights

MLS® Number
X12856864
Type
Retail
Community Name
Dundas
Land Size
Bldg=36.5 x 64.3 FT
Parking Space Total
3

Building

Square Footage
4000 sqft
Bathrooms Total
3
Amenities
Public Transit, Recreation
Fireplace Present
No
Basement Type
Basement Features
Building Heating Type
Forced air
Heating Fuel
Natural gas
Building Cooling Type
Fully air conditioned

Utilities

Water
Municipal water

Location

Learn more about this property
Listing provided by:
RE/MAX REALTY SERVICES INC.
MLS® number:
X12856864
Agent:
Marissa Kerr
*Indicates required field
Name is required
Email is required
Please enter a valid phone number (e.g., 416-111-1111).

Street Spotlight - For lease