2147 King Street E, Hamilton, Ontario L8K 1W5

Listed for:
$59,000
0 beds
1 baths
Listed 69 days ago
2147 King Street E, Hamilton, Ontario L8K 1W5

View all 28 photos

About

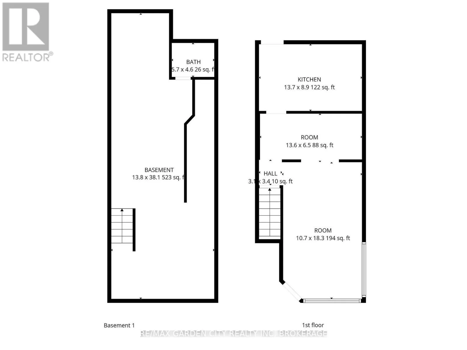
King St E & Rosewood Rd Prime East Hamilton commercial turn key restaurant setup. C2 zoning suitable for take out, bakery, variety/convenience store, etc. Approx 500 square feet ground level plus a full basement. High exposure & pedestrian foot traffic. All existing fixtures & chattels included. 1 washroom in the basement. (id:27476)

Property Highlights

MLS® Number
X12860798
Type
Business
Community Name
Glenview
Land Size
49 x 100.16 FT

Building

Square Footage
491 sqft
Bathrooms Total
1
Fireplace Present
No
Basement Type
Basement Features
Building Heating Type
Forced air, Other
Heating Fuel
Natural gas
Building Cooling Type
Fully air conditioned

Utilities

Water
Municipal water

Location

Learn more about this property
Listing provided by:
RE/MAX GARDEN CITY REALTY INC, BROKERAGE
MLS® number:
X12860798
Agent:
Jason Serroul
*Indicates required field
Name is required
Email is required
Please enter a valid phone number (e.g., 416-111-1111).

Street Spotlight - For sale