68 Harold Court, Hamilton, Ontario L8S 2R9

Listed for:
$750,000
10 beds
3 baths
Listed 23 days ago
House for rent: 68 Harold Court, Hamilton, Ontario L8S 2R9

View all 44 photos

About

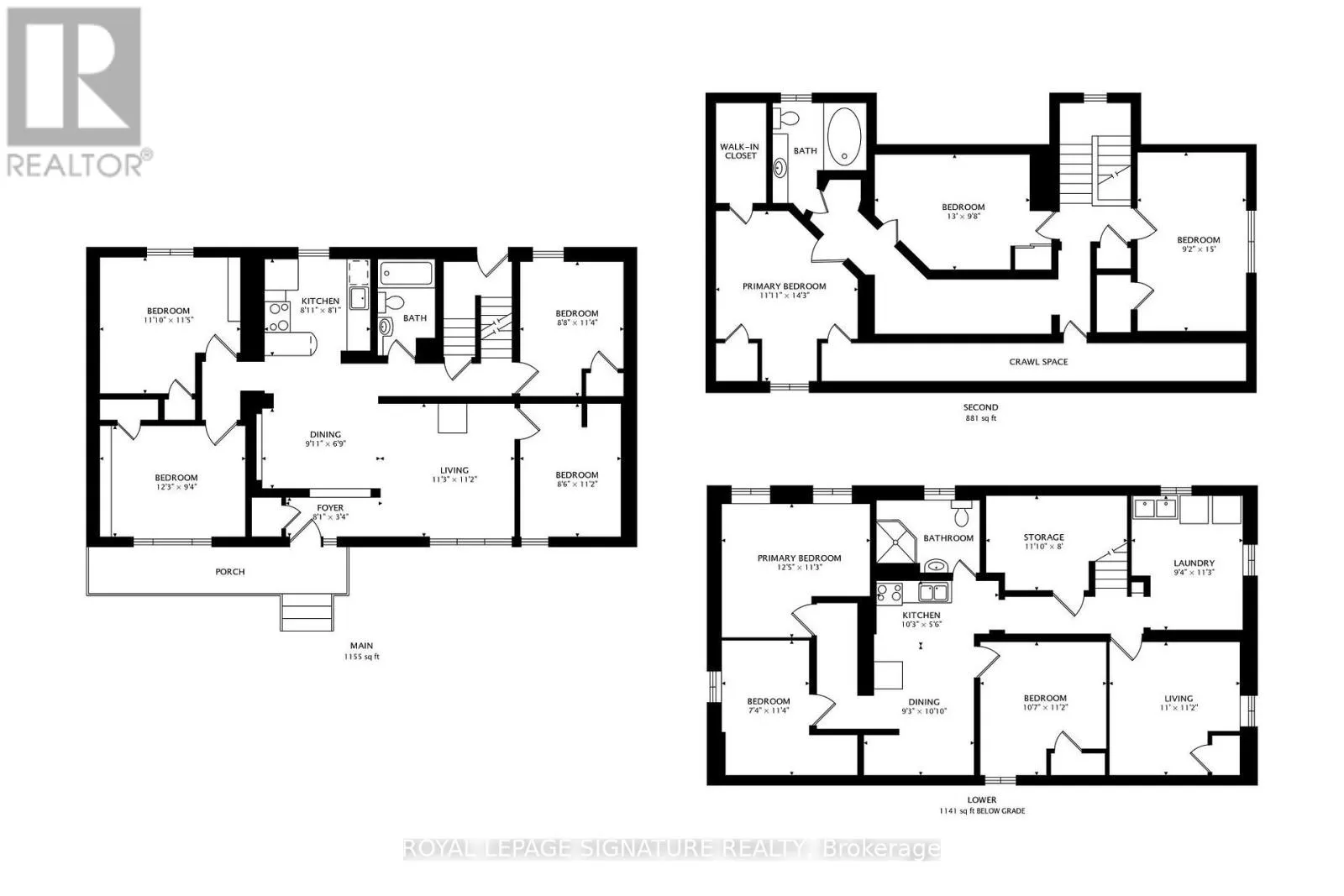
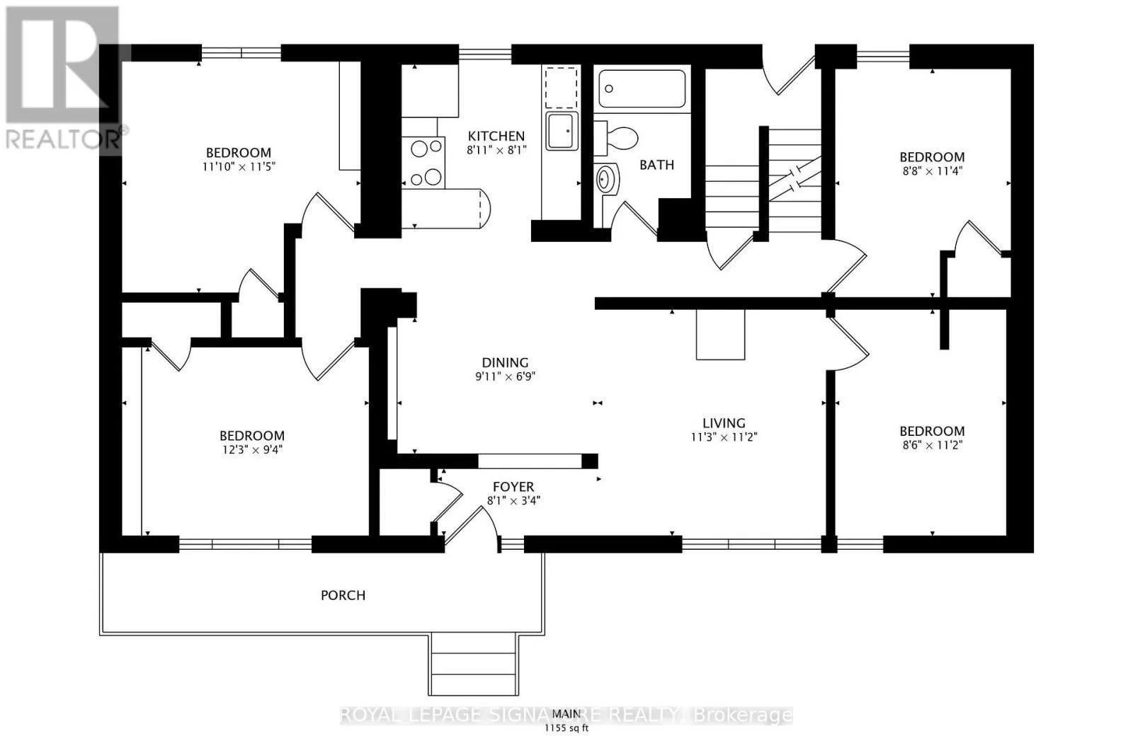
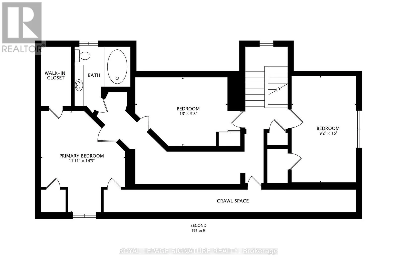
Whitney And Lower Horning Exceptional Opportunity - Spacious Family Home or Prime Investment!This versatile property truly has it all! Nestled on a quiet court in a desirable neighbourhoodand backing onto peaceful green space, this home features hardwood floors and a flexible layoutacross three levels. With 11 bedrooms, 3 full bathrooms, and 2 kitchens, it's perfect as alarge family residence or an outstanding investment property near McMaster University. (id:27476)

Property Highlights

MLS® Number
X12868680
Type
Single Family
Community Name
Ainslie Wood
Ownership Type
Freehold
Land Size
38 x 109.5 FT
Parking Space Total
4

Building

Building Type
House
Storeys
2.00
Square Footage
2000 - 2500 sqft
Bathrooms Total
3
Bedrooms Above Ground
7
Bedrooms Total
10
Amenities
Park, Public Transit, Schools
Exterior Finish
Brick
Fireplace Present
No
Basement Type
N/A (Finished)
Basement Features
Building Heating Type
Coil Fan, Forced air, Not known
Heating Fuel
Natural gas
Building Cooling Type
Central air conditioning

Utilities

Water
Municipal water
Utility Sewer
Sanitary sewer

Room Layout

Bedroom 3
Second level
3.63 m x 3.53 m
Bedroom 4
Second level
3.48 m x 2.69 m
Bedroom
Second level
4.55 m x 2.82 m
Bedroom
Second level
3.96 m x 3.02 m
Bedroom
Second level
4.39 m x 3.76 m
Bedroom
Basement
3.33 m x 2.34 m
Bedroom
Basement
3.45 m x 3.23 m
Bedroom
Basement
3.58 m x 2.58 m
Primary Bedroom
Main level
3.73 m x 2.77 m
Bedroom 2
Main level
3.48 m x 2.64 m
Kitchen
Main level
3.45 m x 2.72 m

Location

Learn more about this property
Listing provided by:
ROYAL LEPAGE SIGNATURE REALTY
MLS® number:
X12868680
Agent:
Thomas Delespierre
*Indicates required field
Name is required
Email is required
Please enter a valid phone number (e.g., 416-111-1111).