11 - 223 Macnab Street S, Hamilton, Ontario L8P 3C9

Listed for:
$239,000
2 beds
1 baths
Listed 17 days ago
Apartment for rent: 11 - 223 Macnab Street S, Hamilton, Ontario L8P 3C9

View all 17 photos

About

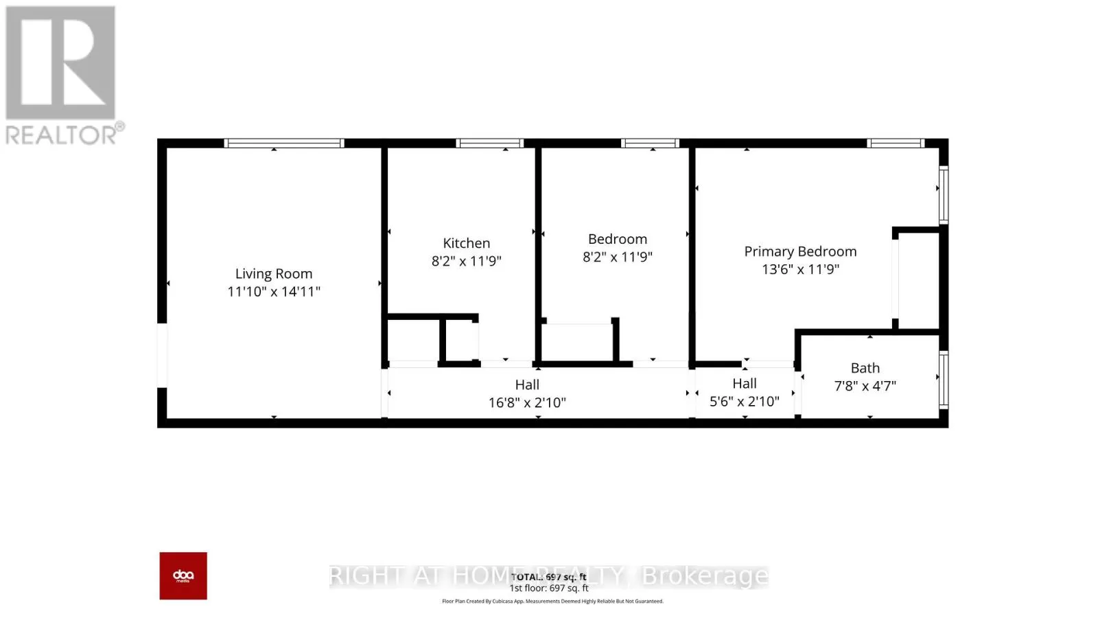
MacNab St S & Charlton Ave W Charming, spacious and affordable two-bedroom co-op in the heart of downtown. An abundance of natural light fills this lower-level unit, with large windows throughout that enhance the space and give it the feel of a main-floor apartment. The spacious floor plan features updates such as new vinyl flooring and a modern kitchen equipped with upgraded cupboards for ample storage, a stylish backsplash, updated countertops, stainless steel appliances, and a large pantry. The bathroom has also been updated, and fresh paint brightens the kitchen, bathroom, and hallway. The primary bedroom easily fits a king-size bed, while the second bedroom is versatile enough to serve as a home office or to accommodate a queen-size bed. Co-op fees include municipal property taxes, building insurance, exterior maintenance, roof, water, heat, locker, buzzer box usage, and laundry. Situated just steps from St Joseph's Hospital, the GO Station, transit, schools, restaurants, and shopping, this home is perfectly placed for urban living. Please note that the purchase requires cash, private, or credit union funding, approval by the Board of Directors, owner occupancy only, and rentals are not permitted. While there is no owned parking spot, parking can be applied for at $20 per month. Must be 16+ years of age to own and live in this building. Pets are allowed but are restricted to one small dog or two cats. Don't miss your opportunity to become part of this vibrant community! (id:27476)

Property Highlights

MLS® Number
X12879898
Type
Single Family
Community Name
Durand
Maintenance Fee
575.00
Ownership Type
Shares in Co-operative

Building

Building Type
Apartment
Square Footage
600 - 699 sqft
Bathrooms Total
1
Bedrooms Above Ground
2
Bedrooms Total
2
Amenities
Storage - Locker Park, Place of Worship, Schools, Hospital
Exterior Finish
Brick
Fireplace Present
No
Basement Type
None
Basement Features
Building Heating Type
Radiant heat
Heating Fuel
Natural gas
Building Cooling Type
None

Location

Learn more about this property
Listing provided by:
RIGHT AT HOME REALTY, BROKERAGE
MLS® number:
X12879898
Agent:
Wendy Eveleigh
*Indicates required field
Name is required
Email is required
Please enter a valid phone number (e.g., 416-111-1111).

Street Spotlight - For sale