1966 Main Street W Unit# 1109, Hamilton, Ontario L8S 1J6

Listed for:
$364,900
3 beds
2 baths
Listed 13 days ago
Apartment for rent: 1966 Main Street W Unit# 1109, Hamilton, Ontario L8S 1J6

View all 35 photos

About

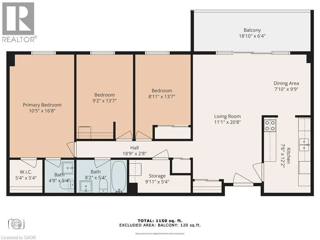
Osler Drive to Main Street West or Wilson Street East to Main Street West Special Assessments have been paid Spacious 3-Bedroom, 2 bath Condo with Escarpment & Park Views in Sought-After West Hamilton Welcome to this bright and Spacious 3-bedroom condo offering beautiful park and escarpment views in desirable West Hamilton. The open-concept living and dining area walks out to a large private balcony-perfect for relaxing or entertaining while enjoying the scenic surroundings. The recently updated kitchen is bright and functional, complemented by a separate dining area ideal for family meals or hosting guests. The generous primary suite features a walk-in closet and private 2-piece ensuite. Two additional bedrooms and an updated 4-piece bathroom provide comfortable space for family, guests, or a home office. Residents enjoy a wide range of recently upgraded building amenities, including a fully equipped gym, heated indoor pool, and sauna, along with a party/games room for gatherings. The unit also includes underground parking and a spacious storage locker for added convenience. Ideally located close to McMaster University, daycare walking distance, major hospitals, highways, shopping, scenic hiking trails, waterfalls, and the Dundas Valley Conservation Area, this condo offers the perfect balance of comfort, convenience, and natural beauty. New Fridge & 5 new chandeliers Status Certificate is available (id:27476)

Property Highlights

MLS® Number
40813187
Type
Single Family
Maintenance Fee
929.27
Ownership Type
Condominium
Land Size
Unknown
Parking Space Total
1

Building

Building Type
Apartment
Storeys
1.00
Square Footage
1150 sqft
Bathrooms Total
2
Bedrooms Above Ground
3
Bedrooms Total
3
Amenities
Exercise Centre, Guest Suite, Party Room Hospital
Exterior Finish
Brick
Fireplace Present
No
Basement Type
None
Basement Features
Building Heating Type
Baseboard heaters, Hot water radiator heat
Heating Fuel
Building Cooling Type
Window air conditioner

Utilities

Water
Municipal water
Utility Sewer
Municipal sewage system

Room Layout

2pc Bathroom
Main level
Measurements not available
4pc Bathroom
Main level
Measurements not available
Living room
Main level
11'1'' x 20'8''
Kitchen
Main level
7'6'' x 12'2''
Dining room
Main level
7'10'' x 9'9''
Primary Bedroom
Main level
10'5'' x 16'8''
Bedroom
Main level
9'2'' x 13'7''
Bedroom
Main level
8'11'' x 13'7''
Storage
Main level
9'11'' x 5'4''

Location

Learn more about this property
Listing provided by:
Royal LePage State Realty Inc.
MLS® number:
40813187
Agent:
Dina Urciuoli
*Indicates required field
Name is required
Email is required
Please enter a valid phone number (e.g., 416-111-1111).

Street Spotlight - For sale