1124 Dunsmure Road, Hamilton, Ontario L8H 1K5

Listed for:
$399,000
3 beds
2 baths
Listed 13 days ago
House for rent: 1124 Dunsmure Road, Hamilton, Ontario L8H 1K5

View all 43 photos

About

Cross Streets: Parkdale Rd N & Dunsmure. ** Directions: Parkdale Rd N to Dunsmure. Welcome to this beautifully maintained open-concept bungalow offering comfort, space, and versatility. Featuring 2 bedrooms and 1.5 bathrooms, this bright and inviting home sits on a large lot with plenty of outdoor space to enjoy. The carpet-free main floor showcases a spacious eat-in kitchen and seamless open-concept layout-perfect for both everyday living and entertaining. Just off the kitchen, a charming sunroom provides the ideal space for a reading nook, home office, or kids' playroom. Unwind in the whirlpool bathtub, adding a touch of comfort to your daily routine. The fully finished basement extends your living space with a generous rec room and an additional bedroom-perfect for guests, hobbies, or growing needs. Step outside to a large deck, a fully usable yard, and a shed/workshop for extra storage or projects. Complete with a 1.5-car garage and double driveway offering ample parking. Ideal for first-time buyers, downsizers, or anyone looking for a move-in ready home with flexible living space in a welcoming setting. (id:27476)

Property Highlights

MLS® Number
X12901298
Type
Single Family
Community Name
Normanhurst
Ownership Type
Freehold
Land Size
106 x 40 FT
Parking Space Total
3

Building

Building Type
House
Storeys
1.00
Square Footage
700 - 1100 sqft
Bathrooms Total
2
Bedrooms Above Ground
2
Bedrooms Total
3
Amenities
Public Transit
Exterior Finish
Vinyl siding, Concrete
Fireplace Present
No
Basement Type
Full (Finished)
Basement Features
Building Heating Type
Forced air
Heating Fuel
Natural gas
Building Cooling Type
Central air conditioning

Utilities

Water
Municipal water
Utility Sewer
Sanitary sewer

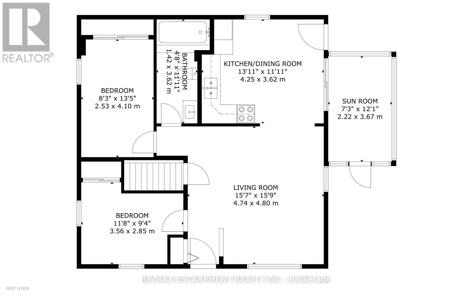
Room Layout

Recreational, Games room
Basement
8.02 m x 3.38 m
Bedroom 3
Basement
2.33 m x 3.38 m
Utility room
Basement
5.59 m x 3.38 m
Living room
Main level
4.74 m x 4.8 m
Kitchen
Main level
4.25 m x 3.62 m
Primary Bedroom
Main level
4.1 m x 2.53 m
Bedroom 2
Main level
3.56 m x 2.85 m
Sunroom
Main level
3.67 m x 2.22 m

Location

Learn more about this property
Listing provided by:
RE/MAX ESCARPMENT REALTY INC.
MLS® number:
X12901298
Agent:
Jenny Lefkas
*Indicates required field
Name is required
Email is required
Please enter a valid phone number (e.g., 416-111-1111).