57 New Street, Hamilton, Ontario L8P 4J7

Listed for:
$779,900
3 beds
2 baths
Listed 54 days ago
House for rent: 57 New Street, Hamilton, Ontario L8P 4J7

View all 49 photos

About

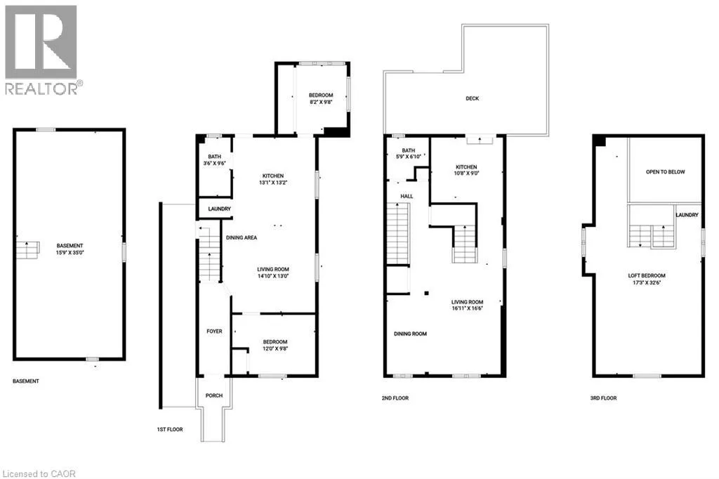
1 BLOCK EAST OF DUNDURN, NEAR MAIN ST. WEST. Two family home set up with separate entrances and separate hydro, offering flexibility for investors or buyers looking to live in one unit and use the other for extended family or income potential. Main floor unit is currently rented and features 2 bedrooms, open-concept kitchen with eating area and living room, 3-piece bathroom, and in-unit laundry. 9.5 ft ceilings and tall windows add to the sense of space, and the kitchen offers a walkout to the backyard deck. Upper unit spans the second and third floors with open-concept kitchen, dining, and living area. The 2nd floor kitchen features exposed wood beams and walks out to a generous deck with fire escape. Third-floor loft features a spacious primary bedroom with vaulted ceiling, exposed beams, heat pump for heating and cooling, and laundry. Updated flooring, freshly painted, and tasteful lighting fixtures throughout. Furnace and water heater approximately 4 years old. Unfinished basement. Double detached garage off alley plus 2-car interlocking driveway at the front. Ample green space in fully fenced backyard. Located in West Hamilton on a family-friendly street, just minutes to Locke Street shops, restaurants, and cafés, Dundurn Castle, the waterfront, and McMaster University, with convenient access to transit and major routes. (id:27476)

Property Highlights

MLS® Number
40814189
Type
Single Family
Ownership Type
Freehold
Land Size
0.06 ac|under 1/2 acre
Parking Space Total
4

Building

Building Type
House
Storeys
2.50
Square Footage
1795 sqft
Bathrooms Total
2
Bedrooms Above Ground
3
Bedrooms Total
3
Amenities
Hospital, Place of Worship, Playground, Public Transit, Schools, Shopping
Exterior Finish
Brick, Stucco
Fireplace Present
No
Basement Type
Full (Unfinished)
Basement Features
Building Heating Type
Forced air, Heat Pump
Heating Fuel
Natural gas
Building Cooling Type

Utilities

Water
Municipal water
Utility Sewer
Municipal sewage system

Room Layout

4pc Bathroom
Second level
Measurements not available
Living room/Dining room
Second level
16'11'' x 16'6''
Kitchen
Second level
10'9'' x 10'6''
Primary Bedroom
Third level
27'3'' x 17'2''
Laundry room
Third level
Measurements not available
Laundry room
Main level
Measurements not available
3pc Bathroom
Main level
Measurements not available
Bedroom
Main level
9'8'' x 8'4''
Bedroom
Main level
9'10'' x 12'0''
Kitchen
Main level
13'1'' x 13'2''
Living room
Main level
10'10'' x 13'0''

Location

Learn more about this property
Listing provided by:
Sutton Group Innovative Realty Inc.
MLS® number:
40814189
Agent:
Laura Doucette
*Indicates required field
Name is required
Email is required
Please enter a valid phone number (e.g., 416-111-1111).