8 Matteo Trail, Hamilton, Ontario L9B 0E8

Listed for:
$968,000
4 beds
4 baths
Listed 6 days ago
House for rent: 8 Matteo Trail, Hamilton, Ontario L9B 0E8

View all 33 photos

About

Cross Streets: Garth & Rymal. ** Directions: Rymal to Hazelton to Alessio to Matteo. Step into the welcoming embrace of this pristine Spallacci masterpiece, where executive living meets undeniable charm in a highly coveted West Mountain setting. Every detail of this home has been thoughtfully curated, promising a truly effortless, turn-key transition. At the heart of it all, the gourmet, eat-in kitchen awaits, a vision of elegance with rich granite countertops, a delicate marble backsplash, refined cabinetry, a gas stove, and top-tier stainless steel appliances-a perfect space for morning coffee or hosting cherished gatherings. Throughout the main levels, the home delights the senses with the warmth of gleaming hardwood flooring, leading the eye to a graceful staircase, while sophisticated porcelain and ceramic tilework adds a touch of enduring quality. Downstairs, the professionally finished basement offers a sophisticated retreat for leisure and comfort. Outside, your private oasis beckons: a beautiful, maintenance-free yard featuring a sparkling saltwater heated pool(2022), perfect for luxurious summer relaxation. Perfectly situated near excellent schools, amenities, and highway links, this upgraded home is not just a residence; it is a rare opportunity to acquire a space where beauty, quality, and convenience reside in perfect harmony. (id:27476)

Property Highlights

MLS® Number
X12925550
Type
Single Family
Community Name
Sheldon
Ownership Type
Freehold
Land Size
32 x 107.2 FT
Parking Space Total
4

Building

Building Type
House
Storeys
2.00
Square Footage
1500 - 2000 sqft
Bathrooms Total
4
Bedrooms Above Ground
4
Bedrooms Total
4
Amenities
Fireplace(s) Park, Public Transit
Exterior Finish
Brick, Stone
Fireplace Present
Yes
Basement Type
Full (Finished)
Basement Features
Building Heating Type
Forced air
Heating Fuel
Natural gas
Building Cooling Type
Central air conditioning

Utilities

Water
Municipal water
Utility Sewer
Sanitary sewer

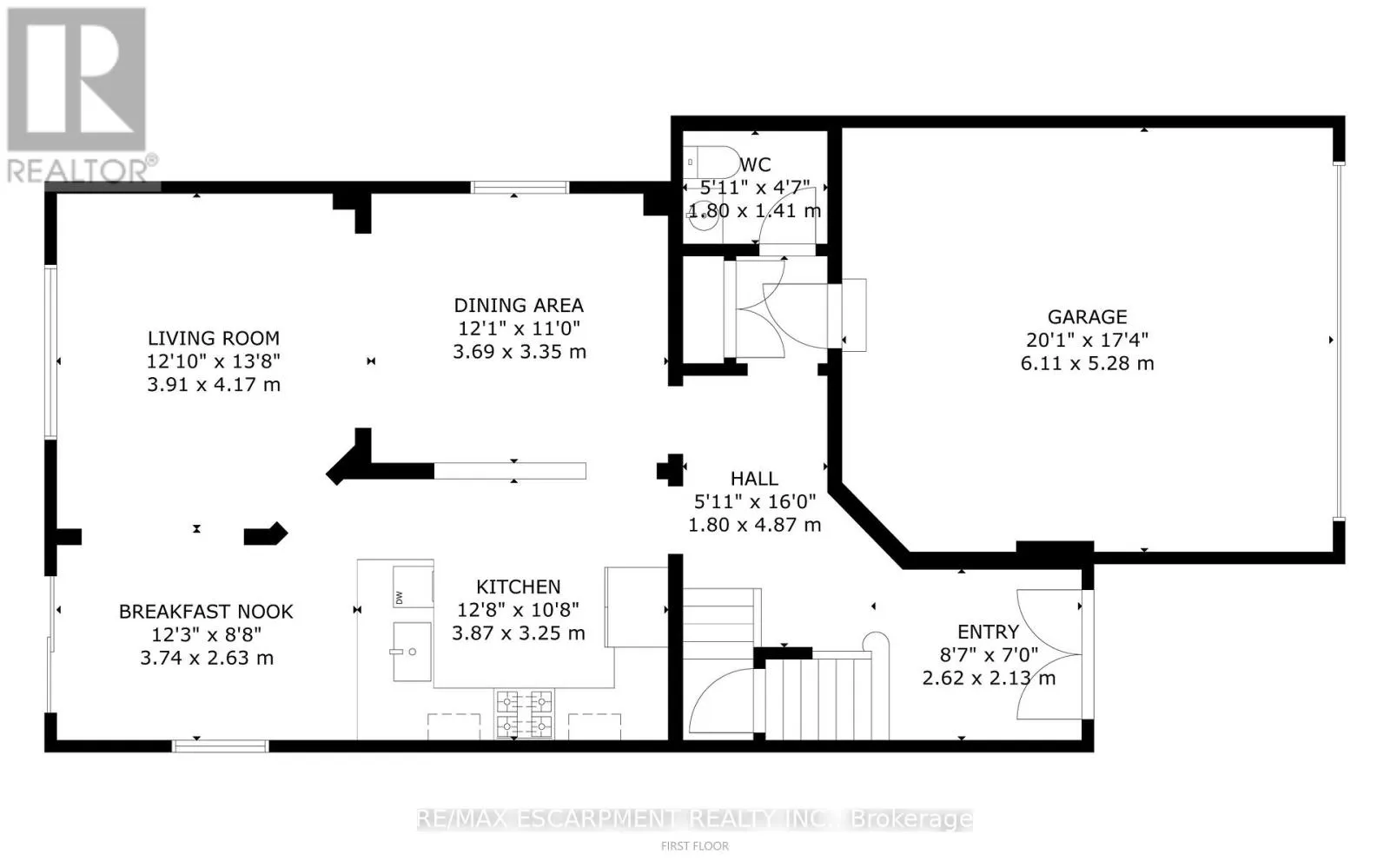
Room Layout

Bedroom
Second level
3.68 m x 3.53 m
Bathroom
Second level
2.49 m x 2.39 m
Primary Bedroom
Second level
3.84 m x 4.65 m
Bathroom
Second level
3.38 m x 2.01 m
Bedroom
Second level
2.87 m x 3.07 m
Bedroom
Second level
3.96 m x 3.12 m
Recreational, Games room
Basement
7.42 m x 6.58 m
Laundry room
Basement
1.65 m x 3.48 m
Bathroom
Basement
2.62 m x 1.7 m
Living room
Main level
3.91 m x 4.17 m
Dining room
Main level
3.68 m x 3.35 m
Eating area
Main level
3.73 m x 2.64 m
Kitchen
Main level
3.86 m x 3.25 m
Bathroom
Main level
1.8 m x 1.4 m
Foyer
Main level
2.62 m x 2.13 m

Location

Learn more about this property
Listing provided by:
RE/MAX ESCARPMENT REALTY INC.
MLS® number:
X12925550
Agent:
Devon Macarthur
*Indicates required field
Name is required
Email is required
Please enter a valid phone number (e.g., 416-111-1111).