Basement - 36 Victor Boulevard, Hamilton, Ontario L9A 2V4

Listed for:
$1,650
2 beds
2 baths
Listed 6 days ago
House for rent: Basement - 36 Victor Boulevard, Hamilton, Ontario L9A 2V4

View all 17 photos

About

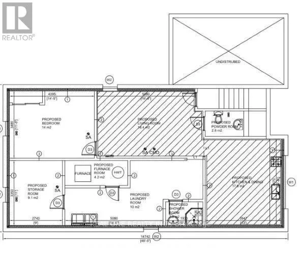
Cross Streets: Upper James And Hester. ** Directions: Ridge St to Victor St. Legal basement apartment (~1,200 sq ft) featuring in-suite laundry and two parking spots. Renovated throughout with a bright living room offering two large windows and durable, scratch-resistant flooring. Spacious, sun-filled eat-in kitchen with stove,fridge and dishwasher and pantry. 1.5 bathrooms includes a modern powder room and a separate 2-piece bathroom with glass shower. Well-designed layout for comfortable living. Conveniently located close to transit, highway, Mohawk College, and nearby hospitals. Non-smoking and no loud parties. Tenant is responsible for snow removal of their own parking spots and will share responsibility for lawn care and sidewalk snow removal. Shared Shed and Yard. Tenant pays 40% of monthly utilities including hydro,water,gas and hot water tank rental. ***Available for possession June 1st*** (id:27476)

Property Highlights

MLS® Number
X12927200
Type
Single Family
Community Name
Greeningdon
Ownership Type
Freehold
Land Size
46 x 95 FT
Parking Space Total
2

Building

Building Type
House
Storeys
1.00
Square Footage
1100 - 1500 sqft
Bathrooms Total
2
Bedrooms Above Ground
2
Bedrooms Total
2
Exterior Finish
Brick
Fireplace Present
No
Basement Type
N/A (Finished)
Basement Features
Building Heating Type
Forced air
Heating Fuel
Natural gas
Building Cooling Type
Central air conditioning

Utilities

Water
Municipal water
Utility Sewer
Sanitary sewer

Room Layout

Living room
Basement
6.1 m x 3.2 m
Kitchen
Basement
4.6 m x 3.8 m
Primary Bedroom
Basement
3 m x 3.1 m
Bedroom 2
Basement
3.2 m x 2.8 m
Bathroom
Basement
2.25 m x 1.25 m
Bathroom
Basement
1.9 m x 1.7 m
Laundry room
Basement
3.7 m x 2.7 m

Location

Learn more about this property
Listing provided by:
REAL ONE REALTY INC.
MLS® number:
X12927200
Agent:
Cherry Yang
*Indicates required field
Name is required
Email is required
Please enter a valid phone number (e.g., 416-111-1111).

Community Spotlight: Homes For rent in Your Neighborhood