32 Perthshire Court, Hamilton, Ontario L9B 2H1

Listed for:
$698,800
3 beds
3 baths
Listed 2 days ago
Row / Townhouse for rent: 32 Perthshire Court, Hamilton, Ontario L9B 2H1

View all 49 photos

About

Cross Streets: Upper Wellington & Brigade. ** Directions: Brigade & Perthshire. RARE FIND!! Meticulously maintained end-unit freehold townhome, boasting over 2290 sq ft of interior space, situated on an oversized lot with parking for up to 5 vehicles. Welcome to 32 Perthshire. This beautifully updated 3-bedroom, 2.5-bathroom home is ideally located just steps to schools, parks, and offers quick access to the LINC, 403, and all amenities. The spacious main level features a stunning, updated kitchen with ample cabinetry, generous counter space, and a convenient pantry. The kitchen seamlessly flows into a bright and inviting dining area, complete with a skylight and bay window overlooking the beautifully landscaped backyard. The living room offers gleaming hardwood floors and a cozy fireplace, perfect for relaxing or entertaining. A powder room and main floor laundry add everyday convenience. Upstairs, the impressive primary suite boasts a walk-in closet and a luxurious, spa-inspired ensuite with a corner soaker tub and separate shower. Two additional generously sized bedrooms and a full 4-piece bathroom complete the second level. The fully finished basement offers a large recreation room (ideal for movie nights or hosting) along with a den and plenty of storage space. Step outside to your private, fully fenced backyard oasis featuring a covered porch, expansive custom wraparound deck, gazebo, and gorgeous landscaping. Additional features include a garage with inside entry, direct gas BBQ hook up, UV amplified air cleaner, and numerous updates over the years, including the kitchen, flooring, fireplace, deck, furnace, A/C, and roof to name a few (full list available upon request). Move in ready, just unpack and enjoy! (id:27476)

Property Highlights

MLS® Number
X12933926
Type
Single Family
Community Name
Barnstown
Ownership Type
Freehold
Land Size
28.2 x 105 FT
Parking Space Total
5

Building

Building Type
Row / Townhouse
Storeys
2.00
Square Footage
1500 - 2000 sqft
Bathrooms Total
3
Bedrooms Above Ground
3
Bedrooms Total
3
Amenities
Fireplace(s) Schools, Public Transit
Exterior Finish
Brick
Fireplace Present
Yes
Basement Type
Full (Finished)
Basement Features
Building Heating Type
Forced air
Heating Fuel
Natural gas
Building Cooling Type
Central air conditioning

Utilities

Water
Municipal water
Utility Sewer
Sanitary sewer

Room Layout

Bathroom
Second level
1.93 m x 3.1 m
Primary Bedroom
Second level
4.57 m x 3.1 m
Bathroom
Second level
3.2 m x 2.59 m
Bedroom 2
Second level
4.09 m x 2.9 m
Bedroom 3
Second level
4.09 m x 2.79 m
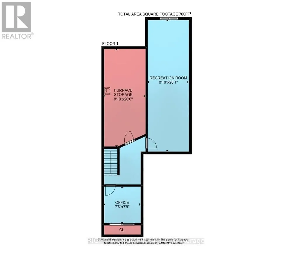
Recreational, Games room
Basement
8.56 m x 2.69 m
Den
Basement
2.36 m x 2.29 m
Utility room
Basement
5.74 m x 2.29 m
Foyer
Main level
5.11 m x 1.52 m
Living room
Main level
5.23 m x 3.23 m
Kitchen
Main level
3.05 m x 2.46 m
Dining room
Main level
3.78 m x 3 m
Bathroom
Main level
2.06 m x 1.04 m
Laundry room
Main level
1.93 m x 0.74 m

Location

Learn more about this property
Listing provided by:
RIGHT AT HOME REALTY
MLS® number:
X12933926
Agent:
Sheri Sullivan
*Indicates required field
Name is required
Email is required
Please enter a valid phone number (e.g., 416-111-1111).