208 - 836 Concession Street, Hamilton, Ontario L8V 1E2

Listed for:
$349,777
1 beds
1 baths
Listed 22 days ago
Apartment for rent: 208 - 836 Concession Street, Hamilton, Ontario L8V 1E2

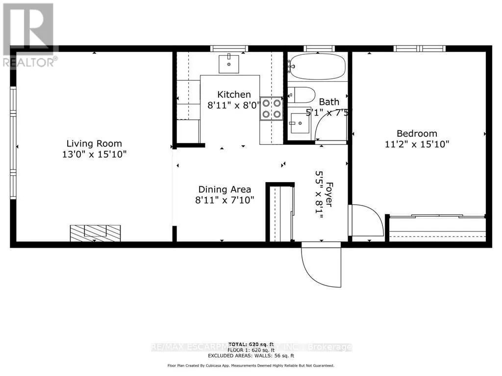
View all 35 photos

About

Cross Streets: Concession St. ** Directions: Between East 34th and East 35th. This beautifully updated 1-bedroom, 1-bathroom condo offers the perfect blend of comfort, convenience, and affordability. Featuring approximately 620sqft of well-designed living space, this bright and inviting unit showcases modern finishes throughout, including updated flooring, a refreshed bathroom, and a contemporary kitchen complete with newer appliances - all thoughtfully updated in recent years. The open-concept layout provides a functional flow between the living and dining areas, filled with natural light and ideal for both everyday living and entertaining. The spacious bedroom offers ample closet space, while large windows create a warm and welcoming atmosphere throughout the home. Enjoy the added convenience of one parking space and a storage locker, along with maintenance fees that include heat, water, building insurance, and common elements - offering excellent value and low-maintenance living. Perfectly situated in a highly walkable Hamilton Mountain location, this condo is just steps to shopping, restaurants, public transit, and nearby hospitals, with parks and green spaces only minutes away. Whether you're a first-time buyer, downsizer, or investor, this is an exceptional opportunity to own in a well-established building in a desirable neighbourhood. (id:27476)

Property Highlights

MLS® Number
X12960204
Type
Single Family
Community Name
Raleigh
Maintenance Fee
526.00
Ownership Type
Condominium/Strata
Parking Space Total
1

Building

Building Type
Apartment
Square Footage
600 - 699 sqft
Bathrooms Total
1
Bedrooms Above Ground
1
Bedrooms Total
1
Exterior Finish
Brick
Fireplace Present
No
Basement Type
None
Basement Features
Building Heating Type
Radiant heat
Heating Fuel
Natural gas
Building Cooling Type
Window air conditioner

Location

Learn more about this property
Listing provided by:
RE/MAX ESCARPMENT REALTY INC.
MLS® number:
X12960204
Agent:
Matthew Adeh
*Indicates required field
Name is required
Email is required
Please enter a valid phone number (e.g., 416-111-1111).

Street Spotlight - For sale