203 - 8 Main Street, Hamilton, Ontario L9H 1B8

Listed for:
$549,900
2 beds
2 baths
Listed 8 days ago
Apartment for rent: 203 - 8 Main Street, Hamilton, Ontario L9H 1B8

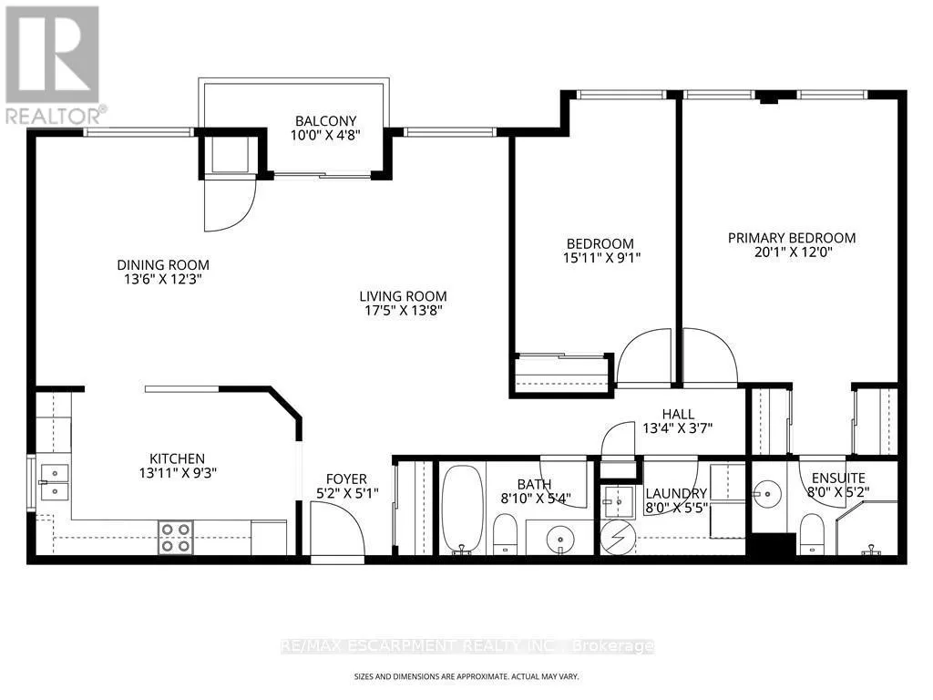
View all 40 photos

About

Cross Streets: King St E and Ogilvie. ** Directions: From King St E turn onto Main St. Tucked into the vibrant core of Dundas, Grafton Square Condominium offers an exceptional blend of boutique living and everyday convenience. This impeccably maintained, quiet 21-unit building is just steps from charming shops, cafés, restaurants, the Dundas Art Gallery, grocery store, and library-putting the best of the community right at your doorstep. This bright and inviting 1,174 sq. ft. corner suite is filled with natural light thanks to expansive windows throughout. Thoughtfully designed, it features 2 spacious bedrooms, 2 full bathrooms, in-suite laundry, and a private balcony for relaxed outdoor enjoyment. The open-concept living and dining areas create an ideal setting for both entertaining and comfortable day-to-day living, while the eat-in kitchen, complete with warm wood cabinetry, offers a welcoming space for casual meals. The generous primary bedroom includes its own ensuite with his and hers closets, complemented by a well-sized second bedroom perfect for guests or a home office. Residents also enjoy access to a party room, guest suite, exclusive storage locker, and underground parking with a convenient car wash bay. Just a short stroll away, Dundas Driving Park provides a beautiful natural escape-perfect for walking, unwinding, or enjoying a game of lawn bowling. This is a rare opportunity to experience low-maintenance living in one of Dundas' most sought-after locations. (id:27476)

Property Highlights

MLS® Number
X12984938
Type
Single Family
Community Name
Dundas
Maintenance Fee
895.00
Ownership Type
Condominium/Strata
Parking Space Total
1

Building

Building Type
Apartment
Square Footage
2500 - 2749 sqft
Bathrooms Total
2
Bedrooms Above Ground
2
Bedrooms Total
2
Amenities
Car Wash, Exercise Centre, Party Room, Storage - Locker Hospital, Park, Place of Worship, Public Transit, Schools
Exterior Finish
Brick
Fireplace Present
No
Basement Type
None
Basement Features
Building Heating Type
Forced air
Heating Fuel
Natural gas
Building Cooling Type
Central air conditioning

Location

Learn more about this property
Listing provided by:
RE/MAX ESCARPMENT REALTY INC.
MLS® number:
X12984938
Agent:
Sarit Zalter
*Indicates required field
Name is required
Email is required
Please enter a valid phone number (e.g., 416-111-1111).

Street Spotlight - For sale