225 Skinner Road S, Hamilton, Ontario L0R 2H1

Listed for:
$1,299,900
5 beds
4 baths
Listed 1 day ago
Row / Townhouse for rent: 225 Skinner Road S, Hamilton, Ontario L0R 2H1

View all 50 photos

About

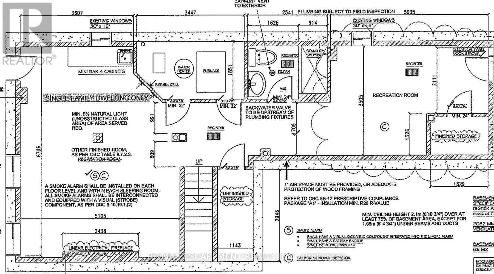
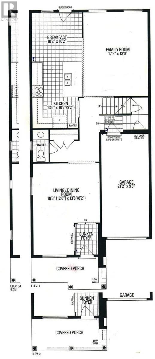
Cross Streets: Dundas St E. ** Directions: Dundas St E to Mallard Tr to Skinner Rd. Don't miss this exceptional opportunity to own a rare, end-unit townhome with over 3,200 square feet of total living space - larger than many detached homes! This all-brick beauty blends timeless curb appeal with modern comfort and functionality. The main level features a bright, open layout filled with natural light from the extra end-unit windows, complimented by elegant finishes throughout. The heart of the home is a generous kitchen with matching high-end KitchenAid appliances, including a gas stove, quartz countertops and pot lights. Upstairs, you'll find four spacious bedrooms, including a fantastic primary suite with a four-piece ensuite and walk-in closet. The kids will love the Jack and Jill bathroom, providing their own ensuite experience! This floor plan is ideal for growing families or hosting guests. Downstairs, the professionally finished walkout basement offers flexible space for a rec room, home gym, office or guest suite - complete with a full bath and bedroom for added convenience. Outside, you'll fall in love with the extensive landscaping that enhances both curb appeal and privacy. The end-unit location also provides extra green space and a peaceful setting rarely found in townhomes. Meticulously maintained and move-in ready, this home delivers the space of a detached property in the desirable community of Waterdown! RSA. (id:27476)

Property Highlights

MLS® Number
X13003756
Type
Single Family
Community Name
Waterdown
Ownership Type
Freehold
Land Size
30.1 x 91.9 FT|under 1/2 acre
Parking Space Total
2

Building

Building Type
Row / Townhouse
Storeys
2.00
Square Footage
2000 - 2500 sqft
Bathrooms Total
4
Bedrooms Above Ground
4
Bedrooms Total
5
Amenities
Fireplace(s) Park, Public Transit, Schools
Exterior Finish
Brick
Fireplace Present
Yes
Basement Type
N/A (Finished), Full, N/A
Basement Features
Walk out
Building Heating Type
Forced air
Heating Fuel
Natural gas
Building Cooling Type
Central air conditioning, Air exchanger

Utilities

Water
Municipal water
Utility Sewer
Sanitary sewer

Room Layout

Primary Bedroom
Second level
5.28 m x 4.47 m
Bedroom
Second level
3.4 m x 3.35 m
Bedroom
Second level
4.01 m x 3.4 m
Bedroom
Second level
3.1 m x 3.1 m
Bedroom
Basement
5.11 m x 6.71 m
Living room
Main level
5.69 m x 4.11 m
Kitchen
Main level
7.21 m x 3.1 m
Family room
Main level
5.23 m x 3.96 m

Location

Learn more about this property
Listing provided by:
RE/MAX ESCARPMENT REALTY INC.
MLS® number:
X13003756
Agent:
Drew Woolcott
*Indicates required field
Name is required
Email is required
Please enter a valid phone number (e.g., 416-111-1111).