729 18th Street, Hanover, Ontario N4N 0C7

Listed for:
$639,900
3 beds
3 baths
Listed 51 days ago
Row / Townhouse for rent: 729 18th Street, Hanover, Ontario N4N 0C7

View all 7 photos

About

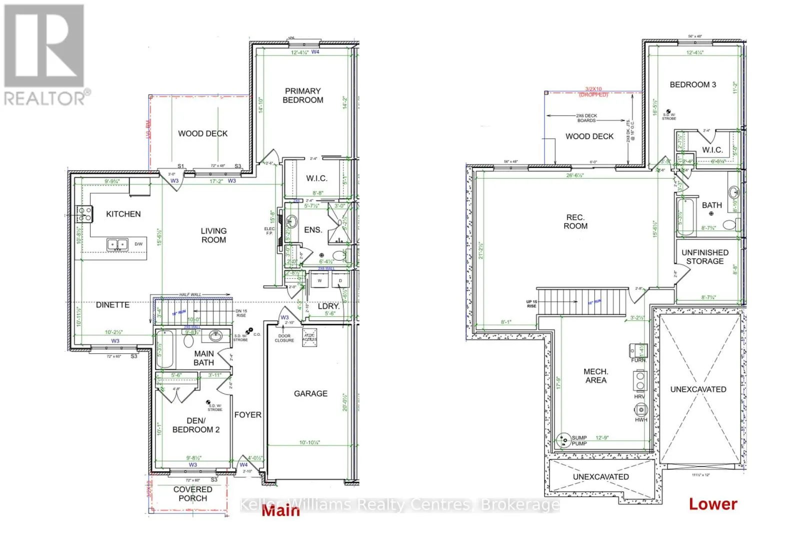
Cross Streets: 23rd Ave, 22nd Ave A. ** Directions: From Hanover, head North on 24th Ave, West on 19th Street, and follow around 23rd Avenue to 18th Street. This beautifully finished end unit townhome offers 1,306 sq. ft. on the main level, plus a fully finished walkout basement backing onto trees for added privacy. The main floor features 2 bedrooms, including a spacious primary suite with a walk-in closet and a stylish 3-piece ensuite with a tiled shower and soap niche. The living room offers an electric fireplace and a walkout to the covered deck with a privacy wall. You'll also find a 4-piece main bath, convenient laundry, and an attached 1-car garage. Downstairs, the walkout lower level includes a large rec room with a shiplap fireplace, a third bedroom with a walk-in closet, and another full 4-piece bathroom-perfect for guests or extended family. High-end finishes run throughout, including quartz countertops in the kitchen, laundry, and bathrooms. Enjoy the convenience of all appliances included, plus your hot water tank and softener. Outside, a sodded yard, upper and lower deck/patio, professionally landscaped garden, and paved driveway complete the package. Modern and surrounded by nature, with 7 year Tarion Warranty, this home checks all the boxes! (id:27476)

Property Highlights

MLS® Number
X12578998
Type
Single Family
Community Name
Hanover
Ownership Type
Freehold
Land Size
23.7 x 153.4 FT ; 182.86ft x 23.67 ft x 153.40 ftx86.55ft
Parking Space Total
2

Building

Building Type
Row / Townhouse
Storeys
1.00
Square Footage
1100 - 1500 sqft
Bathrooms Total
3
Bedrooms Above Ground
2
Bedrooms Total
3
Amenities
Fireplace(s) Hospital, Place of Worship, Schools
Exterior Finish
Stone
Fireplace Present
Yes
Basement Type
Full, N/A (Finished), N/A
Basement Features
Walk out
Building Heating Type
Forced air, Heat Pump, Not known
Heating Fuel
Electric, Natural gas
Building Cooling Type
Central air conditioning, Air exchanger

Utilities

Water
Municipal water
Utility Sewer
Sanitary sewer

Room Layout

Recreational, Games room
Basement
8.08 m x 6.43 m
Bedroom 3
Basement
3.76 m x 5 m
Utility room
Basement
3.89 m x 5.41 m
Other
Basement
2.64 m x 2.67 m
Living room
Main level
5.23 m x 4.72 m
Kitchen
Main level
3.1 m x 6.58 m
Bedroom
Main level
3.76 m x 4.29 m
Laundry room
Main level
1.68 m x 1.98 m
Bedroom 2
Main level
2.95 m x 3.07 m

Location

Learn more about this property
Listing provided by:
Keller Williams Realty Centres
MLS® number:
X12578998
Agent:
Tracey Kirstine
*Indicates required field
Name is required
Email is required
Please enter a valid phone number (e.g., 416-111-1111).