711 21st A Avenue, Hanover, Ontario N4N 3M2

Listed for:
$799,900
4 beds
3 baths
Listed 18 days ago
House for rent: 711 21st A Avenue, Hanover, Ontario N4N 3M2

View all 36 photos

About

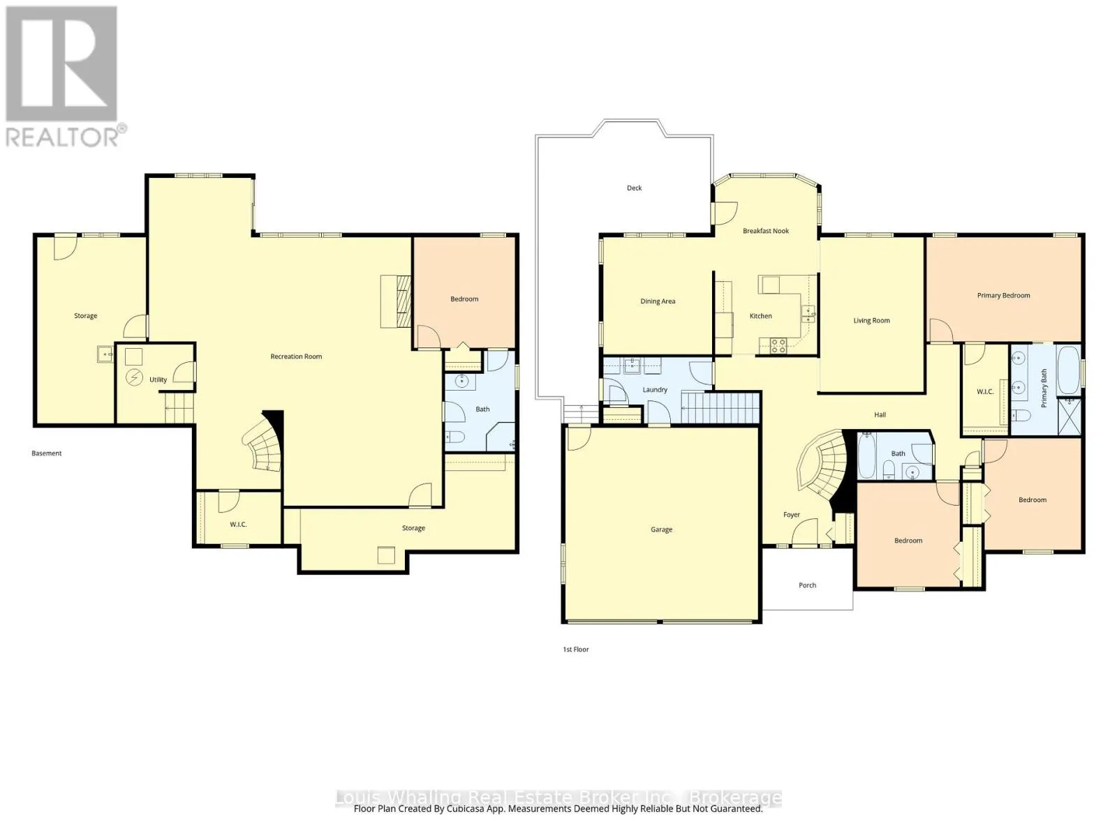
Cross Streets: 14th Street & 21st ave A. ** Directions: from 14th st, turn north onto 21st Ave A, house on the right hand side. This all brick bungalow is the perfect family home and is in excellent state of repair! Consisting of 3+1 bedrooms- principal bedroom with walk in closet & 5 pc ensuite with shower & soaker tub, beautiful foyer with curved staircase to the basement, U shaped kitchen cabinets with dining area that leads to sundeck, formal dining room, large main floor laundry & mudroom with 2nd entrance to the basement. The basement is a full walk out with L shaped rec room with gas fireplace, 4th bedroom, workshop, doors to patio & rear yard, the large backyard has mature trees and the roof is approx 5 years old. (id:27476)

Property Highlights

MLS® Number
X12883654
Type
Single Family
Community Name
Hanover
Ownership Type
Freehold
Land Size
80.4 x 148 FT
Parking Space Total
6

Building

Building Type
House
Storeys
1.00
Square Footage
2000 - 2500 sqft
Bathrooms Total
3
Bedrooms Above Ground
3
Bedrooms Total
4
Amenities
Fireplace(s) Schools
Exterior Finish
Brick
Fireplace Present
Yes
Basement Type
Full, N/A, N/A (Partially finished)
Basement Features
Walk out
Building Heating Type
Forced air
Heating Fuel
Natural gas
Building Cooling Type
Central air conditioning, Air exchanger

Utilities

Water
Municipal water
Utility Sewer
Sanitary sewer

Room Layout

Workshop
Basement
3.91 m x 6.69 m
Utility room
Basement
2.75 m x 2.84 m
Recreational, Games room
Basement
9.41 m x 11.18 m
Bedroom 4
Basement
3.63 m x 3.97 m
Foyer
Main level
2.51 m x 4.12 m
Laundry room
Main level
3.9 m x 2.38 m
Kitchen
Main level
3.67 m x 3 m
Dining room
Main level
3.66 m x 3.34 m
Dining room
Main level
4.01 m x 4.21 m
Living room
Main level
3.72 m x 5.56 m
Primary Bedroom
Main level
5.55 m x 3.75 m
Bedroom 2
Main level
3.69 m x 3.74 m
Bedroom 3
Main level
3.47 m x 4.01 m

Location

Learn more about this property
Listing provided by:
Louis Whaling Real Estate Broker Inc.
MLS® number:
X12883654
Agent:
Bryan Whaling
*Indicates required field
Name is required
Email is required
Please enter a valid phone number (e.g., 416-111-1111).

Community Spotlight: Homes For sale in Your Neighborhood