45 Graf Street, Harrow, Ontario N0R 1G0

Listed for:
$834,900
2 beds
2 baths
Listed 56 days ago
House for rent: 45 Graf Street, Harrow, Ontario N0R 1G0

View all 23 photos

Learn more about this property
Listing provided by:
REALTY ONE GROUP ICONIC BROKERAGE
MLS® number:
25022816
Agent:
Cassandra Balint
*Indicates required field
Name is required
Email is required
Please enter a valid phone number (e.g., 416-111-1111).

About

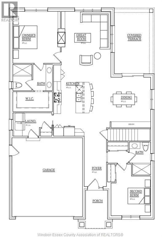
Located just North of Colio Winery. Take Queen St. to Graf St. BUILDER SPECIAL: For a limited time, 1/2 priced basements! TO BE BUILT: Experience county living in Greenleaf Trails, BK Cornerstone’s growing Harrow development. The “Tiverton” ranch impresses with classic curb appeal, open-concept family room with natural light, and a gourmet kitchen featuring custom cabinetry, oversized island & quartz counters. Includes 2 large bedrooms, a private primary suite with walk-in closet & ensuite, plus main-floor laundry. Built with top-quality finishes & Energy Star certification. HST included (rebate to seller); GST rebate may apply for eligible first-time buyers. Visit our open house Sundays 1–3pm at 64 Jewel or call to book an appointment. Photos are of a previously built model land may reflect upgrades or changes to floorplan. (id:27476)

Property Highlights

MLS® Number
25022816
Type
Single Family
Ownership Type
Freehold
Land Size
61.5 X 118 FT / 0.167 AC

Building

Building Type
House
Storeys
1.00
Bathrooms Total
2
Bedrooms Above Ground
2
Bedrooms Total
2
Exterior Finish
Brick
Fireplace Present
No
Basement Type
Basement Features
Building Heating Type
Forced air, Furnace, Heat Recovery Ventilation (HRV)
Heating Fuel
Natural gas
Building Cooling Type
Central air conditioning

Location

Street Spotlight - For sale