Lt 19-20 Fire Route 67, Havelock-Belmont-Methuen, Ontario K0L 1Z0

Listed for:
$79,900
0 beds
0 baths
Listed 52 days ago
Lt 19-20 Fire Route 67, Havelock-Belmont-Methuen, Ontario K0L 1Z0

View all 17 photos

About

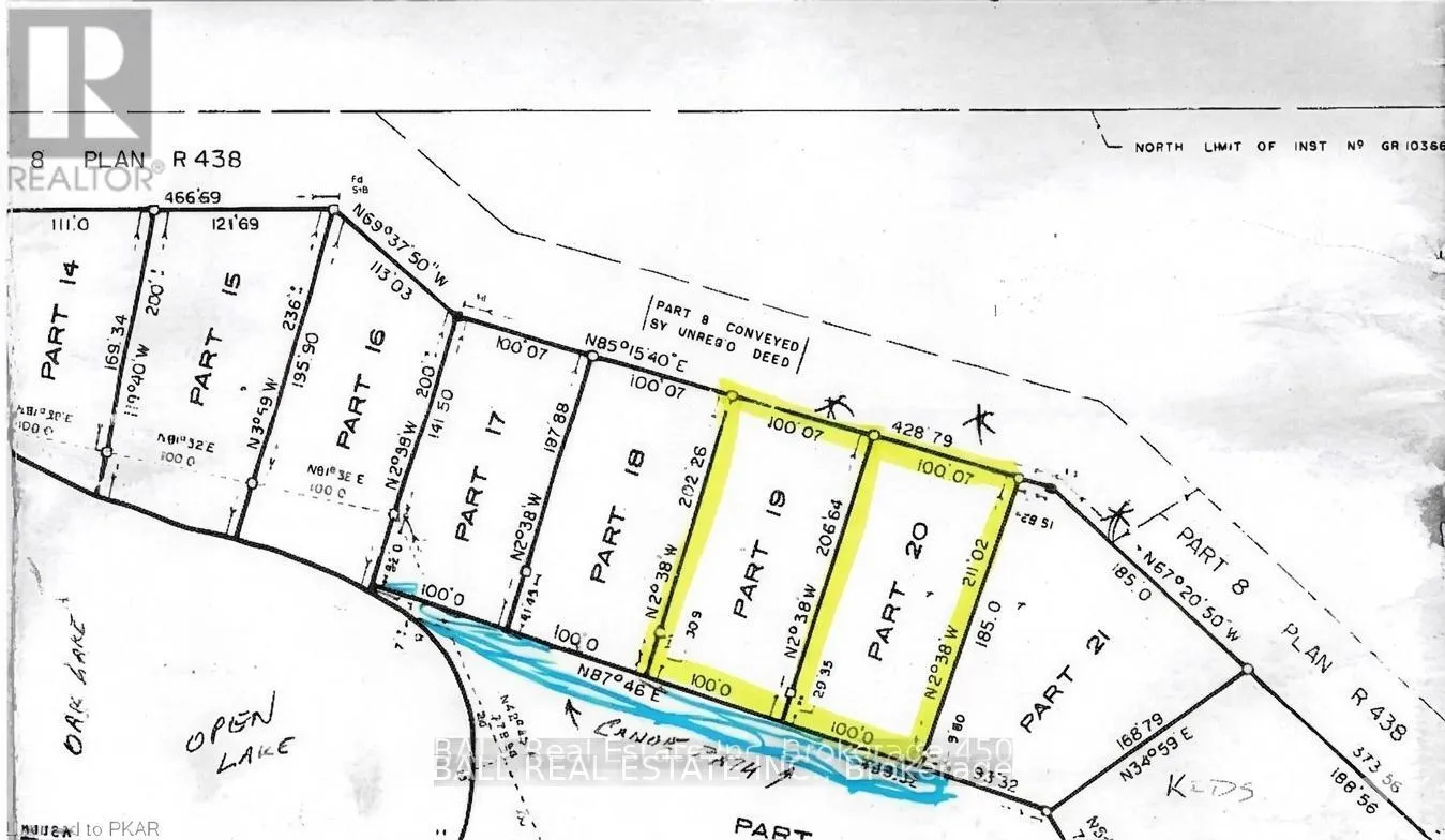
Cross Streets: County Road 46 & Post Road. ** Directions: County Road 46 to Fire Route 67. Nearly an Acre of Waterfront Serenity Awaits. Escape the hustle and discover your own private sanctuary. This unique property combines two amalgamated lots to offer nearly an acre of seasonal residential zoned land, featuring 200 feet of frontage along a peaceful dredged canal that leads directly to Oak Lake. Imagine your mornings spent on a short, scenic paddle to the main lake for premier boating and fishing. The terrain offers a dynamic landscape with elevated views at the roadside that gradually transition through natural rocky outcrops and lush greenery down to the water's edge. This is the ultimate canvas for a 3-season getaway or a weekend retreat tucked away from it all. Accessible via a privately maintained road ($300/year), the property offers privacy and a front-row seat to the local ecosystem. Note: Conservation Authority onsite visit is required to determine if the lot has a building envelope. If not the lot can be used recreationally. (id:27476)

Property Highlights

MLS® Number
X12926220
Type
Vacant Land
Community Name
Havelock-Belmont-Methuen
Land Size
200.02 x 206.64 FT|1/2 - 1.99 acres

Building

Fireplace Present
No
Basement Type
None
Basement Features
Building Heating Type
Heating Fuel
Building Cooling Type

Utilities

Water
Lake/River Water Intake

Location

Learn more about this property
Listing provided by:
BALL REAL ESTATE INC.
MLS® number:
X12926220
Agent:
Michael Pettler
*Indicates required field
Name is required
Email is required
Please enter a valid phone number (e.g., 416-111-1111).