19221 Highway 118, Highlands East, Ontario K0M 1S0

Listed for:
$549,000
2 beds
2 baths
Listed 92 days ago
House for rent: 19221 Highway 118, Highlands East, Ontario K0M 1S0

View all 48 photos

Learn more about this property
Listing provided by:
Century 21 Granite Realty Group Inc.
MLS® number:
X12358935
Agent:
Christine Sharp
*Indicates required field
Name is required
Email is required
Please enter a valid phone number (e.g., 416-111-1111).

About

Cross Streets: Hwy 118 & Cty Rd 503. ** Directions: Take Hwy 118 East to Tory Hill, 2.7km to sign on left. You know that picture on Facebook that asks if you'd prefer the cabin in the woods or the modern condo? This is THAT cabin in the woods with all the charm, yet just built in 1990. This handcrafted log cabin feels like something out of a storybook; only better, because you get to call it home. Built from solid 12"square-cut logs, it radiates warmth and strength, like it was made to stand the test of time. The covered front porch welcomes you with charm, while dormer windows peek out from above, giving the cabin a timeless character that blends perfectly into its forest setting. With over 8 acres of private woods at your doorstep, you'll have endless room to roam, breathe in the fresh pine air, and enjoy nature at its most peaceful. Just under 3 km away is the charming hamlet of Tory Hill, home to world-renowned glassblowing artisans whose creations are as brilliant as the landscapes around them. You'll also find the historic IB and O rail line, now transformed into a year-round trail for hiking, biking, snowmobiling, and adventure in every season. Whether you dream of a weekend retreat or a cozy year-round residence, this fully winterized log home has you covered: warm and inviting when the snow falls, naturally cool and breezy when summer arrives. And when you're ready to venture out, a collection of nearby beaches and boat launches means you can spend your days paddling, fishing, or swimming under the Haliburton sun. Equal parts rustic escape and practical home, this property is more than just a cabin in the woods, its a lifestyle, waiting for you. (id:27476)

Property Highlights

MLS® Number
X12358935
Type
Single Family
Community Name
Monmouth
Ownership Type
Freehold
Land Size
835 FT ; 374' AND 544' ON SIDE LOT LINES|5 - 9.99 acres
Parking Space Total
10

Building

Building Type
House
Square Footage
1100 - 1500 sqft
Bathrooms Total
2
Bedrooms Above Ground
2
Bedrooms Total
2
Exterior Finish
Log
Fireplace Present
No
Basement Type
Crawl space
Basement Features
Building Heating Type
Forced air
Heating Fuel
Propane
Building Cooling Type
None

Utilities

Water
Drilled Well
Utility Sewer
Septic System

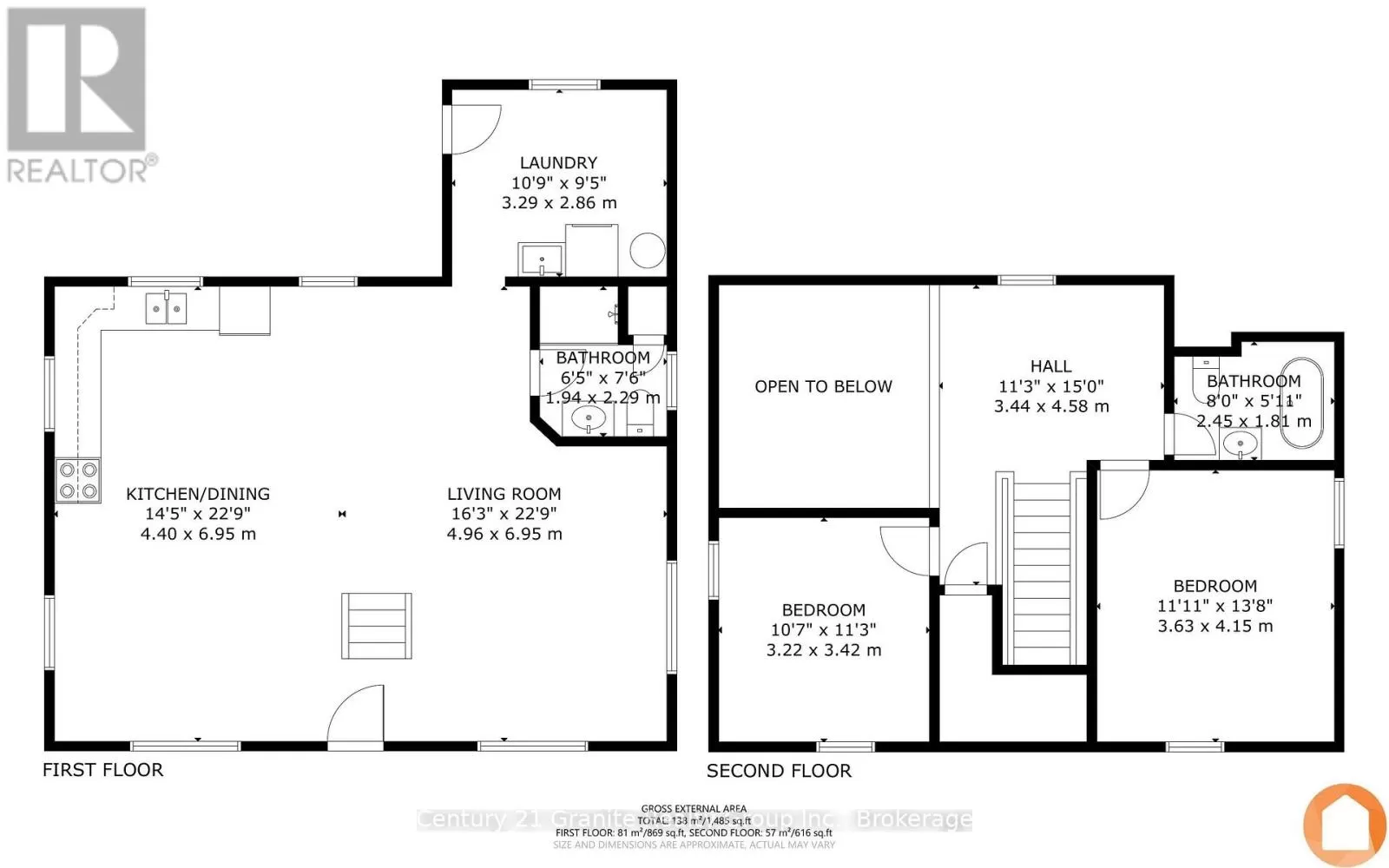
Room Layout

Primary Bedroom
Second level
3.63 m x 4.15 m
Bedroom 2
Second level
3.22 m x 3.42 m
Bathroom
Second level
2.45 m x 1.81 m
Loft
Second level
3.44 m x 4.58 m
Kitchen
Main level
6.95 m x 4.4 m
Living room
Main level
6.95 m x 4.96 m
Laundry room
Main level
2.86 m x 3.29 m
Bathroom
Main level
1.94 m x 2.29 m

Location