691 Mt St Louis Road W, Hillsdale, Ontario L0L 1V0

Listed for:
$1,980,000
4 beds
2 baths
Listed 40 days ago
House for rent: 691 Mt St Louis Road W, Hillsdale, Ontario L0L 1V0

View all 40 photos

Learn more about this property
Listing provided by:
Keller Williams Edge Realty
MLS® number:
40778434
Agent:
Karen Hewson
*Indicates required field
Name is required
Email is required
Please enter a valid phone number (e.g., 416-111-1111).

About

Highway 400 to exit 93 Calling all skiers, nature lovers, and privacy seekers — your dream retreat awaits! Set on over 10 acres of trees, trails, and total seclusion, this property delivers the perfect blend of adventure and the comforts of home. Step inside a spacious, fully updated home where every detail shines — from the well appointed kitchen and modern baths to the dreamy primary suite complete with a fireplace, steam shower, and walkout to the 40’ x 16’ inground pool. Entertain outdoors in the beautifully landscaped backyard, complete with a fenced area for pets and kids. Looking for a workshop or more storage? You’ll find it here — a 1,750 sq. ft. heated and insulated workshop/garage plus a three-car garage for all your vehicles, off-road gear, or creative pursuits. Relax year-round in the charming log cabin, kept cozy by a pellet stove, or unwind in the nearby sauna. Explore established forest trails right on your own property, then hit the slopes — Mount St. Louis Moonstone is only 5 minutes away! Enjoy the best of all four seasons with privacy, luxury, and unbeatable accessibility — just 25 minutes to Barrie, 1.5 hours to Pearson Airport, and minutes from Hwy 400. With a whole-home generator (2023), new pool filter (2024), and 218 ft drilled well, this property delivers comfort, freedom, and the feeling of being away from it all — without ever being far from anywhere. (id:27476)

Property Highlights

MLS® Number
40778434
Type
Single Family
Ownership Type
Freehold
Land Size
10.22 ac|10 - 24.99 acres
Parking Space Total
10

Building

Building Type
House
Storeys
1.00
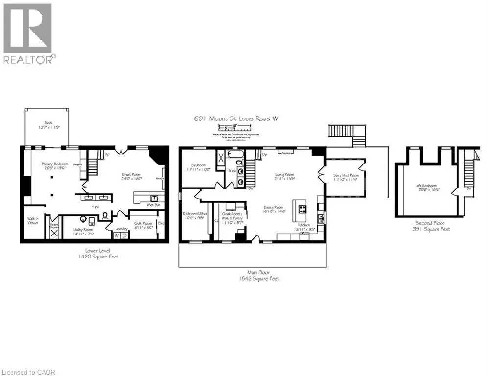
Square Footage
3338 sqft
Bathrooms Total
2
Bedrooms Above Ground
3
Bedrooms Total
4
Amenities
Golf Nearby, Ski area
Exterior Finish
Hardboard
Fireplace Present
Yes
Basement Type
Full (Finished)
Basement Features
Building Heating Type
Forced air, Radiant heat, Stove
Heating Fuel
Natural gas, Pellet
Building Cooling Type
Central air conditioning

Utilities

Water
Drilled Well
Utility Sewer
Septic System

Room Layout

Bedroom
Second level
20'9'' x 18'5''
Utility room
Lower level
Measurements not available
Laundry room
Lower level
Measurements not available
Studio
Lower level
8'11'' x 8'6''
Great room
Lower level
24'0'' x 18'7''
4pc Bathroom
Lower level
Measurements not available
Primary Bedroom
Lower level
20'3'' x 19'6''
Sunroom
Main level
11'10'' x 11'4''
5pc Bathroom
Main level
Measurements not available
Bedroom
Main level
11'11'' x 8'10''
Bedroom
Main level
16'2'' x 9'8''
Pantry
Main level
11'10'' x 9'7''
Dining room
Main level
16'10'' x 14'6''
Kitchen
Main level
13'11'' x 9'8''
Living room
Main level
21'4'' x 15'9''

Location