95 Shay Road, Huntsville, Ontario P1H 1L2

Listed for:
$4,995,000
0 beds
0 baths
Listed 77 days ago
95 Shay Road, Huntsville, Ontario P1H 1L2

View all 7 photos

Learn more about this property
Listing provided by:
Corcoran Horizon Realty
MLS® number:
X12377593
Agent:
Johan Klepp
*Indicates required field
Name is required
Email is required
Please enter a valid phone number (e.g., 416-111-1111).

About

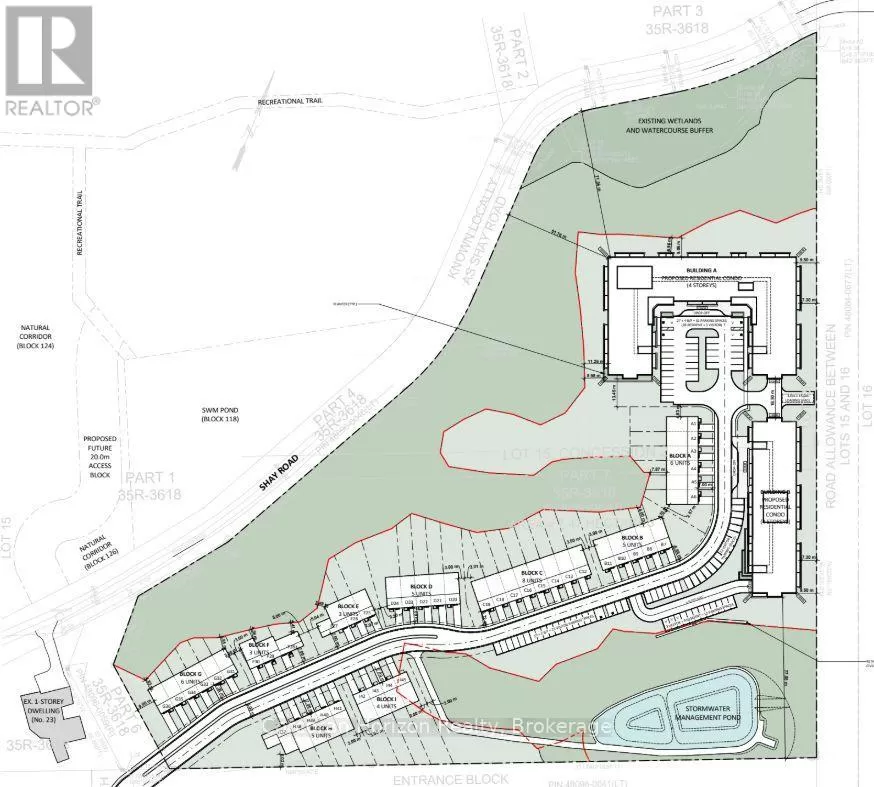
Cross Streets: Chaffey & Herman Ave. ** Directions: Hwy 60 to Haines Rd to Shay Rd. 95 Shay Road, Huntsville, Ontario. Residential Development Opportunity. This prime 18.8-acre parcel is located just a 10-minute walk from downtown Huntsville and offers a fully conceptualized plan for 195 residential units. The design includes 150 apartment units across two 4-story buildings with ground level garage parking and 45 two-story townhomes in 9 blocks. The site's elevated position will provide views over the town while offering convenient access to boutique shopping, dining, cultural amenities, resorts, skiing, and boating on Huntsville's 4 lake chain. Zoned R4, the property is well positioned for mid-density residential development with the potential for greater density if desired. A full set of supporting reports and studies have been completed, including planning justification, survey, environmental, archaeological, architectural, engineering, traffic, storm water, and landscape design. Calculated at $24,000 per apartment unit plus $31,000 per townhome unit, this development is well below other local pricing. Vendor Take Back financing is available on favorable terms, and joint venture opportunities may be considered depending on the exit strategy. Huntsville is Muskoka's largest and fastest-growing community, with strong demand for housing from permanent residents, seasonal buyers and renters. Shay Rd offers an excellent MLI Select opportunity for long term investors. The market is supported by steady population growth, tourism activity, government incentives for green development, and limited supply of high-quality mid-density housing. This site represents an exceptional opportunity for developers and investors to capitalize on one of Ontarios most desirable real estate markets. (id:27476)

Property Highlights

MLS® Number
X12377593
Type
Vacant Land
Community Name
Chaffey
Land Size
18.77 ac

Building

Fireplace Present
No
Basement Type
Basement Features
Building Heating Type
Heating Fuel
Building Cooling Type

Utilities

Water
Municipal water
Utility Sewer
Sanitary sewer

Location

Community Spotlight: Homes For sale in Your Neighborhood