410 Etwell Road, Huntsville, Ontario P1H 2J2

Listed for:
$899,900
4 beds
3 baths
Listed 2 days ago
House for rent: 410 Etwell Road, Huntsville, Ontario P1H 2J2

View all 43 photos

About

Cross Streets: Aspdin / Etwell. ** Directions: Aspdin Road to Etwell Road to SOP on the left hand side. (Approx 10 minutes from downtown of Huntsville or 6 kms from town. 38+ Acres of Muskoka Paradise - Private Naturalist's Dream with Home, Studio & Barn! Imagine waking up on your own stunning 38+ acre Muskoka retreat: dramatic granite rock face, towering mature forest, and two serene ponds right outside your door. This is the perfect setting for a nature lover's getaway or family compound. The beautifully updated 4+ bedroom bungalow offers 3,053 sq. ft. of living space. The bright open-concept main floor features a cozy fireplace and walks out to a sunroom and deck overlooking the pond - ideal for morning coffee while listening to the songbirds. Downstairs you'll find a fully equipped in-law suite with its own bedroom, living area, kitchen, patio, and separate entrances - perfect for multigenerational living or guests. There's even extra lower-level space ready to finish for more living area. Bonus features you'll love: Insulated garage with oversized bay, workbench, and a fully finished, soundproof studio/flat (currently a recording studio) complete with 3-pc bath, kitchenette, heat pump, and fireplace - year-round comfort for artists, musicians, or extra guests. Solid barn with two covered carports and a large drive-in door - great storage or space for a hobby farm, home business, or agriculture ventures. Just 10 minutes from vibrant Huntsville for shopping, dining, and amenities, and minutes to beaches, boat launches, marinas, and trails. This serene, updated Muskoka property has incredible potential - whether you want a peaceful family home, multigenerational living, farm or rental income. Must-see! Book your private showing today - opportunities like this don't come along often! (id:27476)

Property Highlights

MLS® Number
X12996726
Type
Single Family
Community Name
Stisted
Ownership Type
Freehold
Land Size
430.3 x 1596.7 FT|25 - 50 acres
Parking Space Total
8

Building

Building Type
House
Storeys
1.00
Square Footage
1100 - 1500 sqft
Bathrooms Total
3
Bedrooms Above Ground
4
Bedrooms Total
4
Amenities
Fireplace(s), Separate Heating Controls Marina, Hospital
Exterior Finish
Brick
Fireplace Present
Yes
Basement Type
N/A (Partially finished), N/A, N/A
Basement Features
Separate entrance, Walk out
Building Heating Type
Forced air
Heating Fuel
Propane
Building Cooling Type
Central air conditioning

Utilities

Water
Drilled Well
Utility Sewer
Septic System

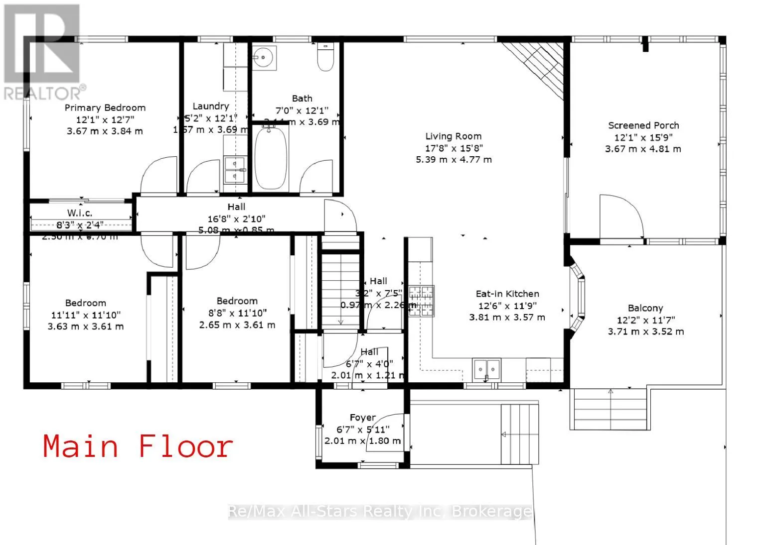
Room Layout

Recreational, Games room
Flat
5.54 m x 4.22 m
Dining room
Flat
5.36 m x 2.9 m
Media
Flat
2.92 m x 3.23 m
Media
Flat
2.92 m x 3.23 m
Kitchen
Lower level
3.51 m x 4.17 m
Family room
Lower level
4.9 m x 4.06 m
Bedroom
Lower level
3.89 m x 2.79 m
Living room
Main level
5.38 m x 4.78 m
Kitchen
Main level
3.81 m x 3.58 m
Sunroom
Main level
3.68 m x 4.8 m
Laundry room
Main level
3.68 m x 1.57 m
Bedroom
Main level
3.68 m x 3.84 m
Bedroom
Main level
3.63 m x 3.61 m
Bedroom
Main level
5.38 m x 4.78 m
Mud room
Main level
2.01 m x 1.8 m

Location

Learn more about this property
Listing provided by:
Re/Max All-Stars Realty Inc
MLS® number:
X12996726
Agent:
Janine Scott
*Indicates required field
Name is required
Email is required
Please enter a valid phone number (e.g., 416-111-1111).

Community Spotlight: Homes For sale in Your Neighborhood