268 Tunis Street, Ingersoll, Ontario N5C 1W7

Listed for:
$600,000
4 beds
4 baths
Listed 195 days ago
House for rent: 268 Tunis Street, Ingersoll, Ontario N5C 1W7

View all 11 photos

About

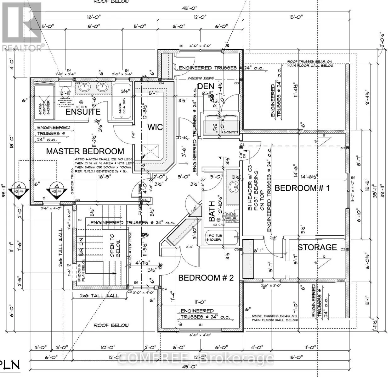
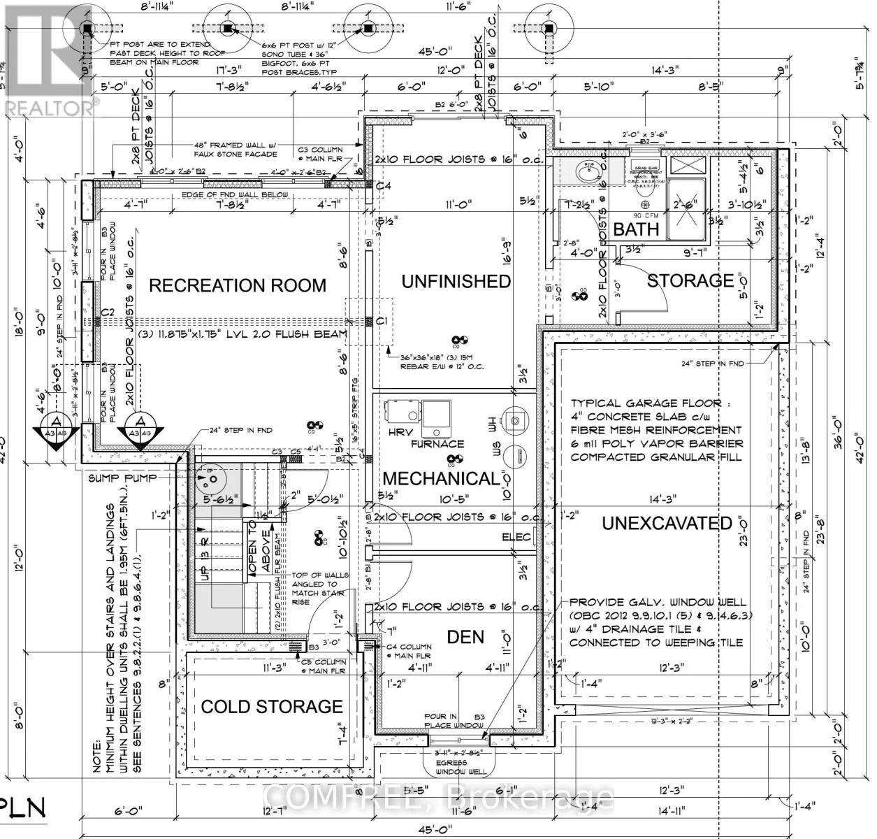
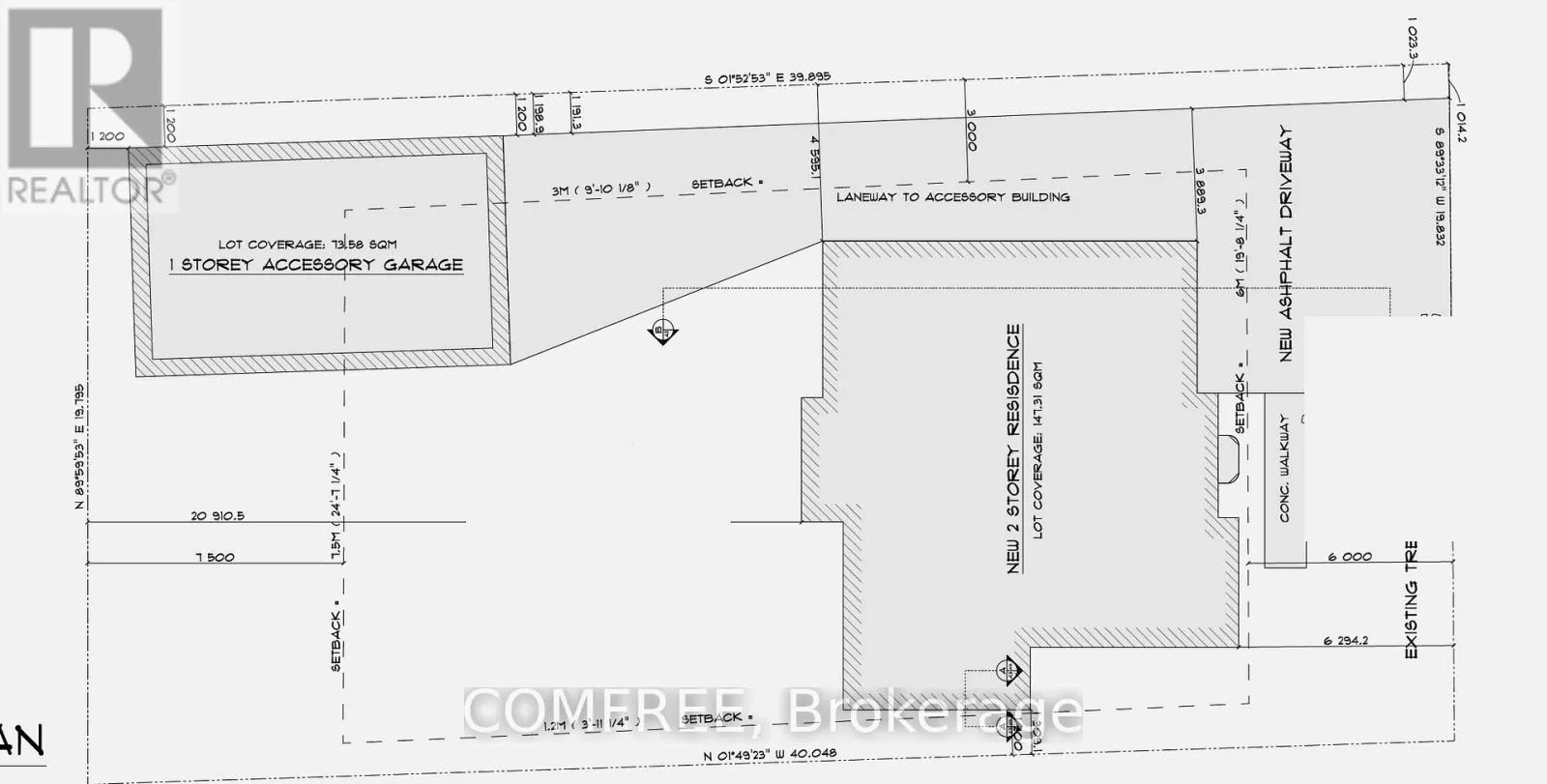
Cross Streets: Martha Street and Tunis Street. ** Directions: See maps. A Unique Opportunity for a Custom Build on Private Tunis Street Lot. Nestled behind a screen of majestic tall cedar trees, this exceptionally private property at 268 Tunis Street offers a rare opportunity to bring your dream home to life. This custom-designed, two-storey home is a canvas awaiting your personal touch, with a spacious 2,387 sq. ft. floor plan that is larger than it appears from the street. The thoughtfully designed layout includes four bedrooms and four bathrooms, providing ample space for a growing family or those who love to host. The heart of the home is illuminated by beautiful French doors that bathe the space in natural light and open onto a large back deck, perfect for summer evenings and overlooking a generous yard with a cleverly hidden play area for children. The expansive 66' x 132' lot provides plenty of room for outdoor activities and includes a designated space for a future detached garage in the backyard. Situated in a highly desirable and friendly neighbourhood, this home is just a short and safe walk for the kids to local schools and a leisurely stroll to the charming downtown Ingersoll. The Opportunity: This home is currently in the construction phase, offering the unique advantage for you, the buyer, to select your own finishes and truly make it your own. Included in the current price: A brand new, high-efficiency furnace and air conditioning unit will be installed. The plumbing will be fully roughed-in upon closing. Seize this chance to get in at the ground level. The price is scheduled to increase upon the completion of the electrical and siding work. Act now to customize these crucial elements to your exact specifications and taste. (id:27476)

Property Highlights

MLS® Number
X12250141
Type
Single Family
Community Name
Ingersoll - South
Ownership Type
Freehold
Land Size
66 x 132 FT
Parking Space Total
6

Building

Building Type
House
Storeys
2.00
Square Footage
2000 - 2500 sqft
Bathrooms Total
4
Bedrooms Above Ground
4
Bedrooms Total
4
Exterior Finish
Wood
Fireplace Present
No
Basement Type
N/A (Unfinished)
Basement Features
Building Heating Type
Forced air
Heating Fuel
Natural gas
Building Cooling Type
Central air conditioning

Utilities

Water
Municipal water
Utility Sewer
Sanitary sewer

Room Layout

Family room
Main level
2.62 m x 5.38 m
Kitchen
Main level
6.49 m x 3.35 m
Primary Bedroom
Upper Level
5.03 m x 3.43 m
Bedroom
Upper Level
4.45 m x 4.47 m
Bedroom 2
Upper Level
3.47 m x 3.35 m

Location

Learn more about this property
Listing provided by:
COMFREE
MLS® number:
X12250141
Agent:
Erin Holowach
*Indicates required field
Name is required
Email is required
Please enter a valid phone number (e.g., 416-111-1111).

Community Spotlight: Homes For sale in Your Neighborhood