121 Melita Street, Ingersoll, Ontario N5C 3T3

Listed for:
$679,000
4 beds
3 baths
Listed 29 days ago
House for rent: 121 Melita Street, Ingersoll, Ontario N5C 3T3

View all 50 photos

About

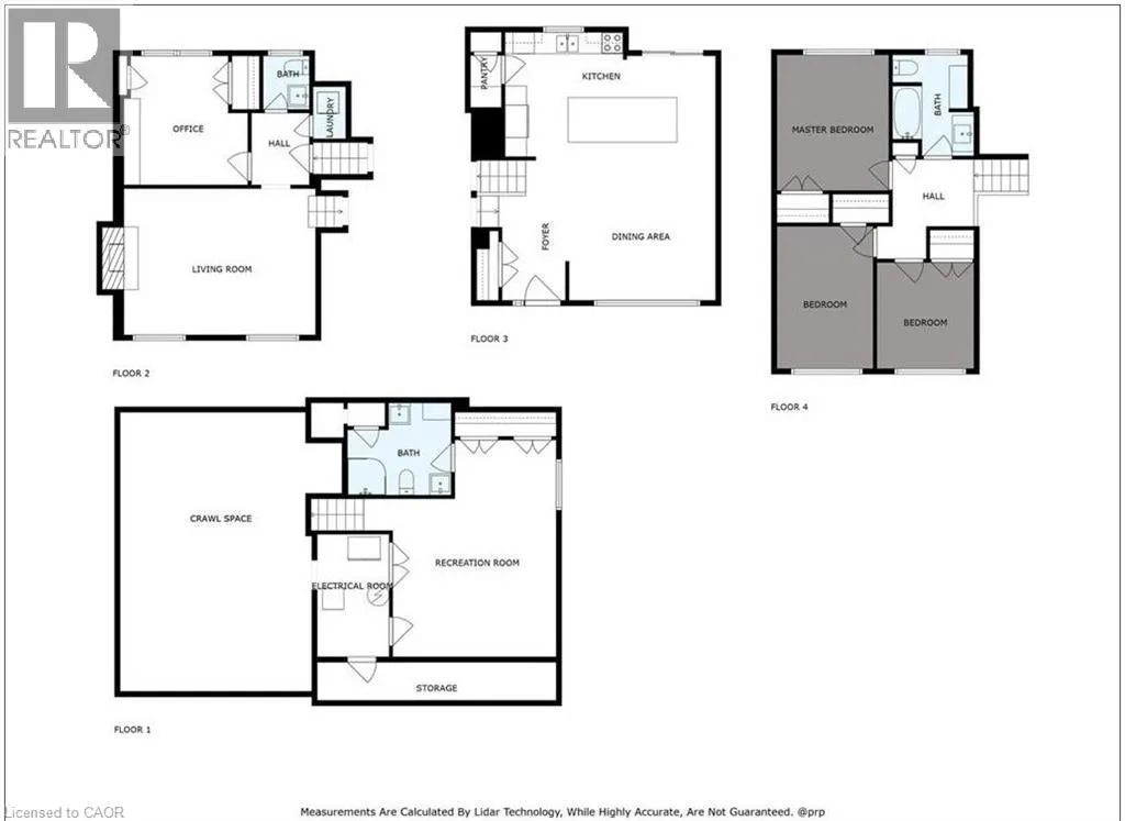
Attention empty nesters and first-time buyers! Ideally located just minutes from Hwy 401 and close to schools, shopping, library, parks, and places of worship, this property combines comfort with convenience. The main level has been renovated into a generous open-concept space that includes the foyer, dining room/living room, and kitchen. The kitchen is truly the centerpiece of the home, featuring an impressive island with seating for eight, elegant granite countertops, and stylish cabinetry. The second level features three generously sized bedrooms and a well-appointed 4-piece bathroom, providing comfortable accommodations for family members or guests. Each bedroom offers ample space and creates a bright and welcoming atmosphere throughout the level. The lower level features a comfortable living room with a fireplace feature wall, a fourth bedroom currently used as an office, a 2-piece bathroom, and a laundry area. Large windows provide plenty of natural light, keeping the space bright and inviting. The finished basement offers additional living space, including a recreation room, a 4-piece bathroom, a mechanical room, and a cold room. It also provides access to an oversized crawlspace for storage, approximately the same size as the lower level. The home features durable and stylish LVP flooring throughout. All windows, doors (including the front door), trim, and hardware throughout the home were replaced in 2021. Major electrical upgrades were completed in 2021, including copper wiring, a new breaker panel, and the installation of over 60 pot lights throughout the home. A full top-to-bottom renovation was completed in 2021, offering a fresh, modern feel throughout the entire home. The long driveway can accommodate three cars. This home showcases quality workmanship throughout. View the attached 3D virtual tour and explore the 50 photos. Don’t miss this fantastic opportunity. (id:27476)

Property Highlights

MLS® Number
40812325
Type
Single Family
Ownership Type
Freehold
Land Size
under 1/2 acre
Parking Space Total
3

Building

Building Type
House
Square Footage
1946 sqft
Bathrooms Total
3
Bedrooms Above Ground
3
Bedrooms Total
4
Amenities
Golf Nearby, Hospital, Park, Schools
Exterior Finish
Brick, Vinyl siding
Fireplace Present
Yes
Basement Type
Full (Finished)
Basement Features
Building Heating Type
Forced air
Heating Fuel
Natural gas
Building Cooling Type
Central air conditioning

Utilities

Water
Municipal water
Utility Sewer
Municipal sewage system

Room Layout

Bedroom
Second level
9'1'' x 10'2''
Bedroom
Second level
8'10'' x 13'8''
4pc Bathroom
Second level
6'7'' x 9'8''
Primary Bedroom
Second level
10'5'' x 12'11''
Storage
Basement
21'11'' x 3'5''
3pc Bathroom
Basement
9'0'' x 7'8''
Recreation room
Basement
15'6'' x 19'4''
2pc Bathroom
Lower level
4'1'' x 4'8''
Bedroom
Lower level
11'5'' x 11'4''
Family room
Lower level
16'10'' x 13'2''
Kitchen
Main level
19'7'' x 11'7''
Living room/Dining room
Main level
19'7'' x 13'1''

Location

Learn more about this property
Listing provided by:
Adrian Homes Realty Inc.
MLS® number:
40812325
Agent:
Adrian Florea
*Indicates required field
Name is required
Email is required
Please enter a valid phone number (e.g., 416-111-1111).