6938 Yonge Street, Innisfil, Ontario L0S 4P2

Listed for:
$2,750,000
0 beds
0 baths
Listed 3 days ago
6938 Yonge Street, Innisfil, Ontario L0S 4P2

View all 16 photos

Learn more about this property
More info:
Sutton Group Innovative Realty Inc.
MLS® number:
40701586
Agent:
Darya Strilyana
Phone:
*Indicates required field
Name is required
Email is required
Please enter a valid phone number (e.g., 416-111-1111).

About

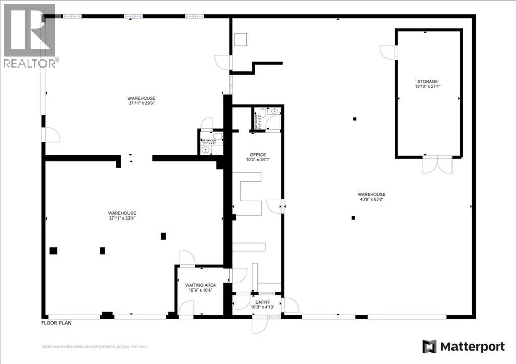
Hwy 400 to Innisfil Beach Rd, East to Yonge St/Hwy 11, South to property on West Side. High-exposure commercial property on Yonge St/Hwy 11 in Innisfil. This 6,000 Sf automotive building sits on 0.69 acres, backs onto the bustling Sunset Speedway - a NASCAR sanctioned 0.333 mi semi-banked short track motor racing oval - as well as onto 45 acres owned by a well known developer and just 1 mi south of the recently announced Royal Victoria Hospital South Campus to be built. Building is currently occupied by tenants. A rare chance to acquire a commercial asset in a growing corridor with long-term value potential. (id:27476)

Property Highlights

MLS® Number
40701586
Type
Retail
Ownership Type
Freehold
Land Size
0.695 ac|1/2 - 1.99 acres

Building

Storeys
1.00
Square Footage
6000 sqft
Exterior Finish
Concrete
Fireplace Present
No
Basement Type
None
Basement Features
Building Heating Type
Heating Fuel
Building Cooling Type

Utilities

Water
Well
Utility Sewer
Septic System

Location