1052 Spruce Road, Innisfil, Ontario L0L 1C0

Listed for:
$449,000
0 beds
0 baths
Listed 96 days ago
1052 Spruce Road, Innisfil, Ontario L0L 1C0

View all 6 photos

Learn more about this property
More info:
Sutton Group Innovative Realty Inc.
MLS® number:
N12442279
Agent:
Darya Strilyana
Phone:
*Indicates required field
Name is required
Email is required
Please enter a valid phone number (e.g., 416-111-1111).

About

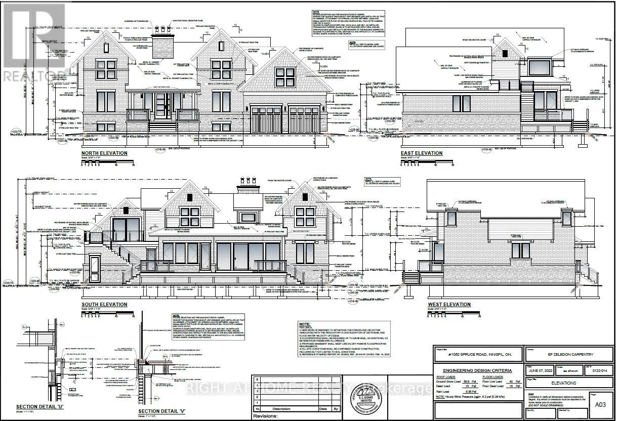
Cross Streets: Spruce/Temple. ** Directions: Con Road 20 To 5th Line To Temple. Prime Building Lot Steps To Belle Aire Beach ! Seller has paid for the building permit, which is included with the purchase price. Property is permit-ready to build. Development charges are applicable and, under the Town of Innisfil's current program, are payable prior to occupancy(by new owner), allowing construction to proceed with the approved permit in place. This leveled 100 ft x 136 ft lot offers endless potential - build one expansive dream home or explore the option to sever into two 50 ft frontage lots (buyer to verify with Town of Innisfil). Conservation Authority approval already in place for a new two-storey 3,724 sq. ft. home, saving valuable time for your build. Enjoy a peaceful, country-style setting close to schools, shops, and beaches. Perfect for custom home builders, investors, or families looking to create their ideal lakeside residence. Services: Municipal sewer & water at lot line, natural gas at road, , and recycled asphalt driveway. Don't miss this exceptional opportunity near Lake Simcoe! (id:27476)

Property Highlights

MLS® Number
N12442279
Type
Vacant Land
Community Name
Rural Innisfil
Land Size
100 x 136 FT|under 1/2 acre

Building

Amenities
Beach, Park, Marina, Public Transit
Fireplace Present
No
Basement Type
Basement Features
Building Heating Type
Heating Fuel
Building Cooling Type

Location