3861 East Street E, Innisfil, Ontario L9S 2L9

Listed for:
$849,900
5 beds
2 baths
Listed 3 days ago
House for rent: 3861 East Street E, Innisfil, Ontario L9S 2L9

View all 33 photos

About

Cross Streets: 25th Side Rd. ** Directions: Big Bay Pt-25 Side Rd-East St. Welcome to 3861 East Street in Innisfil! This beautifully maintained raised bungalow offering over 2,300 sq. ft. of finished living space, including a legal 2-bedroom second suite. Situated in the highly sought-after Big Bay Point area, this home is just minutes from the shores of Lake Simcoe and a short walk to the renowned Friday Harbour Resort. The main floor features a spacious living room, a generous dining area perfect for family gatherings, and a well-appointed kitchen designed for those who love to cook. A walkout from the dining room leads to the deck-an ideal space for entertaining or enjoying your morning coffee while taking in the privacy and peaceful surroundings. Down the hall, you'll find a large primary bedroom with a 5-piece semi-ensuite, along with two additional generously sized bedrooms.The professionally finished legal second suite offers excellent flexibility for multigenerational living or income potential. Complete with a separate entrance, in-suite laundry, beautiful flooring, two spacious bedrooms, and a bright open-concept living area with above-grade windows, it provides a comfortable and fully self-contained living space. Set on an impressive 100 ft x 150 ft lot, the property is fenced on three sides and surrounded by mature trees, offering exceptional privacy and ample room to enjoy the outdoors. Ideally located just minutes from the lake and within walking distance to Friday Harbour Resort, with its marina, restaurants, shops, year-round activities, and golf-this is a solid, beautiful family home in a truly special community. A rare opportunity offering space, versatility, and an unbeatable location. (id:27476)

Property Highlights

MLS® Number
N12871044
Type
Single Family
Community Name
Rural Innisfil
Ownership Type
Freehold
Land Size
100 x 150 FT
Parking Space Total
5

Building

Building Type
House
Storeys
1.00
Square Footage
1100 - 1500 sqft
Bathrooms Total
2
Bedrooms Above Ground
3
Bedrooms Total
5
Amenities
Golf Nearby, Marina
Exterior Finish
Vinyl siding, Brick
Fireplace Present
No
Basement Type
N/A, N/A (Finished), Full, N/A
Basement Features
Separate entrance, Apartment in basement
Building Heating Type
Forced air
Heating Fuel
Natural gas
Building Cooling Type
Central air conditioning

Utilities

Utility Sewer
Septic System

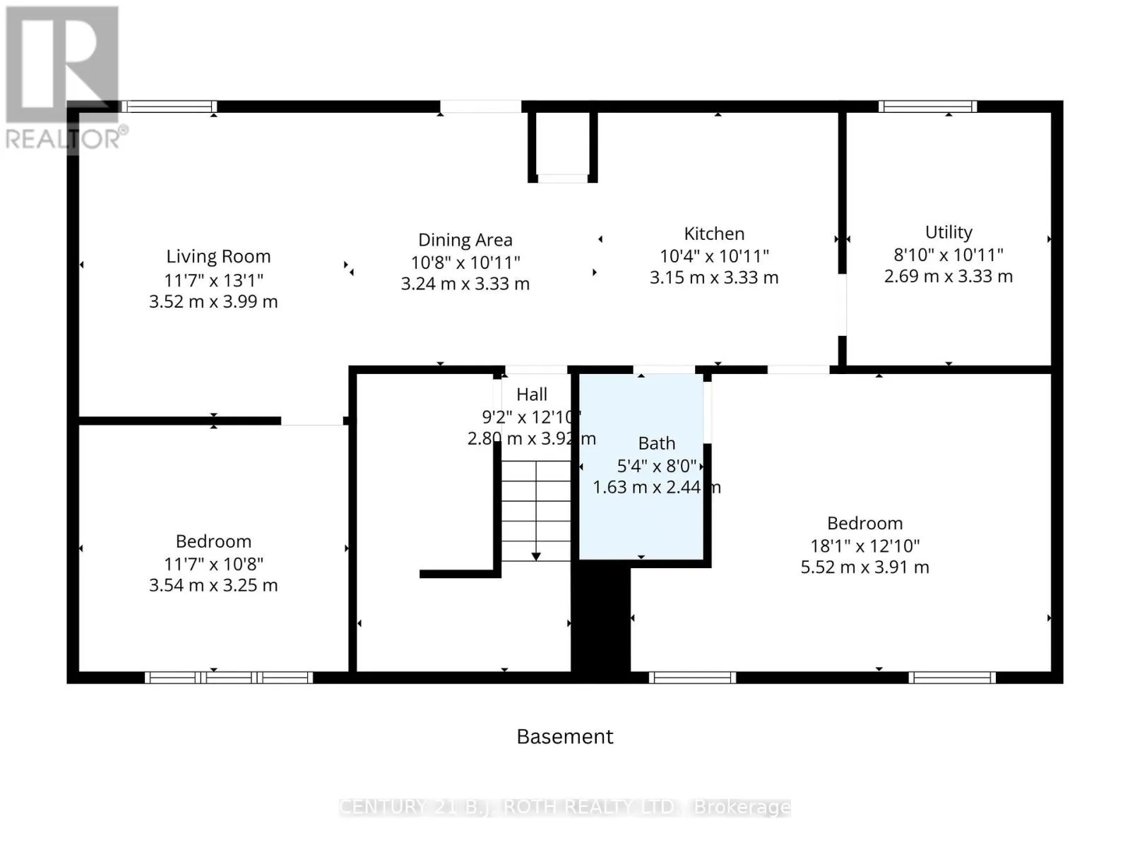
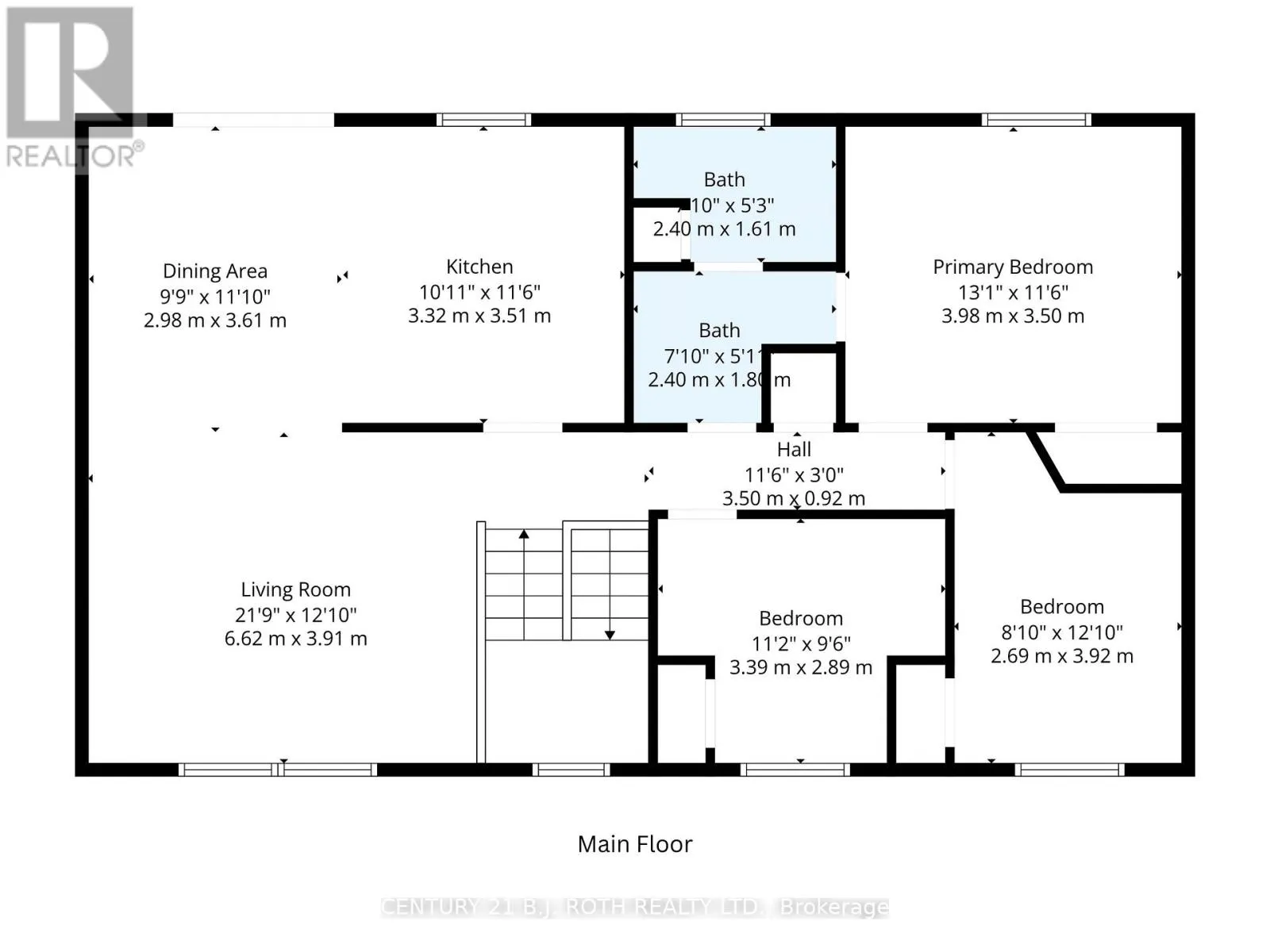
Room Layout

Bedroom 5
Lower level
3.54 m x 3.25 m
Utility room
Lower level
2.69 m x 3.33 m
Laundry room
Lower level
2.8 m x 3.92 m
Family room
Lower level
3.52 m x 3.99 m
Kitchen
Lower level
3.15 m x 3.33 m
Dining room
Lower level
3.24 m x 3.33 m
Bedroom 4
Lower level
5.52 m x 3.91 m
Living room
Main level
2.98 m x 3.91 m
Dining room
Main level
2.98 m x 3.61 m
Kitchen
Main level
3.32 m x 3.51 m
Primary Bedroom
Main level
3.98 m x 3.5 m
Bedroom 2
Main level
2.69 m x 3.92 m
Bedroom 3
Main level
3.39 m x 2.89 m

Location

Learn more about this property
More info:
Sutton Group Innovative Realty Inc.
MLS® number:
N12871044
Agent:
Darya Strilyana
Phone:
*Indicates required field
Name is required
Email is required
Please enter a valid phone number (e.g., 416-111-1111).