1386 Davis Loop, Innisfil, Ontario L0L 1W0

Listed for:
$799,990
5 beds
3 baths
Listed 4 days ago
House for rent: 1386 Davis Loop, Innisfil, Ontario L0L 1W0

View all 43 photos

About

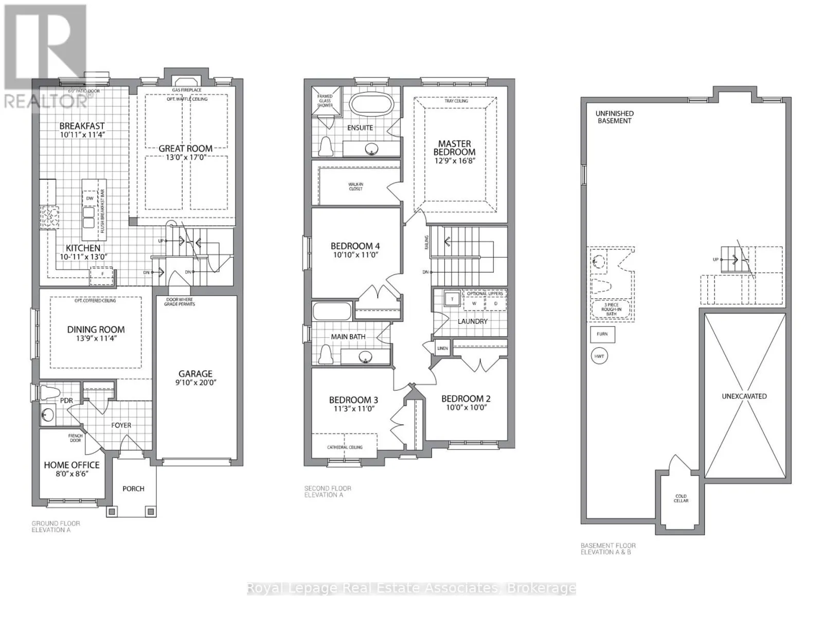
Cross Streets: Pine Ave/ Killarney Beach Rd. ** Directions: Right on Killarney Beach Rd, left on Pine. Welcome to 1386 Davis Loop, a beautiful 4+1 bedroom, 2.5 bathroom home offering over 2,000 sq.ft of comfortable living space. Just 2 years new, this home features a bright, open layout with separate living and dining areas, perfect for both everyday living and hosting. The main floor offers oak hardwood flooring, high ceilings, and large windows with zebra blinds throughout, bringing in plenty of natural light. The cozy living room with a gas fireplace creates the perfect space to unwind. At the front of the home, you have a versatile office and a convenient powder room, with the office easily used as a guest room or additional bedroom. Upstairs, you'll find four spacious bedrooms, including a primary suite with a walk-in closet and tray ceilings, along with a private ensuite featuring double sinks, a freestanding tub, and a separate shower. Laundry is conveniently located on the second floor, along with another full bathroom. The expansive unfinished basement offers incredible potential with a bathroom rough-in, ready for your future plans. The backyard provides a private outdoor space to enjoy during the warmer months. Located just steps from Lake Simcoe, the marina, and nearby golf courses, this home offers a peaceful lifestyle while still being close to everything you need. Schools, parks, and local shops are all nearby, making it a great choice for families. A perfect opportunity to enjoy a slower, more relaxed pace of life without giving up convenience. (id:27476)

Property Highlights

MLS® Number
N12998082
Type
Single Family
Community Name
Lefroy
Ownership Type
Freehold
Land Size
32 x 138 FT
Parking Space Total
3

Building

Building Type
House
Storeys
2.00
Square Footage
2000 - 2500 sqft
Bathrooms Total
3
Bedrooms Above Ground
4
Bedrooms Total
5
Amenities
Fireplace(s) Beach, Golf Nearby, Marina, Schools
Exterior Finish
Brick Facing
Fireplace Present
Yes
Basement Type
N/A (Unfinished)
Basement Features
Building Heating Type
Forced air
Heating Fuel
Natural gas
Building Cooling Type
Central air conditioning

Utilities

Water
Municipal water
Utility Sewer
Sanitary sewer

Room Layout

Primary Bedroom
Second level
3.93 m x 5.12 m
Bedroom 2
Second level
3.05 m x 3.05 m
Bedroom 3
Second level
3.44 m x 3.35 m
Bedroom 4
Second level
3.08 m x 3.35 m
Laundry room
Second level
Measurements not available
Great room
Main level
3.96 m x 5.18 m
Kitchen
Main level
3.05 m x 3.96 m
Eating area
Main level
3.08 m x 3.47 m
Dining room
Main level
4.24 m x 3.47 m
Office
Main level
2.44 m x 2.62 m

Location

Learn more about this property
More info:
Sutton Group Innovative Realty Inc.
MLS® number:
N12998082
Agent:
Darya Strilyana
Phone:
*Indicates required field
Name is required
Email is required
Please enter a valid phone number (e.g., 416-111-1111).

Street Spotlight - For sale